查看完整案例

收藏

下载
“建筑就像一本打开的书,从中你能看到一座城市的抱负。”Eero Saarinen 如是说。
"Architecture is like an open book, from which you can see the aspirations of a city." Eero Saarinen said.
世界是无数堆砌在一起的细节:材质、色彩、体积、数量、风格,各种不同的组合,构成某个特定的时间和空间画面。
建筑亦是如此,砖、木、泥、石,仅仅是一个个单词、词汇,一旦组合成了建筑物,它作为一个整体,便有了个性、性情和生命,也有了象征和意义。
The world is countless details piled together: material, color, volume, quantity, style, various combinations, constitute a specific time and space picture.
The same is true for architecture. Brick, wood, mud, and stone are just words and vocabulary. Once combined into a building, it as a whole has personality, temperament and life, as well as symbolism and meaning.
Garden& Landscape
园林 /一迳抱幽山
苏州是一座以“园林”而闻名,亦是一个现代化的大都市。项目的设计愿景以“水乡泽国”为纽带,通过纯粹、无杂质的色彩语言,利落的线条,创造出一个结合了古典韵味而不失简明、摩登的现代空间。还原古建筑的灰白色墙面,太湖石的色泽,自然之物的肌理,充分表达着这座城市的趣味与温度。
Suzhou is famous for its "gardens" and a modern metropolis.
The design vision of the project is linked by "Water Country Zeguo". Through pure and impurity-free color language and clean lines, it creates a classic charm. Without losing the concise, modern and modern space.
Restoring the gray-white walls of ancient buildings, the color of Taihu stone, and the texture of natural objects express the interest and temperature of this city.
Modern Space
轮廓 / 居然城市间
进入室内,随着空间气氛而起伏的明快的黑色折现,为室内勾勒出苏州园林的意象,还原古建筑的屋檐、砖砌、窗格和线条,提炼出交错、阵列、透光、格栅的设计元素,呈现黑白分明的视觉。
曲折之间,空间随之焕发无限的生命力。
Entering the interior, the bright black undulating with the atmosphere of the space outlines the image of Suzhou gardens, restoring the eaves, brickwork, panes and lines of ancient buildings, and extracting the design element of the staggered, arrayed, transparent and grid to present a clear black and white vision. Between the twists and turns, the space glows with infinite vitality.
设计师通过纵向挑空,横向拉伸的设计原则,为空间打造尽可能的开敞布局,使整体空间与建筑、户外景观融为一体,减少局促感、压迫感。
The designer uses the design principles of vertical voiding and horizontal stretching to create the most open layout for the space, integrating the overall space with the architecture and outdoor landscape, reducing the sense of cramps and oppression.
洽谈区临窗而坐,在有序的节奏和韵律中,交谈、小憩,创造沿岸边漫步的空间感。自然光透过落地窗洒入,简洁而和谐的设计尺度营造柔和的空间向度,平和宁静,流露着人与人之间交流的温度。
Sitting near the window in the chatting area, talking and resting in an orderly rhythm and rhythm, creating a sense of space for strolling along the shore. Natural light is poured in through floor-to-ceiling windows, and the simple and harmonious design scale creates a soft spatial dimension, peace and tranquility, and reveals the temperature of communication between people.
花艺手工坊营造了一处氤氲的景色,从功能上做了隐性区隔,以艺术感的形式散发着灵性,创造了诗性盎然的室内景色。
The Flower Art Workshop creates an enveloping scenery as an important partition of the space, exuding spirituality in the form of an artistic sense, creating a poetic indoor scenery.
大面积的玻璃处理呈现了通透的展示面,创造宽敞、舒适的光感,为水吧区营造别有洞天的空间。光源在此仿佛被吸收重构,轻盈而充满韵律。
A large area of glass processing presents a transparent display surface, creating a spacious and comfortable light perception, and creating a unique space for the coffee bar.
择优而选的当代人居,在穿透城市背景的山水灵动间生长,与都市便捷的区域形态同频,二者和合共生,缺一不可。在坐拥湖境资源的同时,亦享受都市圈优势,连结着自然与当代人文的生活形态。
The contemporary human settlements selected by the best, grow in the agile landscapes that penetrate the urban background, and have the same frequency as the urban convenient regional form. The two coexist in harmony and are indispensable. While sitting on the resources of the lake, it also enjoys the advantages of the metropolitan area, which connects nature and contemporary human life.
项目信息
项目地址:江苏·苏州
项目名称:苏州绿城金茂泊印澜庭售楼处
业主: 绿城金茂南山苏高新
设计面积:745㎡
竣工时间:2021.10
硬装设计:SWS Group
设计总监:邬斌 李建国
硬装团队:范文馨 杨顺怡 魏高祥 吴征智
效果表现总监:秦军
效果表现团队:陈宇栋 夏子程
摄影:夏添 张伟
视频:俞嘉悦 侯聪慧
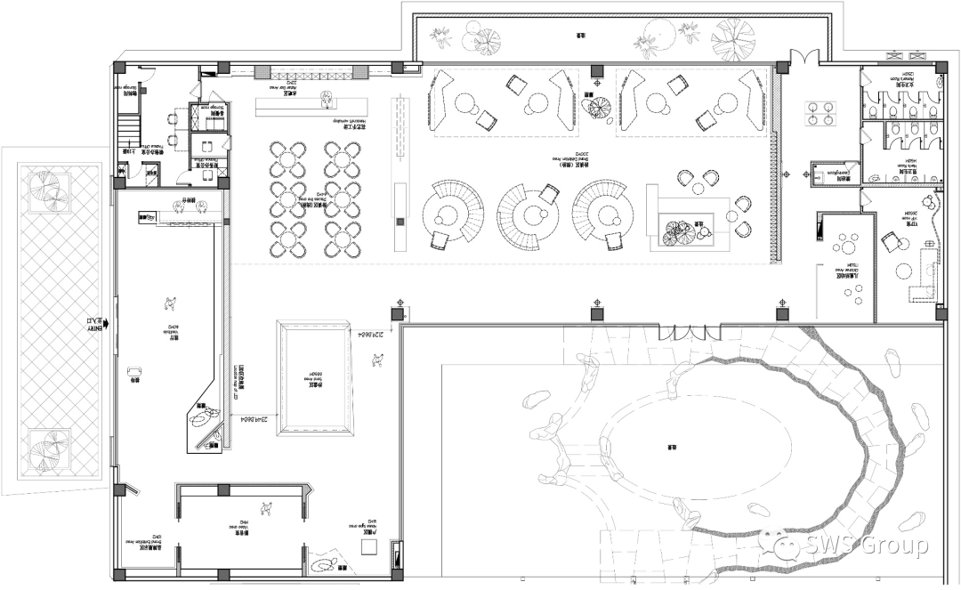
平面图
Floor Plan
效果图 Renderings
SWS Group 是一家以设计为平台的服务公司,以前瞻性、话题性、社会性与跨界性为核心理念,提供品牌与项目的咨询、策划及设计服务,服务范围包括设计服务、家居品牌、城市更新、长租公寓。旗下品牌 HD Studio, WS Architects, Yee Home, 躺赢造物。
#济高绿城·桂语朝阳生活美学馆:
蕴含城市律动,引领生活新方式
# 广州滨江上都售楼处:
广船的前世今生
#杭州托尼洛·兰博基尼酒店:开启“奢侈品大宅”新时代
# 江阴华晟·和光源著展厅:
以光为笔,以景为墨
#东莞高新诺富特酒店:打造华为总部的“后花园”
#SWS 招人 | 搞事情,加入我们就对了!
只要你有兴趣了解或加入我们
欢迎自荐或推荐给优秀的小伙伴
hr@sws.group
| 设计服务咨询
Design Service Enquiries
info@sws.group
+86 158 21539988
| 媒体联络 / 学术活动 / 展览邀请 / 参观交流
Exhibition Invitation/Visit
pr@sws.group
| 工作机会
Job Opportunities
请将个人简历与作品集发送至
Please send your CV and portfolio to hr@sws.group | 商务洽谈 bd@sws.group | 办公室地址 Office Locations 上海办公室 Shanghai Office 上海市普陀区大渡河路 388 弄 5 号 801 室
388 Daduhe Road, Putuo District, Shanghai
T. + 86 021 62240060/62240062
伦敦办公室
London Office
Asquith House, 283 Edgware Road, London W2 1BB
吉隆坡办公室
Kuala Lumpur Officeno.3-1, bangunan perdagangan d7, 800 jalan sentul.51000 wp kuala
T. + 603 40505590
客服
消息
收藏
下载
最近























































