查看完整案例

收藏

下载
常州锦艺天章售楼处
Changzhou Jinyi Creation Sales Gallery
“以天为景、以绿为染、以水为镜、以光为韵”,山与水、光与影、景与情交织在空间的叙事中,一座冉冉而升的“水”城,与古往今来的运河遥遥相望。古城新城,历久弥新。
"The sky is the landscape, the green is the dye, the water is the mirror, and the light is the rhyme." Mountains and water, light and shadow, scenery and emotion are intertwined in the narrative of space, facing the canal far away, bearing the history and present of it. Emotions, the old city and the new city, will last forever.
锦艺天章售楼处位于江苏常州经开区,是该地块最具年轻、活力的区域。常州地处太湖流域,长江下游“金三角”中心,是一座有着3200年历史的文化古城,同时又是一座充满现代气息,经济较发达的新兴工业城市。项目的基调便定格在古城的气韵与新城的朝气中。
The Jinyi Creation sales gallery is located in Changzhou Economic Development Zone, Jiangsu Province, which is the youngest and most dynamic area of the plot. Changzhou is located in the Taihu Lake Basin and the center of the "Golden Triangle" on the lower reaches of the Yangtze River. It is an ancient cultural city with a history of 3,200 years. At the same time, it is also a new industrial city full of modern flavor and relatively developed economy. The keynote of the project is fixed in the charm of the ancient city and the vigor of the new city.
项目由三层楼构成,一层门厅作为独立的空间,承担了门面的作用,也直观地展示了水与物的联动,将室外的运河景观的“水”的元素引入室内,在室内建造与运河呼应的水景,让项目的形象也从入口处便直接切入了主题。水景上方的折线楼梯的造型以飘动的丝带为灵感,空间整体设计体块感很强,大面积玻璃幕墙面朝运河风景。
The project is composed of three floors. The hall on the first floor serves as an independent space, which assumes the role of the facade and visually demonstrates the linkage between water and objects. The "water" element of the outdoor canal landscape is introduced into the interior, and the building The waterscape echoed by the canal makes the image of the project directly cut into the theme from the entrance. The shape of the polyline staircase above the water feature is inspired by the fluttering ribbon. The overall design of the space has a strong sense of volume, with a large glass curtain wall facing the canal scenery.
通过“折线”台阶,拾级而上,进入二层的沙盘区和洽谈区,沙盘区为两层挑空,沙盘上方玻璃顶让室外光线充分照入室内,洽谈区、接待台、沙盘区形成一条轴线交相辉映,相对独立而有互动。
Through the "broken line" steps, you can step up and enter the sand table area and negotiation area on the second floor. The sand table area is empty on two floors. The glass roof above the sand table allows outdoor light to enter the room. The negotiation area, reception desk, and sand table area form one The axes complement each other, relatively independent and interactive.
二层通向三层的台阶设计在结构上突破了传统,利用了台阶的高度变化,在台阶上设计了洽谈休闲区,配合书架档墙的设计,把敞开式的空间做得更有趣味,为展厅增添了惬意的氛围。而样板间则设计在三层,让观者能够即刻进入一个家居空间的场所精神。
The design of the steps leading from the second floor to the third floor breaks through the traditional structure. The height changes of the steps are used to design the negotiation and leisure area on the steps, and the design of the bookshelf wall makes the open space more interesting. It adds a pleasant atmosphere to the exhibition hall. The model room is designed on the third floor, allowing viewers to immediately enter the spirit of a home space.
大量的“折线”的元素,强烈的色彩对比,以及通过材料的变化来表现“飘带”戏剧化的视觉,仿若形成一股冲破情绪的暗流,一座非常有层次感的流畅的“水”城冉冉而升。
A large number of "broken line" elements, strong color contrast, and the dramatic effect of the "streamer" elements through material changes, forming an undercurrent that breaks through the emotions, presenting a very layered smooth "Water" city.
Renderings
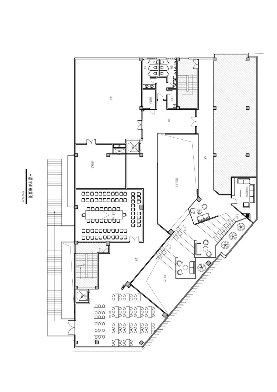
Floor Plan
-上下滑动观看图片-
项目信息 Project Information
业主 Developer:锦艺地产 Jinyi Group
项目地址:江苏常州 Changzhou Jiangsu Prov.
设计面积 Area:1200㎡
设计总监 Design Director:徐峰 Xu Feng
设计主创 Design Lead:龚欢 Gong Huan
硬装团队 Interior Design:徐伟 Xu Wei
软装团队 FF&E:梅芳 Mei Fang 戴向芸Dai Xiangyun 林宁 Lin Ning
摄影 Photography: 鲁哈哈 Lu Haha
SWS Group软装团队
| SWS Group 建筑室内设计
SWS Group 是一家立足于中国上海,在伦敦,阿姆斯特丹和吉隆坡设有分办公室的多元化建筑室内设计事务所,由HD Studio, WS Architects 以及 Yee Home 等多个品牌组成。
SWS Group 提供国际化的建筑、室内、整体规划、平面以及产品设计服务。公司目前的项目涵盖文化项目、度假酒店、教育建筑及高端会所及住宅。
REVIEW
SWS作品:万科青岛云中花社咖啡馆
SWS作品:万科青岛小镇售楼处
SWS作品:上海崇明海和院售楼处
SWS作品:济南绿城明月风荷生活美学馆
SWS作品:济宁绿城湖畔雲庐生活美学馆
SWS作品:苏州中建河岸晓风高层复式样板间
SWS作品:武汉凤起听澜生活美学馆
SWS作品:上海滨江凯旋门样板房
SWS作品:欣世纪厂区规划
| 设计服务咨询
Design Service Enquiries
info@sws.group
+86 138 1654 6794(沈女士)
| 媒体联络 / 学术活动 / 展览邀请 / 参观交流
Exhibition Invitation/Visit
pr@sws.group
| 工作机会
Job Opportunities
请将个人简历与作品集发送至
Please send your CV and portfolio to
hr@sws.group
| 商务洽谈
bd@sws.group
| 办公室地址
Office Locations
上海办公室
Shanghai Office
上海市普陀区大渡河路388弄5号801
388 Daduhe Road, Putuo District, Shanghai
T. + 86 021 62240060/62240062
伦敦办公室
London Office
Asquith House, 283 Edgware Road, London W2 1BB
吉隆坡办公室
Kuala Lumpur Office
no.3-1, bangunan perdagangan d7, 800 jalan sentul.51000 wp kuala
T. + 603 40505590
客服
消息
收藏
下载
最近

































