查看完整案例

收藏

下载
2022 年伊始,清华院特举办 2021 年度 THAD 优秀方案创作奖一等奖项目云分享活动,于 4 月开启,邀请清华院的青年设计师们,结合自身的创作实践,在线上为广大听众带来多角度的分享和思考。
THAD 清华设计系列讲堂 2021 年度 THAD 优秀方案创作奖云分享 Vol.3
此次活动共分 8 场进行,4 月 20 日上午举行第三场讲座,清华大学建筑设计研究院副总建筑师张葵担任主持人。由清华大学建筑设计研究院简盟工作室建筑师吴绍平、清华大学建筑设计研究院简盟工作室建筑师白雪线上分享 2021 年度优秀方案创作奖一等奖项目,弘扬优秀设计理念。本篇为清华大学建筑设计研究院简盟工作室建筑师吴绍平分享的北京 2022 年冬奥会和冬残奥会张家口赛区山地技术官员酒店内容全纪录。
▲2021 年度 THAD 优秀方案创作奖云分享 Vol.3 完整录屏
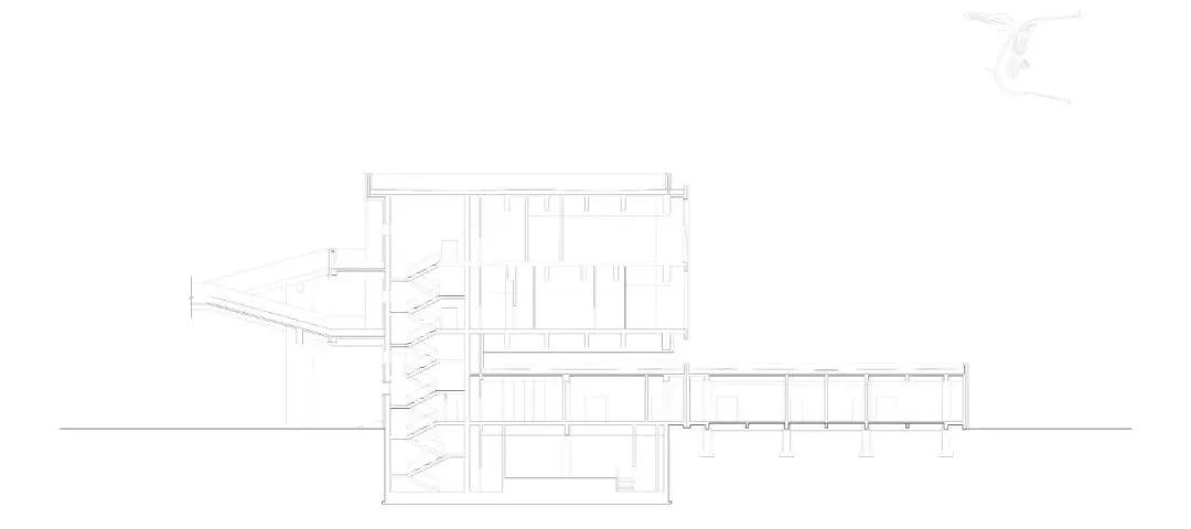
▲冬奥会张家口赛区山地技术官员酒店|吴绍平
THAD 清华设计系列讲堂
冬奥会张家口赛区山地技术官员酒店
吴绍平
冬奥会张家口赛区山地技术官员酒店
北京 2022 冬奥会和冬残奥会张家口赛区山地技术官员酒店是 2022 北京冬奥会张家口赛区配套的一组永久设施,位于古杨树组团东南,架空布道冰玉环内侧,海拔 1640 米的山坡,与国家跳台滑雪中心雪如意隔山谷相望。
酒店分为独立的 AB 两栋,各有客房 400 间和 186 间,这些客房大部分可以直接看到对面的雪如意和作为背景的群山。
B 栋顶层末段分设架空在山坡高处的山地演播室,与 B 栋在地下相连,三者共计 81195 平方米。
山地技术官员酒店在冰玉环内测,南端距离古杨树组团主入口广场不足两百米,北部与国家跳台滑雪中心只有一路之隔。通过冰玉环还可以在 15 分钟之内到达国家冬季两项中心和国家越野滑雪中心,它与组团内的各处设施的联系是非常紧密的。
第一部分是远体尺度的最小自然足迹原则的实现,远体尺度在张家口赛区体现为步行 1~2km,耗时 15~30min。在这一尺度上,山地技术官员酒店充分利用场地现有条件,以最小自然足迹原则作为根本逻辑,通过控制建筑的平、立面形态和景观设计,减少对崇礼严寒地区较为脆弱的山地生态环境的侵占和干扰,并在视觉上弱化人工要素,实现对山地整体环境的融入。
2018 年 8 月酒店还没有动工的时候,现场照片中可以看到在地质运动和水流的作用下,酒店所在的山坡整体呈现出如同梯田般的密集的阶地形态。基于这种地形,为了保证山体原有的轮廓形态,首先是将酒店分成了 AB 两栋。这样可以留下山坡原本的冲沟和树木,同时也有利于赛后的独立运营和差别化管理。然后采用原山体等高线横向延伸的平面形态,顺应等高线疏密,山体较陡处的 A 栋采用单廊设计,位于缓坡的 B 栋采用双廊。等高线和酒店的平面形态基本吻合,条带状的体量之间留出空隙,露出原本的山体作为院落,并且用层叠的方式拟合山体原本的阶地形态。
为了保证山谷间良好的视觉景观,采取弱化近景中人工要素的策略,在通过延原等高线横向展开的层叠体量,拟合山体的阶地形态的基础上,酒店在覆土屋面和露天院落随机种植了乔木、灌木、草本与爬蔓植物,以遮挡、柔化部分建筑本身的人工轮廓,将建筑隐入山体的自然植被中。覆土屋面本身存在起伏,更契合天然山地的表面。在视觉上,建筑立面的陶板和金属构件采用接近当地土壤与树干的黄、褐色,使建筑在植被的掩映下与山体更好融合。
第二部分是中体、近体尺度上采取的人因原则。中体、近体尺度分别对应步行 1~15min 和 1min 内,50~1000m 和 50m 内的距离。在这两个尺度上,山地技术官员酒店和山地演播室通过推敲剖面形态、高度和建筑细部作法,实现高品质的居住、生活体验和赛时直播效果。
得益于其选址和朝向,山地技术官员酒店 A、B 栋的大部分客房和公共空间皆具有眺望竞赛场馆群和自然山脉的良好视野。大部分客房的窗外近景没有人工构筑物的出现,从客房看见的景色就是植被、远山还有跳台。
酒店 A 栋设有室外阳台,室内用落地窗分隔,因此这些客房不仅在室内具有朝向远山和场馆群的良好景观,也可以通过阳台直接体验室外山间的微气候。阳台外是覆土屋面或院落植被,种植适应当地严寒气候的草种和树种。
酒店 B 栋的部分客房和公共区域可以到达覆土屋面和室外,这些室外区域起伏的地面和灌木能够带来接近户外徒步的体验,从院落又可以进入酒店周边的自然山地环境。
山地演播室基于赛时转播背景取景需求,选址半山腰西北朝向的位置,以获取面向场馆群的最佳视野。它的设计通过底层架空和大跨结构,抬高二、三层的公共空间和演播室视点,获得开敞的视野,使电视直播能以雪如意、冰玉环和群山作为背景。赛事不同媒体转播的画面对比设计效果图,实际呈现的角度和我们预期是非常一致的。为了实现这样的直播效果,进一步优化使用者的视觉体验,山地演播室在奥林匹克转播公司技术手册的基础上进一步提高标准,二、三层整体净高达 4.5m,立面玻璃幕墙全部使用低反射高透光率的超白玻璃。主要的摄像机位前均设置高 3.2m、宽 4.3m 的整块巨幅玻璃,并将玻璃向室内倾斜 7°,从而在提供连续开放视野的同时,避免室内照明反射对直播画面的干扰。
第三个方面是赛后利用的可持续性,作为张家口赛区配套的永久设施,山地技术官员酒店在为赛时提供基础服务的同时,也服务于赛后冰雪产业和地区经济的发展,在内部空间的设计中采取可持续性设计策略。酒店 A、B 栋分别按 3 星级、4 星级酒店标准进行内部空间、设施的设计和细化,为酒店的可持续运营提供空间品质支撑,并在赛后进行差别化管理。
山地演播室在赛后改造为酒店 B 栋的配套服务设施,4.5m 整体净高也保证内部空间通过可变隔墙体系在冬奥会后实现餐饮、会议、展览、小型演出和体育活动等多种利用,为赛后的内部功能转换提供最大自由度。
在张家口赛区全尺度空间干预的框架下,山地技术官员酒店设计策略在外部景观、内部空间、设施的设计和细化中考虑诸多要素,在远体、中体和近体尺度上遵循最小自然足迹原则和人因原则,为国际雪联的技术官员和转播商提供赛时高品质的居住体验和直播效果,在赛后为崇礼地区的发展提供灵活、精准的设施服务,满足冬奥会永久设施的可持续利用。
提问环节
张葵:酒店的功能流线、疏散流线是怎么样的?
吴绍平:功能流线方面,主要的客房在一、二两层,虽然从等高线方向上延伸出去很多,但是不会离主要的入口太远。拐弯的节点部分都设置了公共空间,客房都可以从拐点上面的公共空间到达前面这一层的屋面,从而疏散到室外。而第三层的屋面上面有一条消防车道。每一层的近端有独立的疏散口,在功能上独立的出入口可以为后面的酒店提供分区运营。
张葵:A 栋的外阳台如何考虑阳光无法直射的情况,可能有一半时间无法直射到室内?
吴绍平:这个项目里面首先考虑的是怎么最大化的利用场馆群的景观,采光反而是相对次要一点的内容。
撰稿|企划部
编辑|企划部
版权|THAD 清华大学建筑设计研究院有限公司
清华大学建筑设计研究院有限公司开视频号啦!
欢迎关注
THAD 清华建筑设计院
视频号!
THAD 文化|世界睡眠日,清华院让你拥有高质量的家
THAD 文化 | 致最美的女设计师们
2022,冬奥建筑已准备就绪 | THAD 冬奥倒计时
THAD 新闻 | 清华大学建筑设计研究院有限公司 2021 年度总结表彰大会圆满召开
客服
消息
收藏
下载
最近



































