查看完整案例

收藏

下载
编者按
近日,旭辉宸悦·江语院“城市理想 焕新洋房”,全国首秀发布会在南昌举行,这也意味着C.P.C.建筑设
计研发的新生代住宅产品正式
从概念走向了现实。
旭辉宸悦·江语院位于南昌市红谷滩新区九龙湖片区,用地面积96124.67平方米,由高层住宅楼、多层住宅、幼儿园、沿街商铺,物业配套、社区配套及地下停车库等组成。
作为新生代住宅产品在全国的首个落地项目,旭辉宸悦·江语院在设计之初,就试图将洋房的空间价值发挥到更大,将社区的包容性展示到更大,真正重视生活在洋房里的人们的情感、情绪、以及体验。
“方”厅,让家的空间无限生长
旭辉宸悦·江语院洋房户型落地了自由“方”厅,充分利用过道的面积,把客厅的延展面做到大,把阳台、玄关、餐厅等尽可能纳入到客厅体系,并将客餐厅空间延伸至一处多功能空间。这个自由空间可以是两口之家的影音室,三口之家的宝宝成长园地,或是朋友聚会的派对场。“方”厅让现代人有机会实现真正的家人陪伴,也能让一家人能够在忙于各自的事情同时照看到彼此。
“
缤纷盒子
”,共享无限精彩
在旭辉宸悦·江语院开放的社区里,安放着两座 “缤纷盒子”,里面专门为年轻人准备了健身器材,为孩子们准备了书籍与玩具。这个盒子又称为共享的盒子,将全面开启小组团的无穷活力,尽可能多地创造邻里社交空间。
除了在旭辉宸悦•江语院中应用的“方”厅和“
缤纷盒子
”
产品,新生代住宅产品更从
社区规划
、
户型系统
和
建筑立面
三个维度,关注宜居、个性、活力的邻里社区,营造具有高度认同感的精神家园和持续生命力的悦活社区。
01
社区规划
社区规划,遵循空间层级递进的整体原则,保证居民空间的安全性,私密性,同时具有起落有致的均衡性。
适宜的组团规模
研究表明:和谐的邻里关系对安全、健康和幸福感、包容性的培养皆有裨益,组团内通过适宜的场所设计,会为居民带来良好的社群关系。
将大型社区划分为多个相对独立,规模合适的小组团,可以达成以下目标:
邻里交往
打造生活行动圈,尤其为儿童的游玩和与其相关的母亲们的活动提供空间;
可识别
多级结构便于理解和识别,给人以安全感和归属感。
物业管理便捷
相对独立的若干个小组团便于今后的物业管理。避免过大的社区规模造成的物业管理困难。
归家动线系统
一条活力的归家动线,不仅仅是公共空间到私密空间的过渡,更是奔波与家的情感转换。在这个过程中,让业主安享一份别致的景观空间,卸下一天的疲惫。让每一次回家,都是一次观光。
全明景观地上、地下大堂,提升归家感受。
全明景观地库
服务型入口广场
将服务性配套业态和归家动线整合在一起,强化配套经过性的展开,既符合居住者的日常行进路线,同时又高效率地满足了业主的需求。
花园社交系统
现代社会,邻居间彼此疏离,如果项目在设计之初,就考虑人们以后如何交往、如何社交,如何融入公共空间,必能取得较好的效果,改善邻居之间的关系。
出于这种考虑,我们将传统单一、聚集型的配套公建依据其使用功能划分成不同的公共等级,并将日常参与度高的使用功能分散设置,以提高居民的认同感、归属感和社区生活的参与积极性。
社区级别
为了建立一种从住宅到公共空间的和缓过度,让人们不失安全感,我们在社区里建立起半公共的、亲密的和熟悉的空间,并且让这种空间自然地向公共区域过度。这些模块为业主创造了更多社交机会,以及别样的体验。
活力书吧
组团级别
在每个组团的庭院中结合景观设置若干
个主题性定制化的小建筑——缤纷盒子,为组团居民之间的社交提供一个温
馨的平台(在旭辉宸悦•江语院项目中有效应用)。
盒子的大小,是标准化的3.6*3.6米,将其模块化和自由组合,就可以实现不同的功能。如下图所示:
楼栋级别
屋顶花园是一个与阳光亲密接触的露台,不仅可以享受日光,俯瞰秀丽景色,还能合理高效地利用屋顶空间,创造一个适用、经济、美观的花园,增进人们身心健康及生活乐趣,为居民打造立体化的小众化社交活动空间。屋顶花园空间的半私密性,一方面会减少对大众公共活动的干扰,一方面又保有了活动的私密性。
02
户型系统
户型产品设计,以关注家庭成员之间的亲密互动为原则,打造全新的居家空间组合模式,提升家庭活力生活氛围,使家庭生活回归本真。
“方”厅
随着业主需求的多元化,客厅也不断在进化。反之,进化的客厅也体现了家庭生活方式的变化,以及居住者对居住的理解和对家的感悟的演变。
通过优化设计,将书房、厨房、阳台、玄关等一切可能并入客厅的面积,和客厅一体化,客厅转身变革成为家庭厅——一个承载了更多家庭生活成员之间生活的共享空间。
在这里,丰富的洄游空间包容了更多的生活场景,使得家庭生活更加温馨舒适
(在旭辉宸悦•江语院项目中有效应用)。
多功能可变空间
敞开式书房为居住空间的不同成长阶段提供了各种可能。
中厨+料理台岛
兼顾中餐的烹饪习惯以及家庭家务时光无障碍的沟通交流。
极致收纳
收纳最大化,满足家庭需求。
多功能阳台空间
根据不同生活场景,提供不同的细化阳台尺度,容纳不同的活动内容,赋予阳台更多的生活内涵,改变同室内空间的线性关系
。
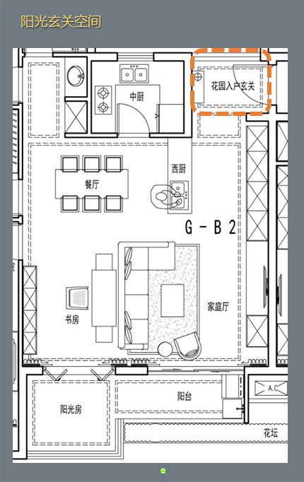
阳光玄关空间
将阳光引入玄关,提升入户感受。
室外内空间的融合
将客餐厅与转角阳台相融合,使得阳台成为家庭厅的户外延伸,提供更多的休闲模式。
03
建筑立面
弧线在水平方向的展开,成为产品系标志性的造型特征。通过对水平线条的疏密关系和材质色彩的变化,创造出立面的节奏感和段落感。整体高亮的白色和间隔出现的深灰色形成现代摩登的性格。结合室内空间的阳台,具有变化的尺度,适应多种家庭活动内容需求,具有冲击力的样式,是整体设计中的一个亮点。
结语
我们通过系统性地思考和务实的设计,去解决现代社会中人与人、人与环境之间的疏离问题,挖掘并逐步满足人们的情感需求,这应该也是未来住宅的发展方向!
------加拿大C.P.C.建筑设计顾问有限
公司-----
客服
消息
收藏
下载
最近





























