查看完整案例


收藏

下载
如东体育中心位于江苏省南通市如东县新区,项目包含一个
体育馆(含游泳馆),健身中心及一个综合性体育场
。
作为新区文化核心的一部分,其与南侧的文化中心组群一同构成新区的标志,并将成为驱动新区发展的重要动力。
项目于2012年展开设计竞赛,
同济大学建筑设计院
的方案从中胜出,2018年一期工程竣工。
开放与围合
体育中心设计强调空间开放和公众参与,鼓励全民健身。
因此整体规划方案并未以建筑为核心,而是利用建筑围合出供市民活动的
体育公园
,并与南侧文化中心有机地形成一个整体。
开放的公园拉近了市民与健身设施的距离,并为城市建构了一个充满活力的景观空间。
△ 总平面图
△ 体育馆鸟瞰
△
体育馆北侧立面
体育场和体育馆通过二层天桥实现步行交通的连接。
△
体育馆南侧立面
白色巨浪
如东临海,这里天高海阔、疏朗开阔的地理风貌带给设计无限的灵感。
舒展流动的建筑好似起伏翻滚的白色巨浪,曲线造型烘托出体育的活力与优美。
△ 体育馆屋顶及立面肌理
建筑外立面材料采用
白色金属板
,并在局部以渐变的镂空图案作为装饰,为室内带来丰富的光影效果。
△
体育馆南侧立面
△
体育馆北侧立面
△
体育馆立面细部
天窗将阳光引入场馆内,室内明亮疏朗。
外部渐变的主题进入室内,通过不同形状的主题强化各个单体的特征。
紧凑与共享
作为县级体育场馆,如东体育中心并未一味追求功能的全面,而是一直贯彻“
紧凑共享
”的设计宗旨。
为避免昂贵的体育设施重复建设,我们在前期设计阶段建议将体育馆和游泳馆合二为一,这样就可以将两个场馆的比赛和训练用房共享,最小化了建筑规模。
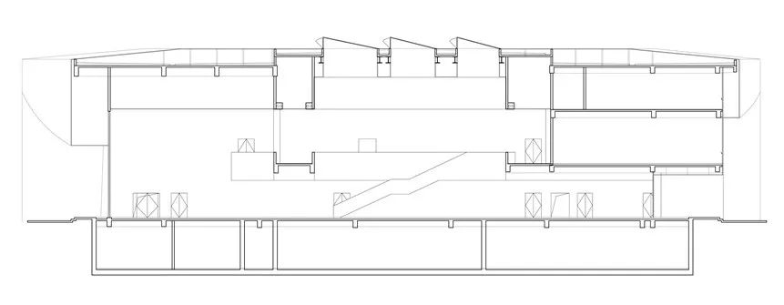
△ 体育馆平面图
△ 体育馆剖面图
在体育馆2万平米的建筑体量内,容纳了一个4000座体育馆,一个训练馆,一个50米标准泳池(带460座观众席位),一个25米训练池和一个儿童戏水池。
并且考虑到各场馆对于空间尺度的不同需求,用一个中间高两边低的
月牙形体
将各个空间紧密的包裹在一起,避免出现圆形体育馆空间浪费的现象。
△ 体育馆室内
△ 游泳馆室内
△
游泳馆训练池
△
游泳馆儿童池
拥抱变化
体育建筑的多功能开发是大势所趋。
通用空间、齐全的灯光音响设施非常便于举办大型的文化商业活动。
我们乐于看见空间的高效利用,在设计中拥抱未来的变化。
体育馆和训练馆底层采用活动分隔,移门打开可形成一个通透的整体空间,可用于县级的会展活动。
游泳馆分为夏季模式和冬季模式:
夏季人多,三个水池同时开放。
冬季人少,可通过玻璃门和隔墙将池区一分为二,仅开放水量较小的部分,同时减少空调和地暖的负荷。
健身中心室内中庭同样可用于展示发布等商业文化活动。
健身中心所有的功能房间均为规整的矩形,在未来投入使用后可以通过二次装修实现各种功能的转换。
△
健身中心主入口
△
健身中心立面肌理
△
健身中心门厅及墙部细节
△
健身中心
中庭及天窗
△
健身中心
羽毛球馆
△
健身中心
乒乓球馆
△
健身中心平面图
△
健身中心剖面
图
项目档案
项目名称:
如东体育中心
项目地点:
江苏省南通市如东县
设计时间:
2012年
建成时间:
2018
年
用地面积:
14万平方米
建筑面积:
7万平方米(一期工程3.5万平方米)
设计单位
:
同济大学建筑设计研究院(集团)有限公司
项目总负责人:
王文胜
建筑设计
:
李恒
结构设计:
张涛、张峥、刘浩晋、丁祝红、周旋
给排水设计:
李意德、何音腩、潘若平
暖通设计:
周鹏、刘芳、董劲松
电气设计:
冯明哲、麻伟男、顾巍
建筑摄影:
邵峰
— 猜 你 喜 欢 —
上海吴淞口国际邮轮码头后续工程客运大楼
点击“
阅读原文
”查看TJAD体育建筑作品。
客服
消息
收藏
下载
最近

































