查看完整案例


收藏

下载
朗阔舒居,令人心生羡慕的质感空间。细节处,流露出精致的生活情调。轻,而不失其华;奢,而不失其韵。轻奢主义进行时~
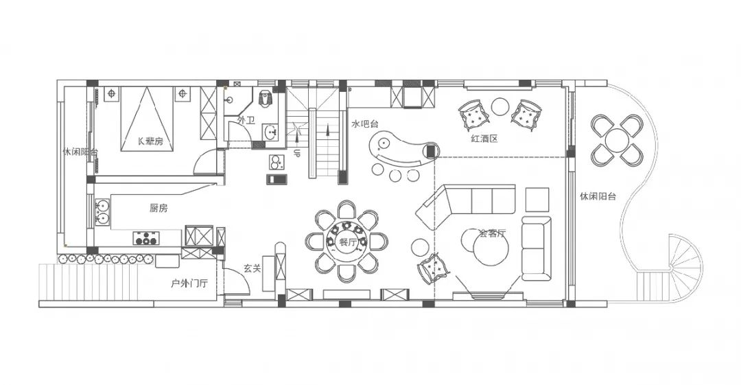
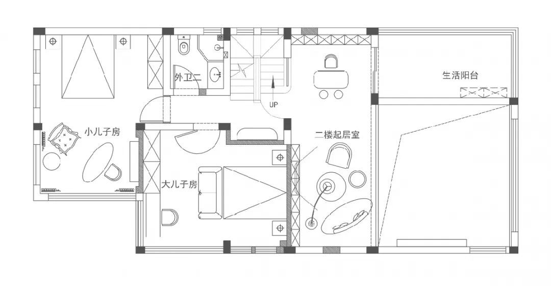
左至右依次为负一至三层平面布置图 ▲
项目户型:别墅
项目面积:600 平米
设计风格:现代轻奢
产品工艺:平板镶嵌金属
产品材质:多层混油、烟熏橡木木皮
设计团队:湖南艾迪空间设计有限公司
主案设计:徐强
项目地址:湘潭·奥园冠军城
落地团队:湘潭乔金斯
本套别墅以现代简约风格为基础,注重设计手法上的简洁、大气,通过奢华大理石瓷砖、高端木材、大量的金属元素、精致的软装元素令空间质感更为饱满,轻松营造轻奢之美。并选用带有高级感的中性色,来演绎一种“低调的奢华”,缔造出让人无限回味的现代家居。
客厅 JK
开阔大气的挑空客厅是圈层品味的具象体现。将四季风光纳入视野的同时,让每一处角落都通风顺畅、阳光充沛。大理石背景映衬木质柜体,自然垂悬的圆形吊灯晶莹璀璨“倾泻而下”,将饱含精致韵味的生活画卷铺展眼前。餐厅 JK
餐厅与客厅畅达相连,即保证空间开敞又凸显布局合理。格局通透性,生活起居自在穿行。围合式餐桌椅打造温馨喜乐的就餐氛围与生活的仪式感。不时邀上三五好友,或是家庭小聚,一代新贵的风尚生活在家即可开启。
厨房 JK
现代轻奢的厨房空间,犹如被水冲洗过一般,优雅而宁静。清晰的轮廓,勾勒出整个空间的自由度和灵活性。看似简单的设计背后,无不蕴含着极具品位的贵族气质,通过材质上的奢华,不着痕迹地透露出对于精致、考究生活的追求。
水吧
JK
水吧的设计简洁大方,巧妙利用空间,橘色吧椅从空间脱颖而出,为空间的素雅、冷静带来一丝活力感。水吧台既可以作为操作台面,闲时又可在此小饮一杯。
休闲区 JK
同样源于巧妙的布局,二楼休闲区与起居室灵动相连,既保持了对话,又相互独立。具备当代设计美感的玄关柜与书柜立于两面墙体,与极具艺术感的座椅营造风雅。
主卧 JK
主卧室,是注重生活品质的塔尖人士为自己所定制的一方私密空间。用沉稳的色调和简净利落的设计语言营造静谧格调。
大儿房 JK
大采光窗保证空气流通清新自然,满足品质追求者清风入怀的居住体验。和缓的空间节奏,配以舒适的床品,共同营造雅致静谧的休憩环境。
小儿房
JK
卧室内高级定制柜延续整栋别墅一贯的简约之美,轻奢之韵。素雅的空间里,以带色彩的墙壁挂画和兼具美学与功能性的金属吊灯做点缀,温情又时尚。
衣帽间
JK
整体定制的衣帽间拥有强大的收纳功能,大量金属边玻璃门的运用是营造家居高级感的利器,不仅通透舒适,方便查找衣物,还能打破沉闷,让整个空间不压抑!
轻奢,是一种设计风格?我们觉得它更像是一种能够融入各种空间各种风格里的精神追求。JOKINS 邀您共筑现代轻奢主义家居生活,让你的“奢”想,成为奢“享”!私家享受,定制非凡,乔金斯让居家生活更美好。
乔金斯 2.0 四叶草 新品抢“鲜”看
7 月 20-23 日
中国建博会(广州)
保利展馆 D 区高定整装 17.1-19 盛装亮相
高定巡游记——乔金斯站
乔金斯邀您共赴“四叶草”之约
“墅”说法式风情|乔金斯案例鉴赏
end
乔金斯整木定制
扫码关注我们
客服
消息
收藏
下载
最近



























