查看完整案例

收藏

下载
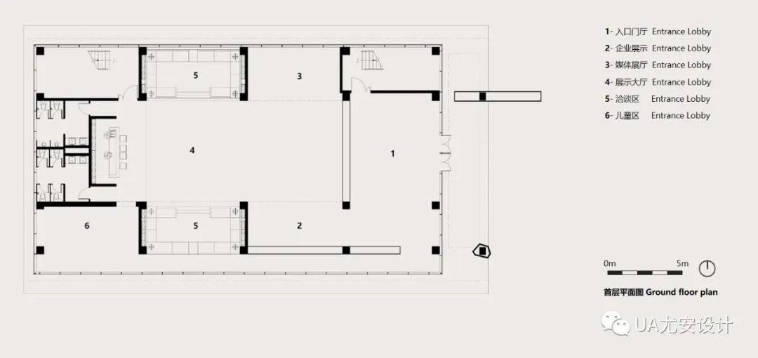
济宁华地鸿顺•天泰城展示中心位于山东省济宁市东汤地块,南侧与东侧为城市主要昭示面,为建筑主入口主要方向,北侧为景观界面,面向展示中心后场景观。设计充分分析有限场地的关系,让建筑的体量为街角的城市绿地出让更多空间,并透过设置景观界面将自然引入住宅区方向,利用建筑的退让呈现最佳展示界面,结合济宁的石建筑文化,为城市提供一座具有雕塑感、文化感,也更具昭示性的展示中心。
▲回应场域特色的昭示感空间©章鱼见筑
在不超过 3000㎡的有限基地面积内,设计团队基于界面分析,在设计初期定义建筑的南侧及北侧为城市主要昭示面与主入口方向,通过首层向内挤压收缩和端部增加向外出挑的手法,将建筑的方体量沿场地南侧尽量拉长,使昭示感更长足。
▲形体生成理念手绘
▲形体生成过程
▲总平面图
通过建筑体块的退让,场地在受限空间内规划出从入口到前场的洄游动线,将建筑作为前场与后场展示景观的一部分进行铺陈,最终在有限的场地内,构筑起更具故事性的步行场景体验。
▲场地内外动线设置
由外引入的故事性入口
在入口处,建筑设置幕墙构架的局部出挑,形成有天光洒入的入口灰空间,将人们引入特定的空间与场域,营造神秘感、艺术感和场景感。黑色大理石雕琢而成的景观石小品轻轻托起入口构架,在形成结构支撑的同时,创造了话题感与戏剧性。
▲富有话题性的入口前场©章鱼见筑
内外交融的合围空间
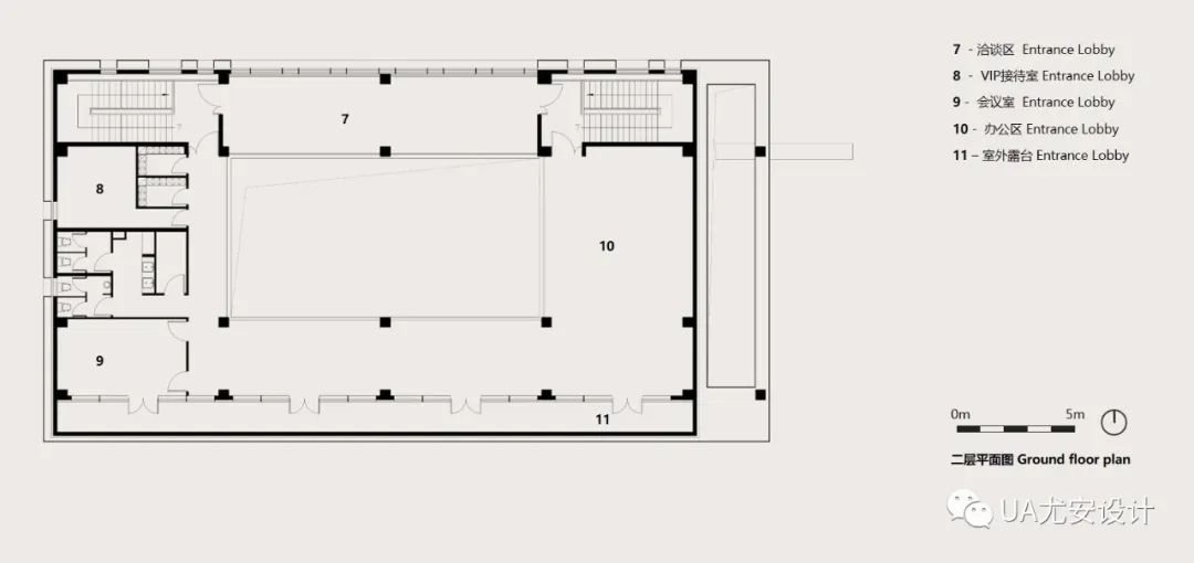
建筑体量上下切分,透过首层通透的玻璃幕墙,建筑室内与室外实现了视线上的交流与互动,二层方正的形体经由天井的交错设置,形成四周合围石头垒砌般的空间,与济宁鲁西南的石砌建筑传统相呼应,也为建筑内部引入了多样采光与高效通风,令建筑的使用与周边环境更为契合。
▲建筑内外交互系统
▲富有交流性的内外空间©章鱼见筑
精致极简的立面材质
建筑选材的原则始终遵循对雕塑感的打造,材质简洁而富有肌理感。一层采用超白 LOW-E 中空玻璃,营造通透可视的漂浮感;二层则使用白色水泥硅酸钙板进行拼接,通过肌理的微变化,增加立面的丰富度与精致度。立面着重打造更具昭示感的南侧与东侧界面,实现完成度与丰富度兼具的成熟营造。
▲立面材质划分
为保证立面的落地还原度,设计团队对建筑二层各面立面的材质板拼贴原则进行了详细的位置定位,形成简明韵味的石材感,并依据横向 1600mm、2400mm,纵向 300mm、600mm 的原则规定分缝方案,构成错落而不呆板的仿石砖视觉。
▲南、北立面二层拼贴位置定位
▲立面细节还原©章鱼见筑
建筑结构的空间支撑
为保证建筑的使用功能与视觉效果最优化,设计针对入口处出挑的体量,设置土建结构以完成大出挑的可行性;在二层室外露台则采用双层结构,保证立面完整性与采光通风的功能同时实现。
▲入口土建与室外露台结构节点
▲技术图纸
ATTENTION
RelatedDesign
上海虹桥世界中心
上海绿地黄浦滨江
上海融创精彩天地
南昌国际会展中心二期
景德镇昌南里艺术中心
济南绿地国际博览城先行区
合肥保利茂街
武汉复星外滩中心(住宅)
长沙绿地星城光塔
海口绿地新海岸
南京紫金中心
绍兴镜湖希尔顿酒店
长春世茂莲花山文旅小镇
靖安绿地明镜湾文旅小镇
深圳融创智汇广场
上海碧桂园中心
青岛华润辽阳东路地铁上盖项目
珠海保利中油琴澳大都会
黄石绿地国际会议中心
广州・广物鱼珠产城综合体
南昌绿地儒乐星镇医养片区
南昌绿地象南中心井象文化旅游街区
青岛华润城崂山万象汇
温州融创・凯迪中心 W 酒店
安吉五峰山运动村松月半岛酒店地块
青岛青铁华润城凯旋门
珠海保利九洲天和屿墅
金茂府落成浅析
义乌绿地朝阳门
长沙北辰府
南昌绿地儒乐星镇国际健康城
成都中粮瑞府
江门华强国际公馆
宁波保利雅戈尔江上印
上海建工海玥瑄邸
南京中冶锦绣天玺
租赁住房产品模块需灵活
上海地产|仁恒置地世博二地块项目
融创华南 I AM I • 90 后新生代 129 产品场景升级
145㎡户型产品力创新升维
全景规划设计方法实践
新形势下社区设计逻辑的三大思辨
具有方案设计基因的施工图设计
UA 公建设计的三个准则
UA 七大人居设计观点
并不是只有豪宅才有好生活
四层及以上墅类产品创新实践
文旅产品有机活化的三大策略
有光,未来才能渐入“家”境
大型商业综合体的重构与共生
运营思维下,社区商业如何掘金
项目负责人到底负什么责
让设计和生活充满想象力
客服
消息
收藏
下载
最近






































