查看完整案例

收藏

下载
▲区位分析图©中国金茂
金玉上城位于玉环玉城街道三合潭片,设计场地平整,自然条件良好。基地西侧临近大型高端商业体——吾悦广场,人流聚集,人气较旺,既有生活条件优越;南侧靠近待开发山体资源——鲤鱼山,自然环境较佳;北侧临近政府机关与未来城市公园,人文气息较浓,自然视野无疆。
▲金玉上城规划生成设计分析
设计团队分析项目周边环境,在重点研究人居动线的基础上,充分利用周边山林资源,营造小区内外的环境共荣,整体性推动小区与城市的契合度及其内在品质,打造玉环城区品质标杆住区,构建“生态共荣”的宜居生活。产品上,在解决区域刚需的同时,合理利用规划条件提供更具吸引力的产品组合,满足不同阶层的品味需求。
▲金玉上城鸟瞰效果图(方案阶段)
▲住宅单体效果图(方案阶段)
作为金玉上城的先行示范区,设计在不充裕的用地范围内,巧妙规划场景动线,并赋予建筑独特性与文化性的双内涵,予以场地价值匹配。
▲示范区实景©章鱼摄影
▲功能流线与景观设计一体化设计分析
基于示范区设计场地相对狭小,可展示面窄,且周边待发展,城市界面尚不完善,设计通过“整体性打造”思维的构建,选取主体建筑落位地块西北角。同时,为赋予示范区可探索属性,设计结合场地实际,通过社区大门前置引入的方式,塑造示范区主入口,以延长示范区流线及展示项,在有限的范围内打造示范区前场,并在功能流线与景观设计一体化打造的基础上,铺陈场所的高体验性。
▲街角鸟瞰实景©章鱼摄影
前场空间以江南园林“曲径通幽,移步易景”的造园手法为主轴,并通过现代空间的引导、转折、虚掩、围合,形成“明月松间照,清泉石上流”的空间意境。从停车区通过引导空间,进入入口广场,穿过景观门廊,步入转换空间,再通过过渡空间来到核心水景,最后进入展示中心。流线清晰,一气呵成。
▲晨曦中的主入口空间熠熠生辉©章鱼摄影
▲入口大堂移步异景©中国金茂
▲转换空间层次有趣
▲展示中心意境深长©章鱼摄影
▲“鱼跃龙门”的设计构思
设计转译辛弃疾《青玉案·元夕》中“龙鱼”这个海洋文化主题,建筑形态上采用抽象含蓄的方式,叠加纯粹的建筑材质,来表达“鱼跃龙门”的构思:主体浮于水云之上,以高反玻璃幕反射外部水景,并结合蓝色波纹灯光表现下有河海。自“龙鱼嘴”为始,为场地打开未来之窗;周身披上参数化的“龙鱼玉鳞”,结合灯光设计演绎时代节奏下的灯光大秀;城市街角画龙点睛,一气呵成打造品牌标签;通过景观回廊串联未来社区大门,跃过龙门方可见金玉上城。
▲立面材质分析
立意成形后,设计如何让静止的建筑“舞”起来?是否存在一种表皮系统,既能满足功能需求又能达到效果展现?经反复推敲,内部以防雨百叶为“纸”,外部以参数百叶为“墨”,打造可呼吸的表皮系统。内部防雨百叶的特定间距,既保证内部光源不会透出,避免影响外部视觉效果,又满足分体式外机的排风需求。外部参数百叶通过参数化设计,呈现出特有的肌理,并随着时间的不同、角度的不同,呈现出不同的光影视觉效果,真正做到了让静止的建筑舞动起来。
▲可呼吸的表皮系统分析
在一体化色彩纯净控制的基础上,层次性丰富主立面表皮系统,形成别有洞天的主界面。静止的“鳞片”,随着角度的变化宛若微风拂过激起阵阵涟漪。时光更迭,建筑在光与影的变化中,呈现出不同的肌理。
▲主立面舞动韵律的演绎©章鱼摄影
同时,为强化示范区在城市主界面上的记忆点,设计对主入口景墙进行近人尺度的参数化设计,并融合黄铜色铝方通和米黄色仿炫彩石铝板材质,展现标识性立面语言。
▲主入口景墙设计分析
▲点点星光指引归家之路©章鱼摄影
▲施工现场图
技术图纸
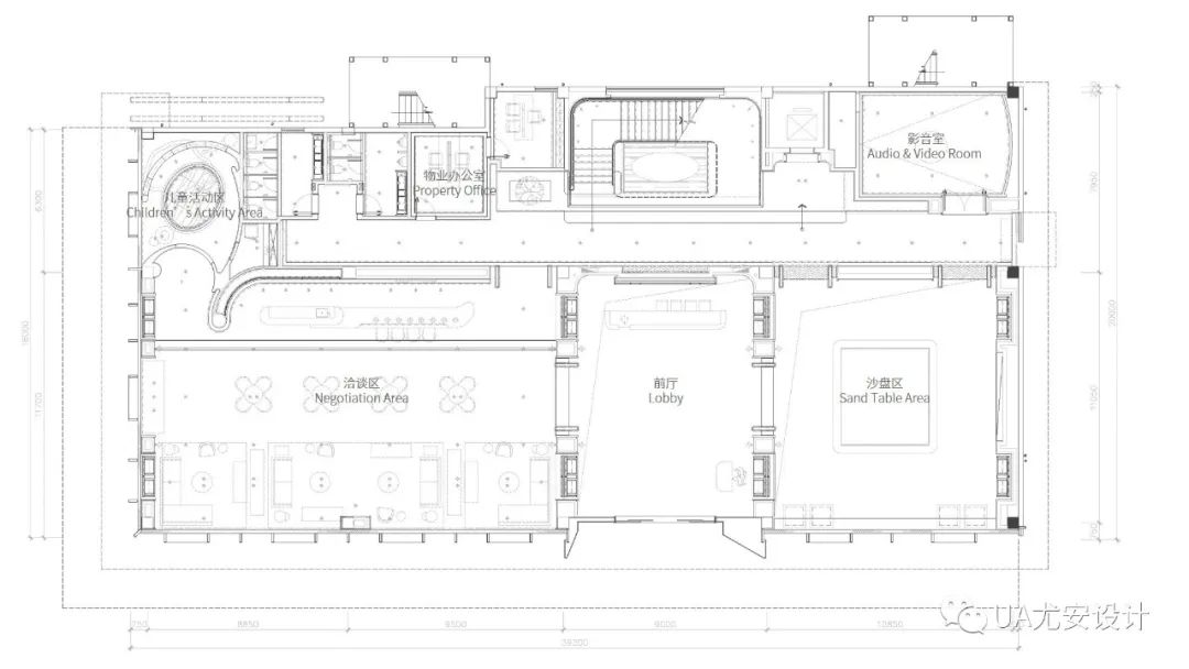
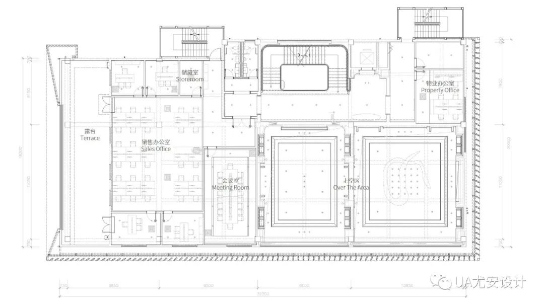
▲各层平面图
▲东、西立面图
▲南、北立面图
ATTENTION RelatedDesign
上海虹桥世界中心
上海绿地黄浦滨江
上海融创精彩天地
南昌国际会展中心二期
景德镇昌南里艺术中心
济南绿地国际博览城先行区
合肥保利茂街
武汉复星外滩中心(住宅)
长沙绿地星城光塔
海口绿地新海岸
南京紫金中心
绍兴镜湖希尔顿酒店
长春世茂莲花山文旅小镇
靖安绿地明镜湾文旅小镇
深圳融创智汇广场
上海碧桂园中心
青岛华润辽阳东路地铁上盖项目
珠海保利中油琴澳大都会
黄石绿地国际会议中心
广州・广物鱼珠产城综合体
南昌绿地儒乐星镇医养片区
南昌绿地象南中心井象文化旅游街区
青岛华润城崂山万象汇
温州融创・凯迪中心 W 酒店
安吉五峰山运动村松月半岛酒店地块
青岛青铁华润城凯旋门
珠海保利九洲天和屿墅
金茂府落成浅析
义乌绿地朝阳门
长沙北辰府
南昌绿地儒乐星镇国际健康城
成都中粮瑞府
江门华强国际公馆
宁波保利雅戈尔江上印
上海建工海玥瑄邸
南京中冶锦绣天玺
租赁住房产品模块需灵活
上海地产|仁恒置地世博二地块项目
融创华南 I AM I • 90 后新生代 129 产品场景升级
145㎡户型产品力创新升维
全景规划设计方法实践
新形势下社区设计逻辑的三大思辨
具有方案设计基因的施工图设计
UA 公建设计的三个准则
UA 七大人居设计观点
并不是只有豪宅才有好生活
四层及以上墅类产品创新实践
文旅产品有机活化的三大策略
有光,未来才能渐入“家”境
大型商业综合体的重构与共生
运营思维下,社区商业如何掘金
项目负责人到底负什么责
让设计和生活充满想象力
客服
消息
收藏
下载
最近


















































