查看完整案例


收藏

下载
Terphouse住宅坐落在鹿特丹附近的堤坝上,环绕在开放的圩田景观之中。设计的核心理念旨在秉承可持续发展的原则,使建筑能够应对更加极端的气候条件。独具特色雨棚以及位于地下层中的天井庭院定义了本项目的空间特征。
In the open polder landscape of dikes and small islands near Rotterdam, the Terphouse is situated as a solid volume on a mound in the landscape. The means used to make the house sustainable and ready for more extreme climate conditions became the main elements of the design, most apparent in the characteristic canopy and underground level with the protruding patios.
▼建筑与周边景观环境,the project with surrounding landscape environment
▼建筑外观,exterior view of the house
住宅地基是一座人工堆砌的小型土丘,起居空间位于一层,而卧室和次要房间则位于地下空间中。这种布局为公共生活空间引入了堤坝上的开阔景观视野。同时,精心的景观设计将住宅与花园紧密联系在一起,使建筑自然融于周围的环境。
The house is dug in the artificial mound on the island, situating the living spaces on the first level and the bedrooms and secondary rooms underground. This makes that from the living spaces the open landscape is perceived over the dikes. By folding the landscape around the house, a connection with the garden is made possible and the house is perceived as a modest solid in the landscape.
▼入口台阶,entrance steps
▼出挑的木粱结构形成雨棚,cantilevered timber beams form an awning
▼精心设计的景观花园,well designed landscaped gardens
▼建筑包围在景观之中,the building is surrounded by the landscape
▼外观细部,details of exterior
环抱在建筑周围的土壤为地下空间创造出舒适的体感环境,而天井庭院则为地下层引入了充足的光线以及与自然亲密接触的户外氛围。贯穿两层的天井庭院同时也重构了一层的空间序列,为不同房间创造出紧密的视觉联系。
The climate in the lowest level is moderated by the surrounding soil, while the protruding patios provide for sufficient daylight and an intimate atmosphere. On the top level the patio structures the sequence of spaces and provides for visual relationships between the rooms.
▼客厅,living room
▼厨房与餐厅,kitchen and dining
▼天井庭院,the protruding patio
▼大面积的玻璃将景观引入室内,large areas of glass bring views into the interior
引人瞩目的木梁结构从室内延伸到室外,在南侧立面形成凉廊顶棚。这种设计,模糊了客厅、阳台、室外以及露台之间的边界,使花园景观自然渗透到室内空间之中。
The pronounced wooden beam structure is continuous from the interior to the exterior and forms a canopy on the south facade. As a result, the boundary between the living room, veranda, outdoor rooms and the patio becomes indistinct and the landscape flows into the house.
▼冬日景观,views in winter
▼总平面图,master plan
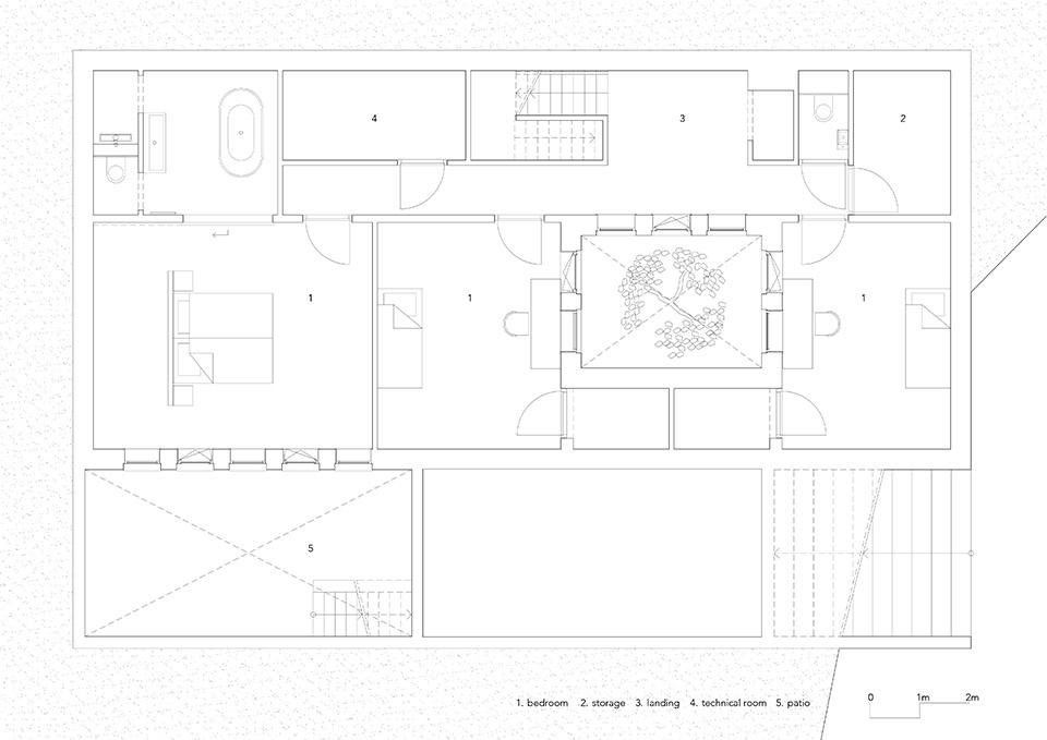
▼地下层平面图,basement floor plan
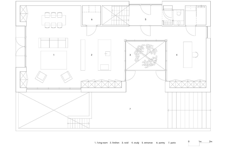
▼一层平面图,ground floor plan
▼剖面透视图,perspective section
Client: private
Architect: studio AAAN
Contractor: de Hek b.v.
Structural engineer: Pieters Bouwtechniek
Photography: Sebastian van Damme
客服
消息
收藏
下载
最近





















