查看完整案例


收藏

下载
第一次和屋主
H
先生碰面已经是
2018
年
11
月份的事情了,因为他工作比较忙,一直到去年年中才重新开始进行设计、施工。因为是
H
先生一直自住的房子,对需求很清晰,所以格局改造和风格定位都比较顺利。包括后期施工落地,完整实现效果预想,也需要感谢
H
先生一直以来的尊重和信任。
基本信息
INTRODUCTION
使用面积:77㎡
居住成员结构:一人
设计费:11000
半包费用:9万
硬装:25万
总造价(包含家具电器):35万
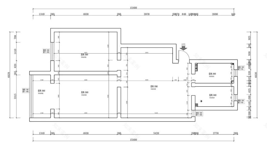
▲
原始房型图
主要需求:
1、整体风格硬朗一点,简洁、偏工业风;
2、热爱烹饪,需要大厨房;
3、满足一个人使用的收纳空间。
原始户型:
原始户型为两室一厅,厨卫狭小,客厅紧靠一扇500多公分宽的小窗采光,而且储物空间零散,浪费的空间也比较多。
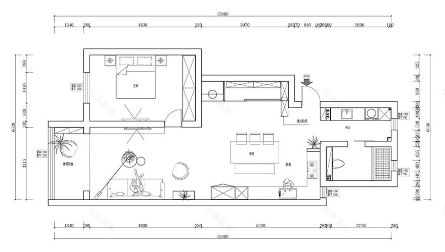
▲
平面布置图
主要改造:
1、原本主卧和客厅打通,两室一厅改成一室两厅,更契合一人居的生活需求,也让使用率最高的客厅得到充分的采光;
2、原本的厨卫空间重新整合,开放式厨房增加操作区,卫生间实现干湿分离;
3、改变主卧房门位置,在客厅、主卧增加储物柜。
实景图
PICTURES
客 厅
我们把这套作品命名为《拾柒》。因为屋内使用了大量的清水混凝土工艺,清水混凝土直观给人感觉冰冷不易接近,我们采用暖棕色、质朴的木色来中和,并特别选择3000K色温的灯光,就像一个略带清冷的17℃的秋天,在氤氲黄光包裹下,更凸显了温暖居家氛围。
H先生喜欢看起来整齐干净的样子,阳台没有像常规的做成晾晒区或者放个书桌,而是简单的局部抬高,变成一个休闲区。有朋友来的时候放几个坐垫就可以一起玩玩桌游或者以后有需要了也可以添置个休闲椅。
进门右手边原来客厅的凹陷处设计了一个储物间,除了鞋以外,行李箱、戴森以及别的杂物都可以放入其内,封闭式的收纳区避免了养成随手乱丢的习惯,让公共空间变得整洁舒适。
餐 厨
入户门正对墙面结合一组灯光做了个半圆弧造型,反射在大面的黑玻移门上,就像暗夜里的月光。
开放式厨房+超大餐桌的组合让屋主每次下厨都变成一种享受,而不用像原来一样被拘束在一个封闭拥挤的小空间里,也方便了平时朋友聚会。
卫 浴
原本厨房位置设计成了干区和洗衣设备间,整个卫浴区空间增加了一倍。通过干区走入卫生间,很好的避开了原来卫生间门洞正对公共区域的问题,也使得卫生间变得私密而独立。
淋浴间墙地面统一采用水磨石瓷砖,简洁大气。虽然有灯光的增色,但家里全是黑白灰未免显得有些沉闷,在局部采用了H先生的幸运色——黄色来做跳色。
卧 室
客厅的电视背景墙基本上属于“素面朝天”,只在一侧装饰了原木格栅。既保证了整个氛围的沉稳大气,也很好的实现了主卧房门的隐形效果。
主卧的背景选用了和地面纹理同样的地板上墙,搭配线性和暖色灯光,让原本枯燥的混凝土背景也有几分生动。
设计施工|犀宅原创设计
编辑|乔姐姐
摄影|西阳
往期推荐
110平轻复古风,每一处都是风景,最不能错过的竟然是儿童房!
60平全通透日式一居,当书房成为C位,窗前看书,灯下撸猫,不要太安逸!
客服
消息
收藏
下载
最近



























