查看完整案例

收藏

下载
内与外,艺术与自然,交叉,共生。
在过去60年,随着信息技术的逐步改变,住宅产业已迅速调整。这种“被迫调整”改变了我国社会中的传统生活方式,
我国
住房格局通常以“
n
LDK”来描述: n(私人房间数)L(客厅)D(餐厅)K(厨房)。因此
n
LDK概念可以描述房屋的价值。同时灵活,复杂有关联的空间因为这些
n
LDK而遗失, “功能”大行其道。
因此我们对这个项目当值力求打破n,L,D,K格局,意在通过重新的组织调整,得到正确和
适合业主
的生活方式。
项目位于北京市顺义区某别墅住宅区。建筑的西侧临近的是住宅区内的交通主动线,北侧临近住宅区内的交通复线。南侧和东侧紧邻其他公寓。X.J.H Studio得到委托后立即开始解决需求和问题。
设计师
从该
项目
中的
两个建筑层面着手设计:业主对
住宅
的设计要求和现有建筑所施加的限制。年轻的80后业主夫妇要求住宅隐私的同时,空间要有光感,空气流通性好,有庇护感,空间灵活性,收纳空间足够,同时具有简约的艺术气息。
住宅入户
|
白色运用在整个空间中
住宅结构造成
入户走廊
内的天花板比
住宅
内其它空间要低很多,因此设计师重新规划了空间范围以改善
住宅的使用
流线,同时让
挑空休闲区
成为一个舒适的空间。
门厅
像一个跳动的音符,带入了整个空间。极简的外表让人扑捉不到一丝
烟火
气息
。雕塑带有醒目的棱线和灵活理性的形态,白色运用在整个空间中,这时不同白色材质表达的
的纹理
感官
及斑缔又跳了出来,让人的视线在空间之外有了着落。空间舒适,节点轻盈。
一层客厅
|
简约,整体,还带有活泼感
客厅明亮,简洁,精致,艺术,一改以往的昏暗空间。南侧外扩的玻璃幕墙引入更多的阳光。空间内布置了20世纪的极简和现代主义家具
。客厅的主视觉
墙上被嵌入了不
规则的装饰造型
,
使空间
有了更多的变化性,更多的立体派视觉解构复杂性。但更重要的是,这些
元素
使得空间放大,
更加的
开放。
公寓的内部设计
超越了世俗装修,
简约
,整体,还带有
活泼
感。空间中生动的
马灯造型
与整体混合形成一幅生动的景象,就像是一曲洪亮,明晰,极简派的旋律。
挑空区域
|
使空间充满通透性,小池平静,水声悦耳
在内部放置
的挑空
,充满
通透
性。以此作为概念对方案进行了发展
,
五米的挑空空间可以进行所有的家庭公共活动:如
就餐
,
办公
,
看书,休闲
,学习,
游戏
。在
二层挑空
的周围是一系列的房间,有卧室,
衣帽间
,
卫生间
,储藏间。
这些房间
成为
挑空区
的缓冲带,隔绝
西侧入户的
交通噪音。
庭院,窗户,天窗,幕墙的开口尺寸
,
力求在
冬夏两季
极端的气候条件下,提供清新
的居住环境。
保持池塘平静,以及水声悦耳。
大量的玻璃幕墙
打开
建筑的
缺口,让光线渗透进来。顶端的开口让柔和光线在房间中散开,
通透的玻璃幕墙
让人们的视线到达院子。
玻璃幕墙渗透
下来明亮的光
洒到纯净的客厅区
,周边墙壁则是柔和的光,实现了开放和宁静的居住环境。
餐厅
|
有机的流动感,增强空间感
用餐空间
也是住宅设计的重点,厨房与餐厅需要有足够的空间来举办大型家庭宴会,并且还需要有足够的存储空间。
餐厅
尊重建筑特征
的
同时也突显了业主的现代风格
和对极简生活的追求
。
餐厅
区域
,西厨区域和挑空区域
紧密相连,并没有明确的分隔,使家庭能够根据需求来不断变化使用。所有的材料都精巧的结合在一起并将外部与内部空间紧密连接,塑造了有机流动的感觉,在增强空间感的同时保证了每
个空间
的私密性。
走廊
|
圆形天井,将光线从顶端引入室内
设计
师在
二楼顶部
布置了
圆形
天井,将光线从顶端引入室内。像许多日本住宅
一样
,光来自顶部天花的面,局部光线间接来自墙壁的面。
在
“禁闭”
和
“开放”
之间,
展现出
极简主义住宅
的一种独有精神内核。
人在房间中可以抬头望见天空,同这个庇护感很浓的住宅进行室内外交互。就算是阴天,也能提供了足够的光线。冬季,阳光又可以深入空间,进入
起居室
。
主卧
|
暖灰色的温暖织物与墙面形成对比
主卧的
风格简约,浓缩了新与旧,
内与外,
过去与当下。引入更多自然光,让空间更加流动。采用
纯白墙面,
保留其原本色彩和纹理。
暖灰色
的温暖
织物
与
墙面
形成了对比。
设计
师力求用冷静和清晰的线条来整合新与旧,并试图对空间,光,影,石,水,宁静表达敬意。
茶室
|
安宁开放的生活空间,带着森林的气息
业主
希望有一个安宁开放的生活空间。
设计师将负一层创造出一个整体性很强的
种植空间,
作画空间,品茶
空间。希望每天能够和自然接触更多一点。在这里,
设计
师以特别的立场来应对环境
。从挑空打下的
光
带着周围树木的剪影,
就像来自遥远的梦境,带着森林的气息,让人平静。
整个建筑具有连贯性,并具有宁静,微妙,私享的氛围。
使
建筑对场地
进行
敏锐
的
回应,并生成自成一体的绝妙环境
。住宅,更多意义上是一个供心灵休憩的空间,在忙碌中抽离,独享自由与宁静。
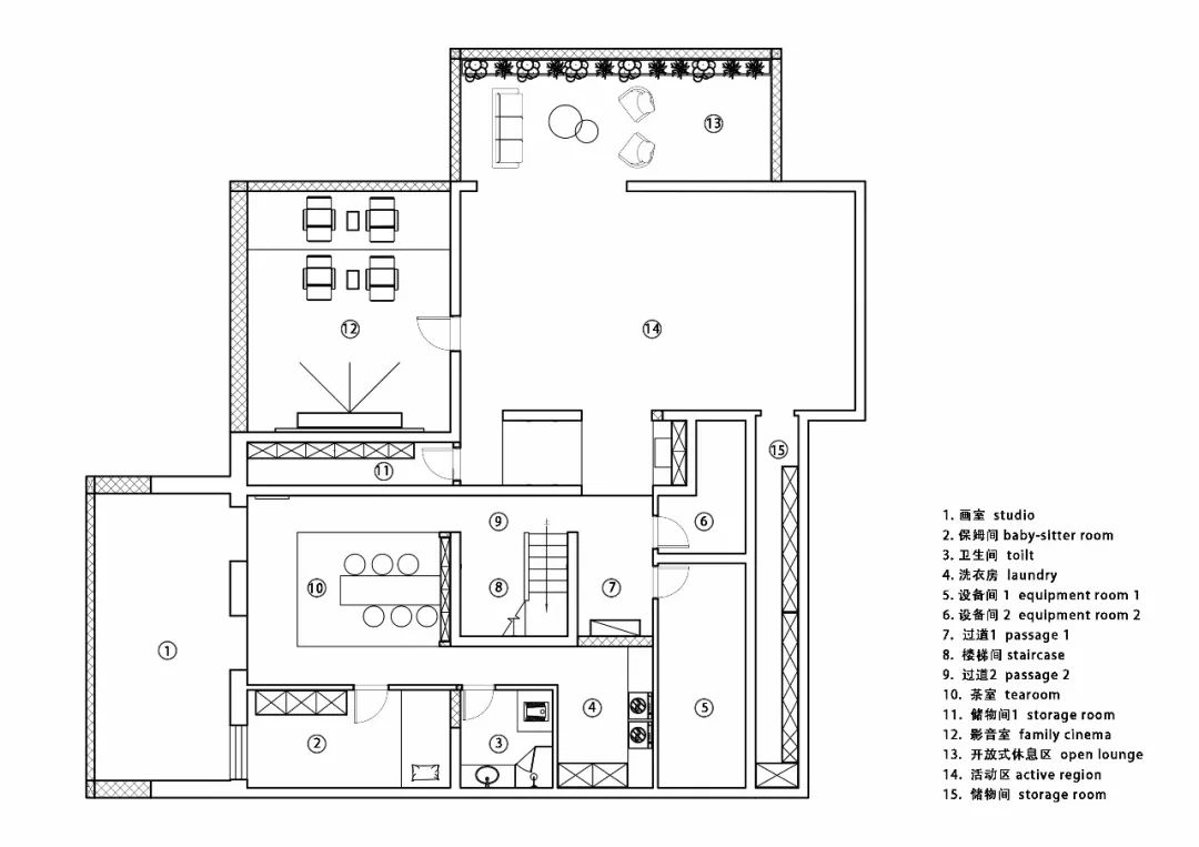
▲
负一层平面布局
▲
一层平面布局
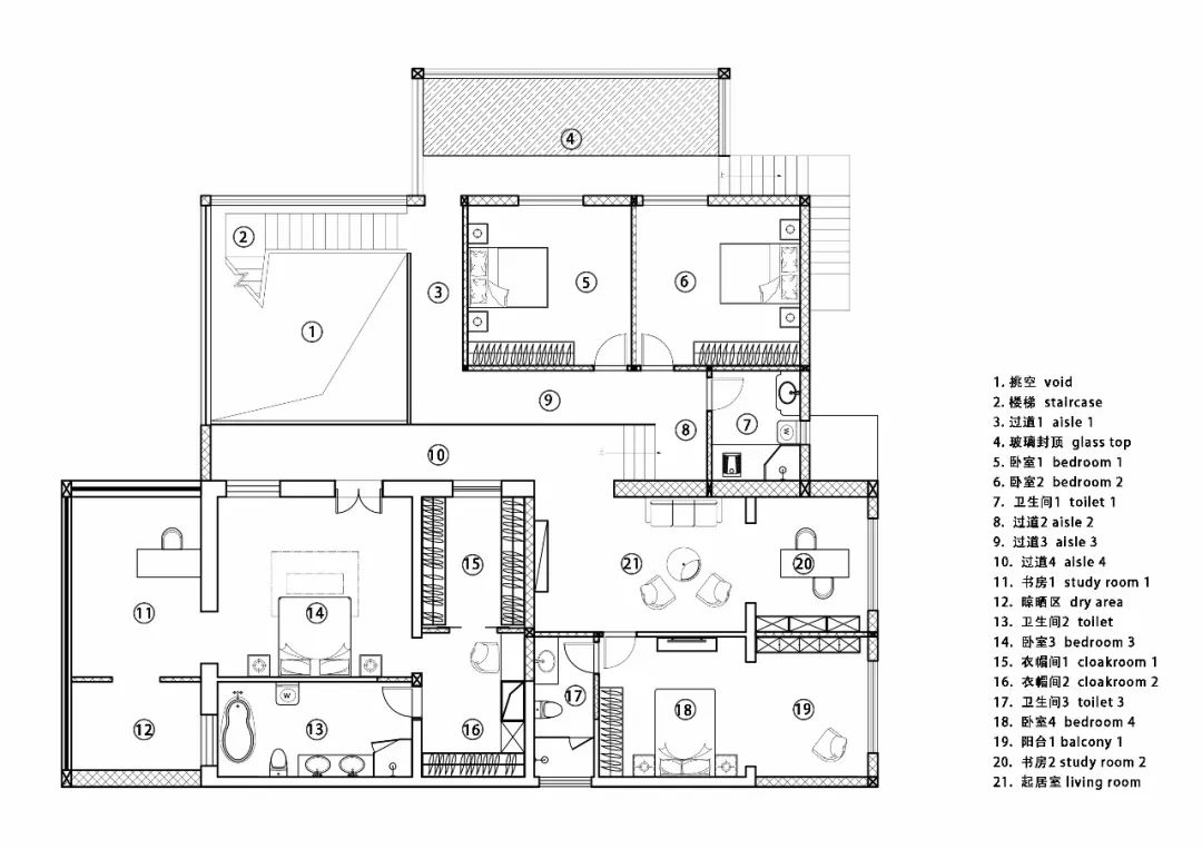
▲
二层平面布局
主创设计师:徐京华
深化设计师:陈卓,管法
渲染师:管法
编辑:陈卓
客服
消息
收藏
下载
最近
















