查看完整案例

收藏

下载
“最好的建筑是这样的,我们深处在其中,却不知道自然在那里终了,艺术在那里开始。”
HALL
门厅
“夫玄关者,至玄至妙之机关也。”
原有门厅空间过于狭长,为了重塑门厅的仪式感,设计师通过对建筑结构的分析,对结构进行了二次调整,将原车库变为入户门厅,墙上一幅具有雕塑美感的几何立体装饰画,与背景的毛石肌理形成对比,也是空间的一个转化,或者是生活角色的转变。对内与对外完美交融。
LIVINGROOM
客厅
不同层次的灰色相互搭配,营造出开敞,低调,舒适的氛围。再增添一点绿植,硬朗与明媚,充满反差又彼此和谐映衬,沙发背景墙采用木格栅,与楼梯紧密相连,增加了光线的流动性,又保留了视觉与动线的隐私度。
KITCHEN
厨房
从门厅进来,形成了一个宽敞的视线,独立的中厨,西厨采用开放式结构,增加了生活的趣味性。与餐厅、客厅彼此呼应,达到相互独立又相互贯通的效果。
在一清晨某个时刻,打开窗户,放一首Bandari的曲子,做一顿美味的早餐,阳光通过窗户照进厨房,画面温馨浪漫。
BEDROOM
主卧
主卧房采用了木质色调,以柔和的暖色系为主轴,平抚一日奔波的繁杂心思。主卫采用纹理不同的大理石,不单调乏味,不落空洞俗套。
LIVINGROOM
起居厅
书房与休闲区一体,屋主阅读之余还可以休憩品茶,打造了一个多功能空间。
BEDROOM
老人房
打破传统和旧的生活习惯,重塑一个舒适的生活空间,让老人的居住舒适度得到改善。将生活习惯和审美进行再设计,使整体房间既不乏设计感,又适应老人的居住休息需求。设计可以充满个性,但最终仍然是以人为本。
LIVINGROOM
负一层客厅
如星球表面的背景墙,沿着墙体设计大跨幅的酒柜,灯光洒落,品饮着上乘的威士忌,度过一个浅斟慢酌的夜晚,无疑是一件乐事。
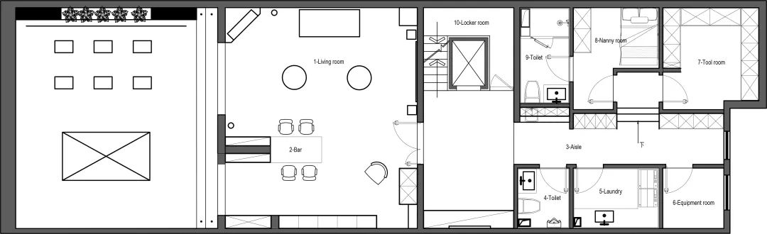
负一层平面图
一层平面图
二层平面图
三层平面图
项目概况
项目名称:亚运新新家园
项目地点:中国·北京
建筑类型:联排别墅
面 积: 680㎡
设 计 师: 徐京华
深化设计:浩南 麻豆
设计风格:现代
主要材料:定制墙板、定制五金、大理石、进口家具、智能影音
图片版权:WM Architects
WM Architects
CONTAC\US
客服
消息
收藏
下载
最近




































