查看完整案例

收藏

下载
Xiangyun DianGu Speace Desgin
生活方式解读者
这是香韵典故第 18 篇原创
「
风停雪驻,雾散云开。
攒了一夜的雪,蓬松的一层。
铺满一座城,
煮茶听雪
映衬着朝阳的温暖和霁空的清冽
。」
随光影流动,听自然回响
With the flow of light and shadow, listen to the natural echo
展间简约的轮廓于光影中浮现,举目之间,强调自然的回响,任风游弋,点染空间有序的生命力。门头的枣红木格栅,鳞次栉比,展现空间井然层次。
During the exhibition, the simple outline and light and shadow emerge, and between the eyes, the natural echo is emphasized, the wind is allowed to swim, and the orderly vitality of the space is highlighted. The jujube wood grille at the door, row upon row, shows the level of space.
我们遵循台式风格生活方式的基调,尝试表达传统韵味。展间中大量运用木质材料,利用木材自由呼吸的特质,营造一个有氧商业空间。只要走进展间,就能够感受生命的呼吸和流动。
We follow the tone of desktop style lifestyle and try to express the traditional charm. A large number of wood materials are used in the exhibition room to create an aerobic commercial space by taking advantage of the free breathing characteristics of wood. As long as you walk into the exhibition room, you can feel the breath and flow of life.
灯光明暗的对比之下使空间的层次感更加强烈,一亮一暗的灯光交织着为整个空间增添了一份神秘感。
The contrast of light and dark makes the sense of hierarchy in the space more intense, and the interweaving of bright and dark lights adds a sense of mystery to the entire space.
设计时选用藤编元素,透气、耐用,细腻精致又质朴,通过与现代材质的搭配,以独特的姿态,向着阳光或山海间,与万物一同醒来,感受风略过的痕迹。
The design uses rattan weaving elements, which are breathable, durable, delicate and simple. Through the combination with modern materials and unique posture, we can wake up with everything in the sun or mountains and feel the trace of the wind.
设计师尝试延展“经纬线”的概念,利用纵横交错的线条,编织一个平行世界。透过光影下交错重叠的空间韵律,来探讨人、空间、时间的变化规律。捕捉人内心的情绪,留下独一无二的光影记忆。
The designer tries to extend the concept of "longitude and latitude lines" and weave a parallel world with crisscross lines. Through the overlapping space rhythm under the light and shadow, this paper discusses the change law of human, space and time. Capture people’s inner emotions, leaving a unique memory of light and shadow.
展间中红色元素的运用,像是热恋时情人的爱语,热烈、直接、不可回避。不论何时何地,都只愿为你点亮眼睛。
The use of red elements in the exhibition room is like the love words of lovers when they are in love. It is warm, direct and unavoidable. Whenever and wherever, I just want to light up my eyes for you.
一楼展间在围绕商业空间逻辑的情况下,除开满足功能思考、行为思考、美学思考之外,还加入艺术思考。让空间中的“物”活过来,让他们和路过的人共同呼吸,乃至交流。让材料的质感,随着商业空间的铺展攀升。目之所及,一砖一板,都是鲜活的艺术。
The exhibition room on the first floor focuses on the logic of commercial space. Apart from meeting the functional thinking, behavioral thinking and aesthetic thinking, it also adds artistic thinking. Let the "things" in the space come to life, let them breathe together and even communicate with passers-by. Let the texture of materials rise with the spread of commercial space. As far as I can see, every brick is a living art.
分析图 Analysis chart
一楼原始结构图
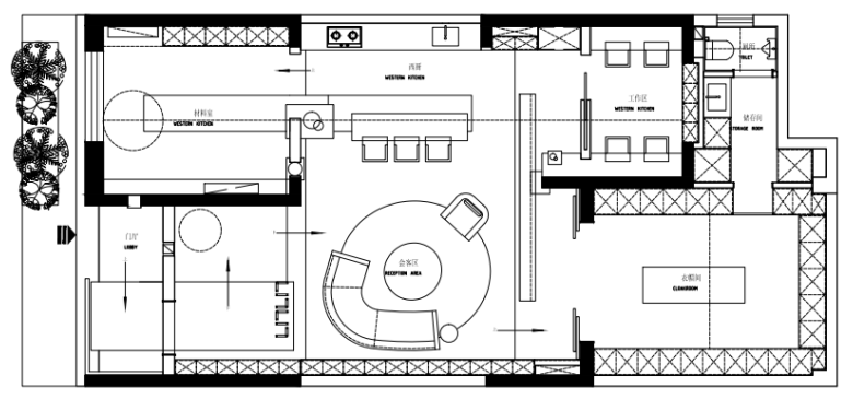
一楼平面布置图
项目 / 名称:科尔曼高定家具河津店展间
项目/ 面积:180㎡
项目/ 时间:2021 年
设计 / 香韵典故空间设计
设计 / 创意总监:马子雯
设计 / 设计总监:苟川平
设计 / 设计执行:苟川平、廖友林
THE DESIGNER
苟川平
马子雯
擅长:解读生活方式,伴随时间的推移,功能的重复利用演变多元化生活方式。擅用简洁的线条描述空间中人与人之间的距离以及人与物理环境之间的感受。山居认为空间中的结构是人的生活方式演变出来的居住空间。所谓的装饰不止为了好看,更多考虑到人与人之间的距离以及人与空间之间的物理感受。空间的主人的生活方式营造了空间的氛围,空间的气质带给居住者的共鸣也能够左右人们对生活方式的演变。
-end-
撰文/香韵典故
设计观点/香韵典故文化
TEL:18383136817/15802823975
扫码咨询
PASTREVIEW
典故新作 | 家,记录时光,山风拂面,岁月如歌
典故新作 | 不是一间房,一张床,而是一个家
典故 | 新作 | 家,流光溢彩地交融与亲密
典故 | 新作 | 抵梦
典故 | 新作 | 檀韵
典故 | 新作 | 无间
客服
消息
收藏
下载
最近


































