查看完整案例

收藏

下载
Xiangyun DianGu Speace Desgin
生 活 方 式 解 读 者
香韵典故空间设计新作—江湾城上叠私宅设计方案
About house
这是一所充满爱的房子
仪式感 / 交融 / 多元 / 趣味
许是一个合适的契机和刘先生达成了这样一个共识
刘先生与我们同坐火车上,认识相遇找到我们。
/
项目地址
|
四川
·
广元
·
托斯卡纳
项目面积
|
45
5
㎡
户型结构:叠拼别墅
.
上叠
设计公司
|
成都典故空间设计
主创:
王立伟
向秋红
参与设计:苟川平、袁健康
设计时间
| 2019.12
投资评估:
200万(设备、施工、主材、家具、配饰)
主要材料
墙板
、大理石、
墙布
、长虹玻璃、岩板
/
平面方案汇报视频
:
◆
业主需求:
5
0
岁左右夫妻(古董鉴赏行业),小孩房,一间长辈房(保留在一楼),一间客房(保留在三楼),休闲区,强大的储物空间,户外花园和室内衔接。
◆
业主诉求:
1
、仪式感:
不喜欢空间太封闭,要求有一定的互动性,对细节要求极高,摆件挂画乃至花盆的尺寸都要精确,同时也要求增加整个房子的艺术感。
2
、空间互动交流:
每个空间在保证相对独立的情况下又能相互之间有互动和交融,更利于感情的交流培养,回到家以后不是各自回到自己的房间,而是家人的陪伴,一家大小在客厅欢声笑语,其乐融融。
3
、生活品质的树立:
在保留
4
个卧室的情况下,生活品质不能降低,中西厨分离,多元化的生活方式。
卫生间做到三分离,多一些公共休闲空间,需要电梯和楼梯兼备。
4
、储物收纳充足:
每个空间都要有独立的收纳空间,必要的还要放一些消防设备。
◆
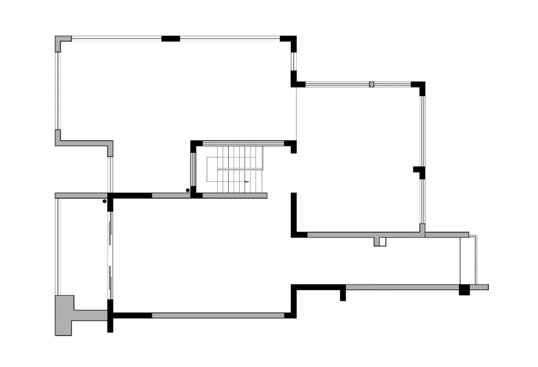
原始结构
:
一楼原始户型:
二楼原始户型:
三楼原始户型:
四楼原始户型:
围合 / 调性 / 温度 / 慵懒
◆ 原始户型分析:
1、四层楼共同缺点:
动线混乱,空间琐碎,整体欠缺通风采光,浪费空间大。
2、入户门太多,没有独立鞋帽间,欠缺入户仪式感。
3、每个空间被墙体划分琐碎,空间凌乱。
4、一楼同样因为动线导致空间浪费;
卫生间的门正对餐厅,餐厅空间狭长,不通透。
5、楼梯是区别平层最重要的交通标识,也是连接楼上楼下的交通纽带,而楼梯处于相对封闭空间,没有被展示出来,欠缺空间的灵动和趣味性,导致空间之间呆板,气流不通透。
一楼玄关:
一楼客厅背景:
一楼客厅电视墙:
一楼餐厅:
一楼大少爷房间:
二楼公卫:
二楼小少爷房间:
二楼主卧:
二楼主卧衣帽间:
二楼主卫:
三楼书房:
/
收纳美学 / 窥探 / 穿插 / 开合
/
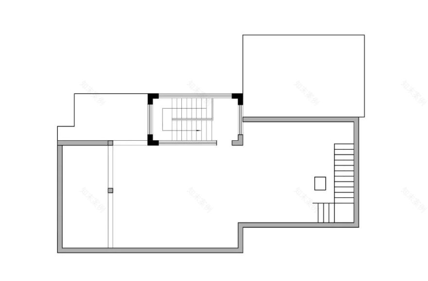
一楼平面方案:
二楼平面方案:
三
楼平面方案:
四
楼平面方案:
内嵌 / 凌空 / 平齐 / 归一
◆
改造亮点:
1
、打开
玄关到餐厅
空间:
把玄关到餐厅的墙体去掉,改成可旋转的长虹玻璃,让玄关以及餐厅空间衔接的同时也可以直接从玄关到餐厅,这样同时也保留了玄关的采光,也让整个空间增加了亮点。
2
、私密性解决:
为避免入户直接面对餐厅,在入户的对面增加了一个玄关柜及摆件,增加了艺术感。
3
、
空间开阔性:
拆掉了餐厅到楼梯的墙让整个餐厅更加宽阔,同时也打开了楼梯旁原电视背景的墙,让整个楼梯更加艺术性的展现出来,增加了原有空间的艺术感。
4、收纳美学:用柜体从入户玄关到餐厅延续到客厅及阳台形成收纳美学,取代传统条条框框造型墙面,客厅电视墙柜体,顶面预留投影幕布收纳槽,亦可朋友聚会、看电影享受聚会欢乐时光。
5、空间规划:每个主要居住人员空间都有独立的衣帽间及卫生间,增加了私密性,并且在必要的空间都是采用电动感应滑门,
增加方便性。
6、卫生间规划:提高卫生间生活品质,所有花洒及马桶全部采用预埋系统,大大增加了卫生间的干净整洁效果,并且每个空间都预留有壁龛,增加了卫生间的实用性。
7、
花园规划:
二楼和三楼的花园均采用了借景的方式,二楼花园带健身房,同时能看到江边的美景,三楼花园棋牌休闲室与二楼花园相互互动,站在三楼花园同时也可以俯瞰二楼花园美景。
/
倾情呈现
即人与空间与自然的关系,和谐统一,相互依存。
-end-
撰文/香韵典故品牌
设计观点/香韵典故文化
设计师
THE DESIGNER
王立伟
向秋红
擅长:解读生活方式,提高人的生活质量,提高人的身心健康,提高人的财产安全,创造人的生活品味。
注重空间的运用,精于灯光及软装营造室内气氛,运用现代手法与传统元素融合引入室内设计,把东西合理的利用,为每位辛苦的世人设计一个健康、舒适、安逸的生活环境,让设计融入生活,营造自然,品味,格调。
客服手机:18684090732
往期精彩案例
龙湖梵城贾先生私宅设计
青云之上的“幸福屋语”
110㎡ 高级黑白私宅,濯净尘杂,简璞之美
香韵典故私宅| 全案设计案例| 【 慕 . 雪 】
客服
消息
收藏
下载
最近





























