查看完整案例

收藏

下载
本案项目位于内江市东兴区汉安大道东段,是一套带有东方韵味的五层合院别墅,设计基于在地条件,融合宋代美学中轻柔、和雅、精雕细琢的特点,用沉浸式的软装设计手法,将宋代文人雅士的生活情景融于现代都会中,以现代解构语言演绎东方美学,在繁华喧嚣的都市中探寻一份宁静和一份淡泊,传达出一种独属于中国人的东方情调和生活方式。
烟柳画桥,风帘翠幕,参差十万人家。
吟赏烟霞,异日图将好景,归去凤池夸。
别墅一层 ONESTORYOR FLOOR 一层入口玄关处以一个桌案造景为开篇。软饰以宋代韵味为灵感设计,带来古朴且充满韵味的艺术气质。
室内空间使用大面积的木饰面,再以橙红色作为点缀之笔,日光倾泻,客餐厅空间呈现轻盈灵动之姿,将自然元素融入空间之中,使室内外融会贯通。
在一层客厅的天花设计造型中,主要空间采用了传统坡屋顶,使整个空间变得更加轻盈开阔,与前庭、园林可以自由互动,随心以统一的暖调收纳纷繁的物品,保持了一贯的雅韵。
书房以展空间之韵及典藏之美,自始至终营造着独具魅力的一片天地,暖灰与蓝的软饰韵味,加以文房四宝,将文人的古韵风情和东方沉淀即刻凸显出来。
别墅地下二层
- STOREYUNDERGROUND
地下二层作为接待客人或者主人回来的第一站,布局上采用平行手法,将宋代的元素韵味运用在空间中;挑空客厅设计,视野开阔,与地下一层采光互通。
绛色染织造型背景持续古雅,给予大体块陈设表达自由的空间,妙用铸就张力确立视觉稳定性,捕捉家具、器皿的温润质感、剔透色泽、纤枝绿意,让软饰之间产生了亲密互动。
主人的社交生活图景通过这里依次展开,休闲客厅为主,茶室为辅,通过开放场景,在空间里自由切换。迎客松与厅堂一脉相承,配上东方现代的软装家具,呼应别墅的典藏艺术气质。
借丰富的自然材料,高水准的软装设计及制造去演绎茶室的美学内涵,定制的河流桌从空间氛围到陈列设计,于细枝末节中聚焦到主家以茶待客的立意,让人在其中停留,探索,收获灵感和喜悦。
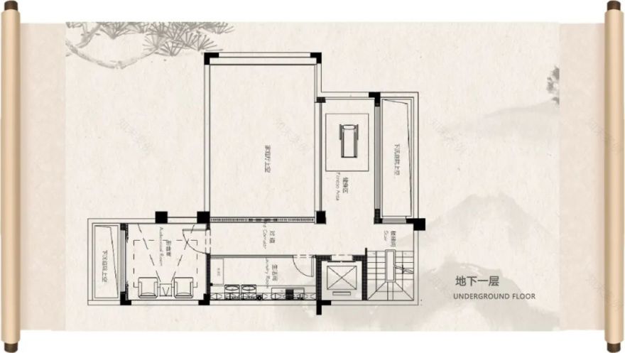
别墅地下一层
UNDERGROUND FLOOR
地下一层作为家庭的生活空间,在功能布局上把健身房、影音室、茶水间、洗衣房这些生活上常用的功能集中在这层。通过虚化手段,弱化空间界限,采用玻璃隔断使它融进地下二层,既扩大了空间视野,丰富主人家的生活方式,也增加合院的功能使用。
别墅二层
THE SECOND FLOOR
二层老人房依照套房打造,功能齐全,以饱和度低的柔和色系为主调,打造雅致舒缓的自然氛围,软装家具大多以弧线代替尖锐直角,刚柔并济,温润和谐,主人的情怀亦在此处呈现。
设计利用三维手法突破传统意象,发挥光影的慵懒气息,搭配棱角柔和的床型,垂落一个点,连接一条线,传递整面意境,悄然无声,更适于入睡。
男孩房以炫酷赛车为主题激发想象,高饱和度的蓝色使空间更具活力,极具个性与探险精神的涂鸦壁画,生动又活泼。空间中的车盘、头盔元素饰品增添童趣,瞬间勾勒出角色性格。
女孩房温柔恬静,以“宋代花艺”作为概念衍生,柔美中依然保持着纯真与个性。在暖色的基调下,手绘墙纸与床品装饰相互结合,构成中式的美与雅。而在家具的选择上,并没有全部依附于传统,而是选择让传统的元素在现代的背景下传达出文化根基。
别墅三层
THE THIRD FLOOR
三层
主卧造型吊顶让空间端庄而富有层次感,床头背景提炼出青绿山水画,与夹丝玻璃结合而成,在水墨之意的映衬下,晕染出了烟雨朦胧诗意,诠释宋代人文与自然的美学意境。
别具一格的洗漱空间情境,将雅致东方情韵彰显得恰到好处,含蓄内敛,与心灵共鸣起舞,枕黛蓝酣然入梦。
自万达入驻内江以来,八年时间持续深耕,布局版图不断扩大,为内江城市化建设写下了浓墨重彩的一笔,万达对于内江的意义,已经远超于一个开发商,而是一个重量级城市运营商。
而内江·汉安印,在跨越历史的长河后,今时今日,和煦的宋风依旧令人神往。崇尚儒家文学典范,成熟的哲学思想,赋予了此处宋代美学以强烈的人文精神,和至纯至雅的独特风貌。这也是内江万达文化旅游置业有限公司与伊派设计在项目中所希望呈现的人文思想。
【平面布局图】
项目名称 / 万达·内江汉安印合院样板间
软装
项目地址 / 中国内江
软装单位 / 深圳市伊派室内设计有限公司
软装团队 / 郑福明、段文娟、周静、陈钰萍、郑少丹
摄影单位 / 深圳形界空间影像
建设单位 / 内江万达文化旅游置业有限公司
特别支持 / 陈斌、李春雨、陈初银、戴兵、刘妙、张雯
- END -
郑福明
深圳市伊派室内设计有限公司创始人、设计总监
深圳室内设计师协会常务理事
高级室内建筑师
深圳市装饰行业专家
郑福明先生致力于研究“自然人文”在建筑空间里的表现,在传统文化基础上创新现代化,融会贯通、合理运用空间。从作品表达中,追求设计的本质,多个角度审视世界,理解自然与人文的联系以及作品本身的意义与价值。
段文娟
深圳市伊派室内设计有限公司创始人、艺术总监
深圳陈设艺术协会常务理事
深圳室内设计协会(SZAID)副秘书长
深圳市装饰行业专家
设计理念主张以人为本设计的基础,从生态、可持续发展方向出发,并通过对人与空间互动的体验感进行研究,从人体视、听、触、味、嗅等五觉,进行格调设计及氛围塑造,打造出集人体工程学、建筑学、材料学、美学、哲学等为一体的人性化舒适空间。
所有设计不是凭空捏造的,是有依据可言。包括功能,设计元素,空间造型等都是需要通过强有力的分析来进行设计,非刻意而为之,而是你中有我我中有你,交织在一起的一个有机整体。
丨往期精彩回顾丨
▲浙江交投 · 梦里水乡主题售楼处
▲蓝光·雍锦湾营销中心设计工程
▲西安 · 曲建唐寓售楼处软装设计
▲贝蒙&融创·滨江春城营销中心软装设计
▲湖南首个第四代建筑营销中心设计
▲奶油系侘寂美学样板房首秀
▲万达地产 · 东江城样板房
▲中铁·龙盘湖轻法式别墅
样板房
▲蓝光·雍锦湾新中式样板间
▲台州“TOP 房企”爱马仕橙样板房软装设计
▲安徽“TOP 房企”高端会所设计
深圳市伊派室内设计有限公司成立于 2009 年,是国家高新企业、深圳市“专精特新”企业,公司已获得建筑装饰工程设计专项乙级资质,专业从事整体空间设计、软装配饰设计和软装工程。
主要设计空间为地产、酒店、大型商业空间。
公司成立 14 年来,与万科、万达、恒大、中建、融创、金科、绿城、蓝光、鲁能集团等 300 多家百强地产及地方知名地产公司进行深度合作。
绿色、环保、健康发展是方向,公司已荣获环境管理体系认证、职业健康安全管理体系认证、质量管理体系认证等证书,以及“艾特奖”展示空间设计奖、巴黎设计大奖 Paris design Awards 金奖、意大利 A’Design Awards 金奖、“2020 年度影响力设计构”“2019 广东省杰出设计机构”等荣誉。
客服
消息
收藏
下载
最近
































































