查看完整案例

收藏

下载
项目名称 / 德阳文德·湖屿树洋房样板间
项目地址 / 四川德阳 面积 / 143㎡
软装单位/ 深圳市伊派室内设计有限公司
设计团队 / 郑福明、段文娟、高丽萍、金慧
建设单位 / 安徽文德控股集团·德阳文德房地产开发有限公司
摄影单位 / 伊派设计&图里摄影
文德·德阳·湖屿树位于德阳龙泉山路与澜沧江路交汇处,是一个以“人与自然的共生·共享·共健康”为主题设计的低密社区。在德阳地产市场趋同化日益严重的当下,文德湖屿树希望能为德阳客户群体打造一个充满创新与活力的高品质社区。
悦心之居与飞鸟山
当东方美学邂逅西式构造,引山水自然入室内,打造悦心之居。本案为跃层式住宅,一层布置为客餐厅、书房、儿童房以及客卧,二层则是更为私密独立的主卧。作为对生活的致敬,伊派设计希望能借此设计唤起对家的归属感,不仅打造身之居所,更打造心之属地。
客厅
开放式的空间,客餐厅连为一体,落地窗开阔明朗,空间动线分明。以新中式为主题设计的空间内,蓝金撞色提升空间品质,纯粹自然,山水婉转,东方时光跃然呈现。
配套赠送的大阳台,开阔明亮,一旁布置雅致大方的会客区,深黑大理石地砖如深潭,蕴藏水意,整块的岩板电视墙,纹路天成,是天然的山峦走势,亦如名家大师之画作。定制乳白皮革中式沙发组合恰到好处的置于空间中心位,搭配深色大理石混搭香槟色金属的茶几。动态的壁炉,百年的古董花器,空间内看似并不复杂的设计,每一处线条,每一个色块,皆在细节上极尽巧思,返璞归真。
餐厅
一蔬一菜,一汤一饭,自烟火气中成佳肴。顺着走廊一侧“飘飞”的银杏,是精致的餐厅空间同与之相对的开放式厨房,“一字型”的设计简洁大方。蓝白相间的餐椅、金属包边的木质餐桌、精致的水晶餐灯,以及精心定制的餐具摆设,就餐区处处彰显空间品质,极具仪式感。
书房空间同样以新中式风格为重点打造,功能性与美观性俱佳。靠墙的书架,古朴大方,可做陈列展示之用,提供充足收纳。大飘窗,引室外景致入内,增加空间层次。极具中式特色的天花、书案、笔架、瓷器等等,处处彰显着东方式美学的精妙。
主卧步入二楼,是独立私密的主卧空间,功能配套齐全。延续自客厅的装饰,减了一分厚重,清新淡雅间,颇具中式风韵。山水纹路岩板床头背景墙,高雅大方,定制花艺与精致摆件,于细微处彰显屋主品味,不过分张扬,却别有一番滋味。
阳台设置小型吧台,丰富空间功能。开阔的空间,高雅的装饰,在这里,清谈畅饮,享受慢下来的放松和自由时光,颇具情调。
靠近楼梯一侧,开辟一方空间,设置独立衣帽间,除为男女主人提供充足储物空间外,也提供更为高级的生活方式。
客卧的设计追求庄重典雅,时尚而不浮躁。大飘窗清透明亮,可做休闲之用,抱枕靠垫与床品的选择注重舒适感与空间适配,空间完整而和谐,浸润出静谧的生活氛围。
儿童房
女儿房以粉色为空间主题色,宫殿轮廓样式的床头与定制小动物立体装饰画相互呼应,于屋内造景,整体偏国风的装饰童真可爱,充满梦幻气息。
1
【一层平面设计图】
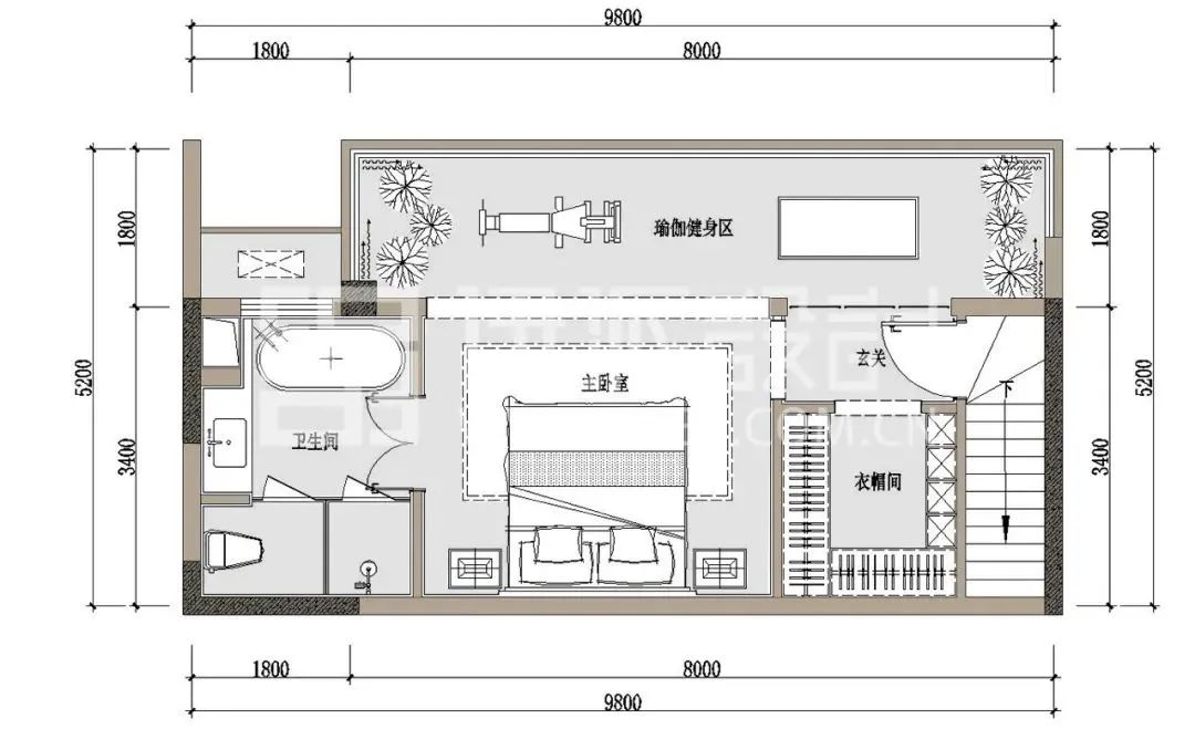
【二层平面设计图】
郑福明
深圳市伊派室内设计有限公司创始人、设计总监
深圳室内设计师协会常务理事
高级室内建筑师
深圳市装饰行业专家
郑福明先生致力于研究“自然人文”在建筑空间里的表现,在传统文化基础上创新现代化,融会贯通、合理运用空间。从作品表达中,追求设计的本质,多个角度审视世界,理解自然与人文的联系以及作品本身的意义与价值。
段文娟
深圳市伊派室内设计有限公司创始人、艺术总监
深圳陈设艺术协会常务理事
深圳室内设计协会(SZAID)副秘书长
深圳市装饰行业专家
设计理念主张以人为本设计的基础,从生态、可持续发展方向出发,并通过对人与空间互动的体验感进行研究,从人体视、听、触、味、嗅等五觉,进行格调设计及氛围塑造,打造出集人体工程学、建筑学、材料学、美学、哲学等为一体的人性化舒适空间。
所有设计不是凭空捏造的,是有依据可言。包括功能,设计元素,空间造型等都是需要通过强有力的分析来进行设计,非刻意而为之,而是你中有我我中有你,交织在一起的一个有机整体。
丨往期精彩回顾丨
▲蓝光·雍锦湾营销中心设计工程
▲西安·曲建唐寓售楼处软装设计
▲中建信和·钰和城营销中心
▲贝蒙&融创·滨江春城营销中心软装设计
▲湖南首个第四代建筑营销中心设计
▲四川文德·湖屿树·普鲁士蓝主题样板房
▲中铁·龙盘湖轻法式别墅
样板房
▲蓝光 · 雍锦湾新中式样板间
▲台州“TOP 房企”爱马仕橙样板房软装设计
/ 伊派设计 /
深圳市伊派室内设计有限公司,简称“伊派设计”,成立于 2009 年,注册资本 2000 万,专注于地产、酒店室内设计,设计领域包括酒店、地产售楼处及样板房、精装软装设计等。
自成立以来,伊派设计一直奉行“无创意,不设计”的设计理念,以质量为本,设计为先为服务理念,将品牌声誉视同生命。公司已获得建筑装饰工程设计专项乙级资质、国家高新技术企业证书,及“2018 深圳室内设计最佳室内设计公司”“2016 年度最具影响力设计机构”“广东省杰出设计机构”“2015 年度最佳设计机构”“十佳酒店设计机构”等荣誉。
Shenzhen YiPai interior design co., LTD, referred to as "YiPai design", was founded in 2009, with a registered capital of 20 million yuan, focusing on real estate and hotel interior design, design fields including hotels, real estate sales office and model rooms, hardcover soft decoration design.
Since its inception, yipai design has been pursuing the design concept of "no creativity, no design", quality oriented, design for the first service concept, brand reputation as life. The company has been awarded the special grade B qualification of architectural decoration engineering design, the national high-tech enterprise certificate, and the honors of "best interior design company of shenzhen interior design in 2018", "most influential design agency in 2016", "outstanding design agency of guangdong province", "best design agency of 2015", "top ten hotel design agency", etc.
客服
消息
收藏
下载
最近













































