查看完整案例

收藏

下载
一朝发祥地,两代帝王都。沈阳龙湖红运样板间坐落于有着“共和国长子”和“东方鲁尔”美誉之称的沈阳,这是一座拥有千年历史的文化古城,有着饱经风霜的厚重与生机。
01 Living room 客厅
180 平 当代设计美学空间
布局简洁、构造清晰、材质纯粹,设计师采用鲜明的设计语言,营造一个优雅静谧的高端美学空间。
没有 艳丽的流行色,空间整体运用低饱和度的“高级灰”与木纹饰面,将当代美学与空间气质有机结合为一种艺术化的表达。
淡雅白与沉稳摩卡色的糅合,兼顾生活的柔软与艺术的气息,诉说空间的温柔感,构筑都市质感的自然生活主场。
双动线的空间设计,有温度的入户体验。
餐厅位于空间中心,开放式客餐厅增加空间舒适感的同时,增加和家人间的交流。设计师对空间所进行的思考,让居住更有互动与温度。
02Study
书房
成年人寻一隅静谧,少不了一间小而美的书房。凭外界如何喧嚣,足以安放自己的灵魂。
方形造型写字台加以圆形地毯与之相呼应,方中有圆,圆中有方,方圆并济。沙漠色辅以点缀,细节之中,诠释着生活质感与当代意境。
03Bedroom
卧室
步入卧房,设计师以纯粹简约的线条回应人们对居住环境的感性需求。以人、空间、时间的关系作为思考延伸,探究其舒适的居住方式,传达简单有力的生活态度。墙面的“旭日初升”装饰画搭配柔和光线,令空间柔软又有力量,内心充实有光。
灰、白、咖色的基底,辅以织物、铜制等材质的点缀,不同质感和纹理呈现出如云海般丰富的居住体验。
04Children’s room
儿童房
儿童房延续主卧的简约灰白调,加以清新的马卡龙色书桌,涂抹孩童无限的美丽畅想。
艺术可以无处不在,格子间设计于方寸间创造无限可能,用精妙的比例和耐人寻味的细节,将艺术情感发掘出来。
05 Second Floor 二楼 -
设计师将二楼空间设计为客厅与儿童娱乐区的融合,赋予空间社、学、玩、享等多种属性,提供一个独立空间供亲朋友人交流与互动。延续客厅的自然木纹饰面和肌理感的装饰,给予访客唾手可得的舒适感,温和的设计呈现有温度的家。
木纹饰面、陶器、书籍等装饰,在定义空间质感的同时,以当代美学的立体设计,编织空间丰富的想象力。
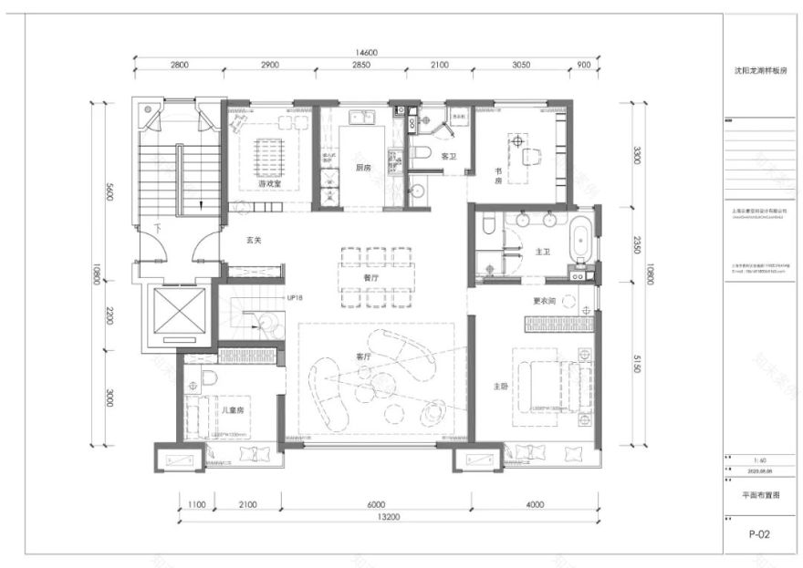
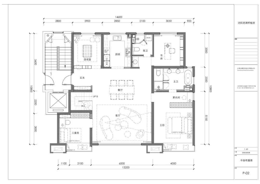
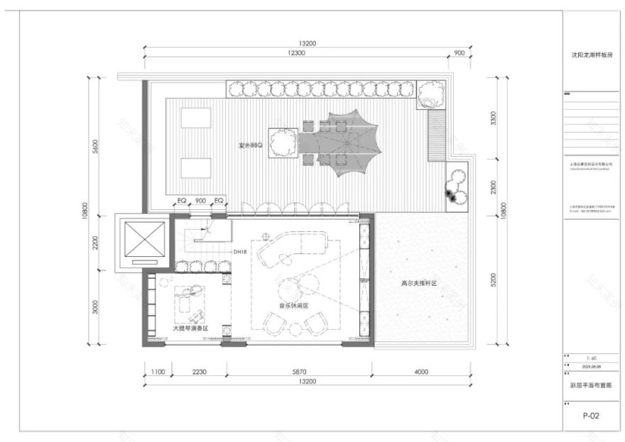
- 平面图
▲一楼平面图
▲二楼平面图
| 项目名称:龙湖红运样板房
| 项目地点:沈阳
| 项目面积:180㎡
| 项目类型:样板房
| 竣工时间:2020 年 11 月
| 项目团队:云素空间设计
| 主案设计师:李芸芸
| 参与设计师:杨莉 佟思齐
| 空间摄影:郭新新
本文编辑:@momo
「ABOUTUS」
云素空间是一家专业为地产商业空间提供室内设计、软装陈设的全案服务机构。自创立伊始,主创团队始终关注设计意图人与自然的关系,遵循“分解艺术与生活,重塑空间”为设计理念,用艺术视角营造意境空间,用艺术语言表达生活和对细节的把握。成立至今,已为国内众多地产开发商、酒店餐饮、办公空间、商业娱乐空间等提供全方位全流程一站式设计服务,多年高端项目及落地经验,具备专业的设计实践能力及规范的出图标准,不断探索新时代设计,从未止步。
李芸芸 |上海云素空间设计创始人
上海云素空间设计有限公司
Shanghai Yunsu Design
Co,Ltd
地址:上海市普陀区同普路 1030 号 A 栋一楼西户
Add:West House, 1st Floor, Building A, No. 1030 Tongpu Road, Putuo District, Shanghai
商务咨询 BUSSINESS INQUIRIES
手机 Mob:18616018006 15001808087
艺术匠心 | 空间策划 | 氛围营造
Art Ingenuity | Space Planning | Atmosphere Creation
客服
消息
收藏
下载
最近































