查看完整案例

收藏

下载
化繁就简
天下熙熙所求甚多,人间清欢是每个人的终极所求。可是当今社会,每一个人都被推着去面对世间纷繁,无可逃避。面对这个喧嚣不已的世界,大家都渴望着有一处宁静之地,没有复杂的人际交往,没有缭乱的合同文件……那就是家。
干净的配色,利落的棱角和线条
简约而不简单
生活就是化繁为简后的去伪存真
整个空间材料以大地色系为主,高级灰的面料、纯色皮革、大理石的巧妙使用,与温暖的橡木色、金色相辅相成,
集
质感
、设计感和舒适于一体。
营造出高品质的轻奢居住体验。
1
/
以退为
进
,以合为
汇
/
客厅区域采用大围合形式
,让彼此的距离相近却不局促。阳台和客厅之间用吧台相连,给阳光也留个旁听位置。
每一个细节的设计和打磨,都是对自己生活习惯和想要实现的生活方式的思考。
爱人在侧,知己两三,
在优雅与时髦兼具的流畅空间里谈天说地,会是怎一番酣畅淋漓。
2
/
烟火天堂,人间正好
/
袅绕的饭菜香,甘冽的美酒香,醇厚的咖啡香……各式香气流溢,组成了人间值得的味道。
翰墨悠长,小
酌美
酒,在阳台
一角便可拾得一刻闲暇。
米色桌椅和金色吊灯相辅衬,点点余光映洒在桌面的绿植上,恰似四月的温柔伴着七月的流光。
鼻尖缭绕着氤氲的咖啡香气,在书房里,跟随黑胶音乐寻找人生旅途的归属。
3
/
心有猛虎,细嗅蔷薇
/
如果非要用什么来装点内心的“猛虎”,那一定是流光溢彩的金,珍贵的珊瑚,以及雍容华贵的皮草。
动物斑纹的墙面和磨毛床品恰到好处的柔软,各式设计单品的纯
净典雅,使卧室
在温度和
格调
中拿捏有度。
每颗忙碌而远大的雄心,都一定乐于被温柔和美丽征服。
4
/
上善若水
,万物从一
/
水是万物运动的本质。此次设计多次运用水形元素,用水来塑造空间的轻奢灵动。
水润万物,上善若水。
水波纹金属挂画和水滴雕塑,中和了金属带来的紧张
感。
放松下来,一起来聊聊生命的意义。
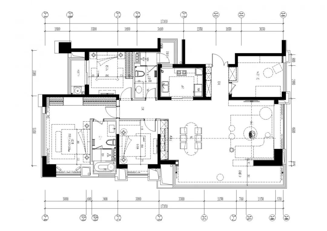
项目平面图
项目全名:中海寰宇天下A2户型样板间
项目地址:昆明
软装设计:元禾大千
硬装设计:上海大研
设计时间:2020.01
完工时间:2020.04
空间面积:173㎡
特别支持:昆明中海寰宇天下
摄影师:李景志
客服
消息
收藏
下载
最近

























