查看完整案例

收藏

下载
重庆融创文旅城曲水风和销售中心
距离你上次
看山听雨
有多久了 ?
引言
Intro
-
「高下渝州屋,参差傍石城。谁将万家炬,倒射一江明。浪卷光难掩,云流影自清。领看无尽意,天水共晶莹。」
清人王尔鉴早把重庆的山水之景描绘得入木三分,依山临水而建的重庆城,层叠耸起,风貌独特,
是为山城,也为江城。
融创曲水风和销售中心位于重庆西永,元禾大千设计团队通过剖析重庆城的在地文化,结合西永片区极为原生态的自然风貌:梁滩河、飞雪崖、飞雪瀑...并将其纳入空间,用艺术手法讲述。软装在表达东方意韵情感的同时,旨意让到来的人们在室内
看山听雨,感知自然
...
重庆力量 叠山顺水
山石荦确行径微,升堂坐阶新雨足。设计抛开繁杂的色彩想象,仅仅铺陈天地之间的颜色;除去冗杂琐碎的装饰,只余天地创造之原石与实木椅凳,来加强自然意境。
入口以重庆原生峡谷为灵感,
打通山谷之径,强调看山听雨之看山,
一步一步迈向自然,
曲水悠长 风和万象
身体随着动线穿过山川秀岭,侧耳聆听滴嗒水声,转身见一座流瀑型艺术品贯穿两层楼上下。侧眼望去洽谈区,飘空的灯带与这里的水滴形成对话,点亮看山听雨之听雨,象征
川流不息,万事皆顺
之意。
越过山,听见水,软装氛围的营造让身体自然而然地放松,步步行走间,体会陶渊明在《桃花源记》里描述的心境:“复行数十步,豁然开朗”。
我们盼夕阳,看落雨,喝不求解渴的酒,吃不求饱的点心,都是生活上必要的、虽然知道无大用却是很有意义的补充剂。软装设计的本质不外乎也是如此,静默却强有力地提升我们的生活品质。
绿水常在 青山不改
除了看山听雨,我们在潜移默化之中,将自然的木质香气融入空间,配合富有山石肌理的墙体,更深一步地加重室内的盎然生机。家具选择简练的现代元素,不张扬,不浮躁,木色与素净平行间,增添几分天然情趣与时代的气息。
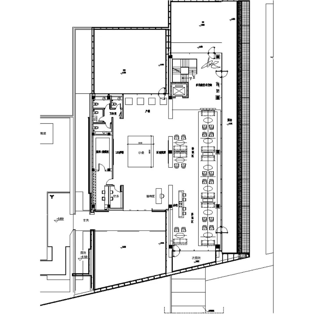
(一层平面图)
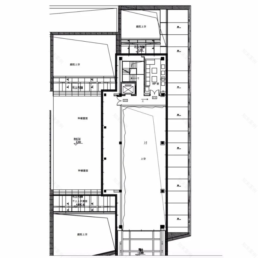
(二层平面图)
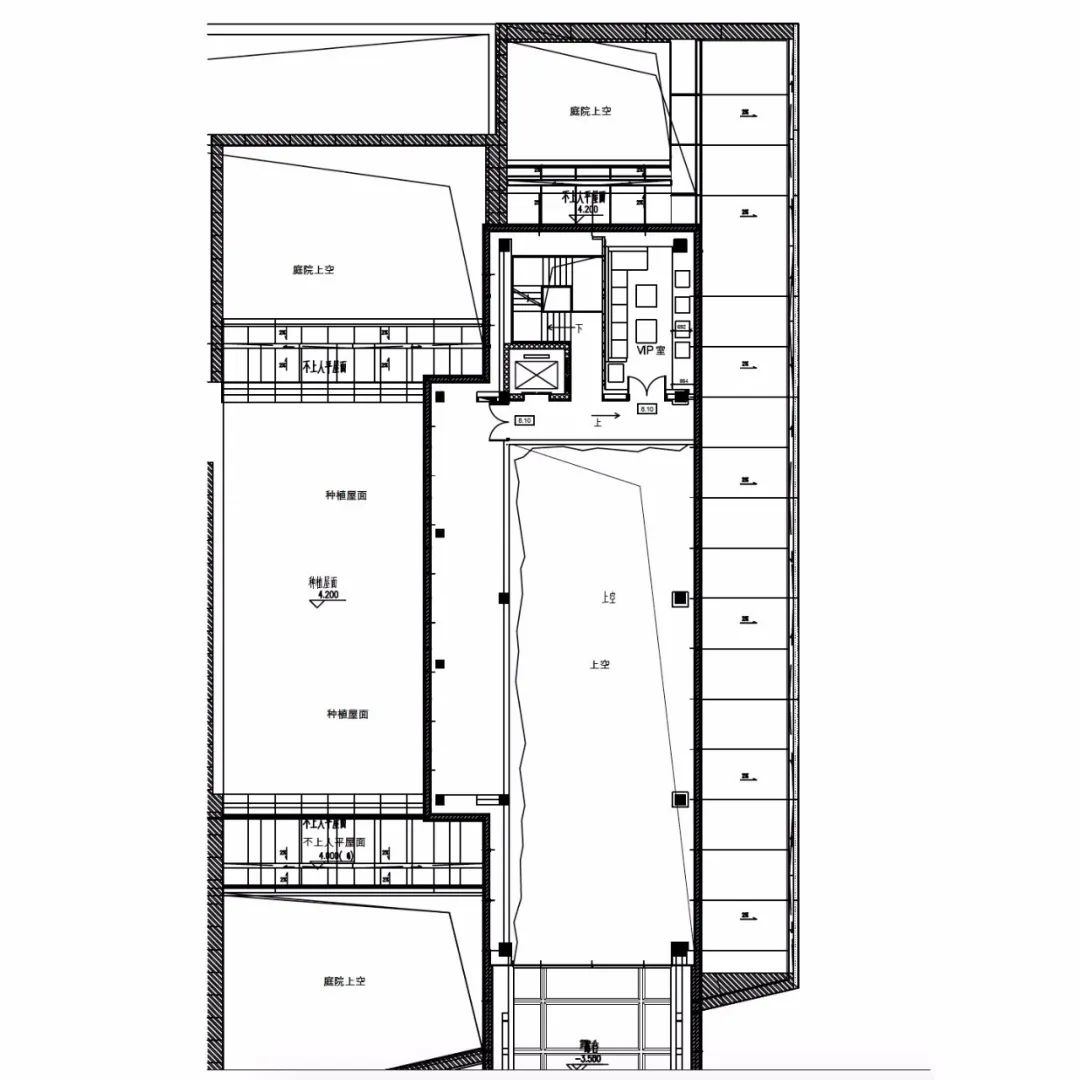
(三层平面图)
项目名称 | 融创文旅城曲水风和销售中心
项目面积 | 1205
㎡
项目地址 |
重庆西永
特别支持 |
融创西南区域重庆地产公司
软装设计 | 元禾大千
硬装设计 | 大伟室内设计(北京)有限公司
完工时间 | 2020年1月
项目摄影 | 三棱镜摄影
点击查看近期优秀项目
客服
消息
收藏
下载
最近








































