查看完整案例

收藏

下载
美国建筑师埃罗.沙里宁(Eero Saarinen)曾这样形容:城市是一本打开的书,从中可以看到它的抱负。
回望时光,唯有1号被铭记。十年前,深圳湾一片滩涂,十年后,深圳湾一号屹立于大湾区核心之重,映照深圳的城市精神。作为“中国顶级豪宅标杆缔造者”,鹏瑞以前瞻的品位,布局粤港澳大湾区,为城市塔尖人群创造跨时代的顶豪生活。
鹏瑞集团&于强设计作品一览
七年时光里,YuQiang & Partners携手鹏瑞,为其打造了鹏瑞总部办公、深湾会和深圳湾一号员工食堂。如今,我们继续坚持品质设计的理念,从鹏城到凤城,去探索人与空间的连接,找寻这座城市的渴求,执笔「1」号信念作品——顺德皓玥湾。
光之庭 艺之廊
『
ESTUARY GLORY
』
每一座豪宅,都是一座孤品。
秉承深圳湾「1号」信念与信仰,项目择址美丽的南国之城——顺德,集城市最极致的土地资源和最高层次规划格局,注入鹏瑞顶豪基因,与全球设计精锐再塑「1号作品」——鹏瑞·皓玥湾,为顺德注入标杆式高端人居生活范本。
矩形立面素净而典雅,每一块石材有序地拼接,在同色调的单一材料的使用中创造出建筑的阴影和纹理。它不仅是一座建筑的立面,而是一个巨大的建筑雕塑。
精心设计的玻璃盒子破石而出,犹如“美器中盛放的水晶”。设计以同一关联的逻辑延展,将「营销中心」与「艺术博物馆」奇妙结合,打造沉浸式的空间体验。
△ 设计意向缘起:光与水的交融
水,是城市的灵魂。德胜河是顺德的母亲河,这片土地,没有矫饰与虚浮,以柔性文化养育一方人。结合“以水养城”的理念,设计从此原点出发,拉开了顺德文脉的序幕。
设计以清新雅淡的水乡风物为线索,从城市的脉络中摄取灵感和元素,将河流、龙舟、民俗转化为空间视觉。
光影以极强的序列感,奏响起空间的前奏。自高处而下的光线使得墙面上的艺术品像漂浮于空中。自然光线透过天窗和结构梁,空间中的墙和地板仿佛瞬间消融,为展示区留下了完美而纯净的背景。
我们延续建筑“雕琢而现”的手法,利用大块面强调出重点空间,将室外纯净的形体关系延续至室内,流转的动线让场所更加丰富。现代的建筑语汇构建了空间通透、自然的格调。
在高达10米的神圣尺度中,雕塑感极强的室内楼梯成为空间中震撼的艺术装置。楼梯贯穿起两层,成为岭南历史走向现代文明的转换通道。设计结合历史元素和现代理念,完美诠释了城市的发展与人类的精神诉求。
建筑的体量与空间的轻盈相结合,这里抹去了都市尖锐的棱角,一切都回归于平静、舒缓的状态。像是一个被包裹在盒子里的艺术品,等待着人们去探索和观赏这里的未知,感受人与空间的情感连接。
建筑在二层插入一个水体,打造“星空艺术馆”概念,观者在此抬头可见满目夜空,饱览令人惊叹的无边江景,成为空间的最大亮点。
陈设产品中大量的铁艺、金属、玻璃,与温润的木色相得益彰,营造整个空间的拙朴之美。
△ 硬装材质
灯光是空间的灵魂,它是静谧、温暖、舒适、不过分耀眼的。空间延续简洁的设计语言,吧台由黑色框体一体建构,冷静而克制。
好的环境在无形中勾勒人们的情绪,塑造人们的心境。谦逊的色彩、自然的天光让这里看似静止,又充满趣味的变化。
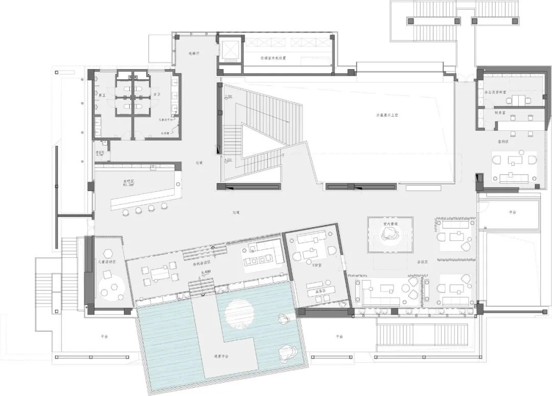
该空间以“城市的旋律”为主题,设计在原有平面上重新布局,使各区间规整,二层囊括洽谈区、VIP室、水吧区、签约室、冥想区、观景区和儿童活动区,为来访者提供一个抛开浮躁、摆脱束缚、放下包袱的交流空间。
中心区引入天光,巨型艺术装置成为空间的焦点。
木条状屏风保持原始的肌理纹路,不仅巧妙划分各洽谈区,同时保持空间的通透性。为营造更为高端舒适的洽谈体验,
所有来访者均需预约。
洽谈区以不同的组团形式呈现,既适合轻松开放的交流,也考虑到私密性的保障。
签约区以暖灰色肌理漆为底色,营造如归家般的氛围,
彰显法式、东方、优雅的格调,
180度采光玻璃将参观者引导到更广阔的景观中去。
该展示空间中建筑、景观与室内相互渗透,是一场关于美的精神空间的营造运动,而非各种艺术品的堆叠来聚焦空间意向。
在这个通透的场地中游走,会让人感受到不同季节不同时段呈现的微妙差异和视觉感受。
建筑的光与影、空间与结构在此消融,最终达到艺术与空间的共鸣。
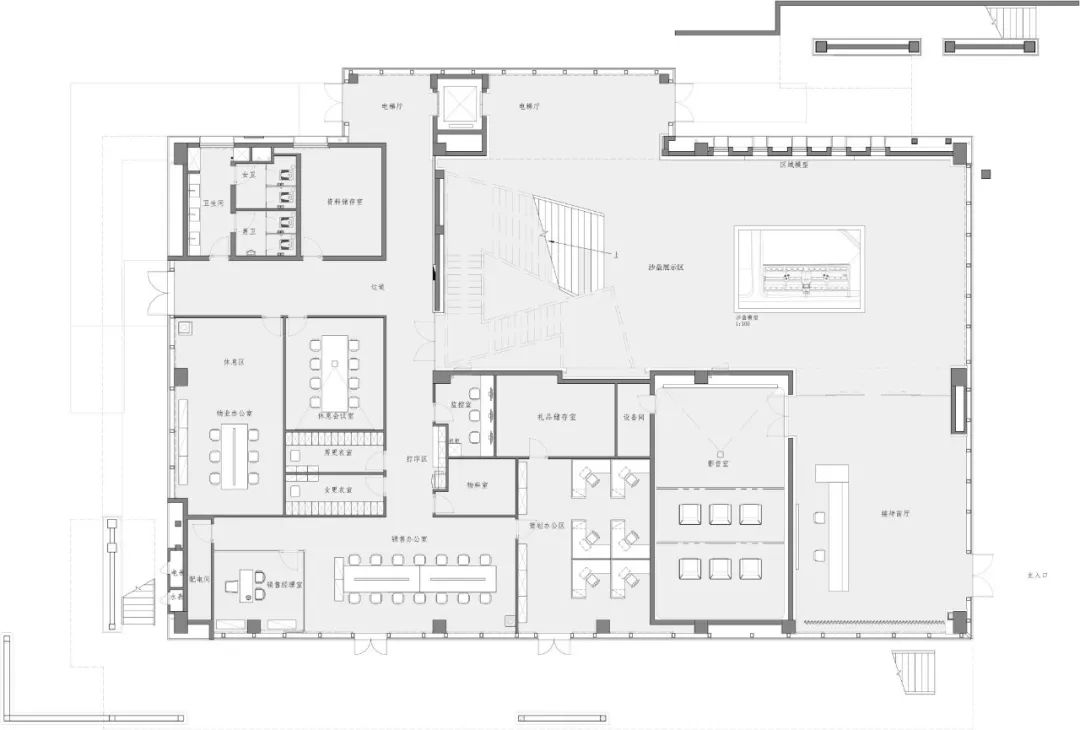
△ 一层平面图
△ 二层平面图
工程名称
|
鹏瑞皓玥湾营销中心
建筑设计
|
华汇建筑设计事务所
室内设计
|
于强室内设计师事务所
软装设计
|
沃屋陈设
项目完工
|
2020年
项目面积
|
905㎡
项目地点
|
广东顺德
项目摄影
|
郑焰
- 往期案例 -
▲深湾会深湾厅
▲深湾国际交流中心
▲
深圳湾一号员工食堂
关于我们
于强室内设计师事务所
YuQiang&Partners
:
于强室内设计师事务所于1999年创办,定位为“室内设计师事务所”,成为优秀室内设计师共同工作的设计平台。二十年来,我们组建了150余人的成熟工作团队,主创设计由海外归来的优秀设计师、建筑师组成。
通过多年的努力,我们建设完成了从设计、造价控制、工程技术到配饰项目以及高端设计产品供货的全方位设计服务系统,满足客户对全面设计服务,以及高端设计服务的要求。
YuQiang&Partners
于强室内设计师事务所
[联系地址]
深圳市南山区华侨城创意文化园北区A3栋502
0755-83842205
[人才招聘]
[官方网站]
客服
消息
收藏
下载
最近


















































