查看完整案例

收藏

下载
▲ 建筑鸟瞰
项目位于湖南省长沙市的后湖艺术园内,改造前为一栋三层民宅,主体结构为砖混结构,采用石灰砂浆的空斗砌法,且无圈梁构造柱,结构稳定性相当薄弱,但园区管理单位禁止拆除重建,只能在原有民宅基础上进行改造,因此业主希望通过建筑更新改造,将其转化为一所富有外立面特征的设计办公室。
▲后湖艺术区内一抹亮眼的黄色
▲俯瞰建筑与周边环境
01.新老结构的“套娃”处理 New and old structures are dealt with a method inspired by Matryoshka Doll
业主首先面临的困难,是如何在这个比较薄弱的砖混结构的基础上,再加上两层办公的体量。为了不影响原有结构,我们将新增的三四层的承重结构,跨越原有的一二层砖混结构,形成了一个类似“套娃”的结构加固方案。这种新结构嵌套老结构的承重方式,保证了新老结构各自的安全和稳定性,同时也为重塑建筑外立面表情提供了最大的设计自由度。
▲建筑改造前
▲改造概念示意图:新结构套老结构
▲改造轴测示意
▲从入口广场望向改造后建筑
▲改造后外立面
02. 一条"黄色大楼梯"
A Yellow Staircase
另一个摆在业主面前的突出问题,是作为一个商业用途建筑,周边被密集的房屋包围,仅仅能从附近的广场瞥见建筑的一角,其余立面均被遮挡,难以被顾客发现识别。为了从这种围困中破局,我们将建筑的主楼梯从内部转移到建筑外部的转角处,朝向广场敞开,通过醒目的黄色建立简单、明确的视觉焦点。
在业主的功能规划中,建筑一层是家居饰品展示和咖啡吧,二层为工艺样板展示和洽谈间,三层为设计办公室,四层为会议室和合伙人办公室,四层功能是一个随着顾客交流逐渐递进的空间状态,因此同时我们将楼梯与各层的主要体验节点进行了一个整体流线的串联规划,一条黄色大楼梯在建筑的新老立面之间,内穿外出,形成独特的空间体验,也创造出不同角度的人与人、看与被看的互动关系。
▲概念草图:一条连续的流线串联起各个观景平台
▲室外楼梯局部
▲楼梯与游客的自发互动关系
▲楼梯与外立面的内外穿插
▲楼梯与树木的穿插
▲楼梯与休息平台的对望
▲楼梯与内部悬挑空间
▲楼梯与办公的展示盒子
03.
绿意环绕,自然共生
Surrounded by greenery, naturalsymbiosis
建筑被周边密集房屋围绕的同时,也被几棵大树所环绕,树木与建筑的紧密关系,从设计之初就成为重要的考虑因素。
我们希望在不同的高度,树木都能与建筑的内外空间发生积极的联系:员工可以在树下的空间讨论,享用咖啡;在二楼的休闲平台能触摸到树干的表面,感受树皮的肌理;在三楼的办公区靠近树的位置设置休闲区,午饭和茶歇的时候,可以通过长窗观察到树叶在微风中的细小颤动,从而感受到绿意环绕、微风习习的松弛感,以缓解设计工作的疲劳。
每天上午温和的阳光会穿过树叶,将斑驳的树荫投入室内,树的姿态伴随微风的摇摆,在建筑立面上,形成一幅无声的光影演出。
▲树木在建筑表面的光影呈现
▲三楼办公区旁的休憩区
▲休憩区与树木对看
▲大树下方的一楼咖啡区
▲树干与建筑的穿插
▲从巷子望向建筑
04. 尾声 Epilogue
在网红时代的网红城市,每一座商业建筑都被期待成为网红,同时也常常被非理性的视觉效果的要求所裹挟。如何在建立外观视觉的独特性的同时,不失去建筑学分析问题、解决问题的理性内核;如何使建筑能不止于在社交媒体上的视觉奇观,同时能更多的回归真实的空间体验,为来访的顾客和员工创造细腻、舒适的空间环境,是我们在本案中希望做出的一点简单讨论和思考。
▲简单而易于识别的视觉标志
▲建筑与社交媒体的自发性传播
▲总平面图
▲一层平面图
▲二层平面图
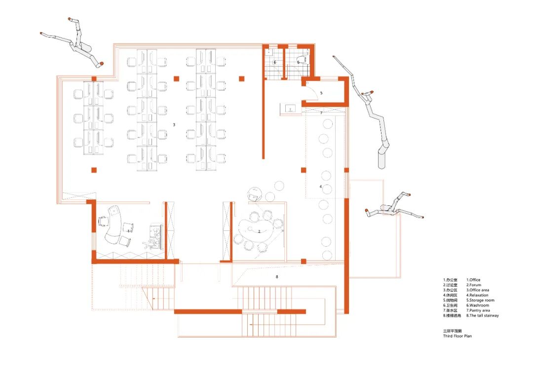
▲三层平面图
▲四层平面图
▲南立面图
▲东立面图
▲剖面图
▲剖面图
▲墙身大样
项目信息|
项目名称:长沙后湖猿厂营造办公室建筑改造
建筑设计公司:之行设计事务所
主持建筑师:陈恺,周子乔
设计团队:周依黎
结构:赵晓雷
给排水:邓丽
电气:胡思宇
室内:黄洋安、陆骏龙
「长沙猿厂营造空间设计机构」
景 观:蒋柯夫、黄金昌、杨强「湖南万道园 林工程设计有限公司」
施工:湖南亨建科技有限公司
业主单位:长沙猿厂营造空间设计机构
用地面积:1021㎡
建筑面积:966㎡
主要材料:黄色穿孔铝板,白色穿孔铝板,镜面铝板,白色真石漆
项目地址:中国长沙
设计时间:2020.04 至 2020.06
施工时间:2020.10 至 2021 年 10 月
摄影版权:陈远祥「山兮建筑摄影」,王欣「南图摄影」
之行设计事务所 ZHIXING ARCHITECTS
办公地址:湖南省长沙市雨花区德思勤广场 高升星光天地写字楼 4 栋 7 楼
18500230182(陈)
客服
消息
收藏
下载
最近






































