查看完整案例


收藏

下载

翻译
来源: АrсhDаilу
学园前住宅 / KKAA YTAA
建筑师提供的文字说明。 客户是一对新婚夫妇,他们都在工作。 我们的目标是紧凑的生活,一种即使在忙碌的日子里也能让您感到亲近自然的生活方式。 该场地位于山谷中,地下水从上游的大型水库直接流到场地下方。
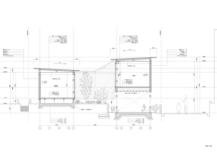
4米宽的道路尽头,除了房屋外,还有出租公寓、空置房屋一字排开。 人少车少,是个安静的地方,但缺少一对小夫妻居住的日常生活感,场地环境封闭。 我的第一个想法是将建筑物分成两半以创建一个空白空间。 通过朝这个方向打开每个房间,您可以感受到靠近您的光、风和绿色植物。
此外,该场地原本从路边到场地后方的高度差约为 1 米。 为了降低建设成本和防止地下水受潮,路边的建筑将采用与周围环境相匹配的高层建筑,并在下方设置停车场。 行人可以通过高架地板的缝隙分享光、风和绿色植物,同时利用高差保持最低限度的隐私。
空白处的桥梁是在两座建筑建成后安装的。 我的目标是一个既不在外面也不在里面的空间。 通过墙壁的开合,有多种可能性,例如可以让风逸散的外部空间,可以用作连接走廊的内部空间,以及连接甲板和自然的半室外空间。 通过这个留白空间,家庭生活开始与城市发生联系。
通过插入这个空白,我想在逐渐疏远的人们的生活与这座城市的住宅区风景之间营造一种距离感。
来源: АrсhDаilу
客服
消息
收藏
下载
最近















