查看完整案例


收藏

下载

翻译
来源: АrсhDаilу
弗劳恩费尔德多户住宅 / Ivanov & Partner
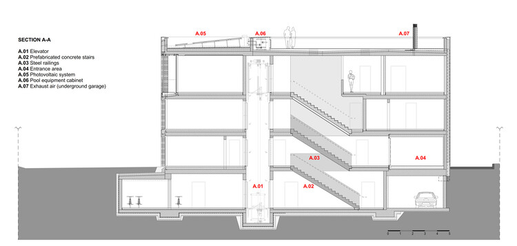
建筑师提供的文字描述。 位于 Frauenfeld General-Weber-Strasse 的新建筑不是普通的多户住宅,而是一栋经典公寓楼的共生体,共有 6 间公寓和一间豪华顶层公寓,延伸至整个阁楼(约 400 平方米),在屋顶花园(约 150 平方米)。 业主根据自己的需要使用 7 个单元中的三个:顶层公寓/阁楼、位于一楼的 4.5 室公寓和位于底层的 2.5 室公寓/办公室。 因此,这三个单元可通过私人电梯直接进入。 这样,住宅楼的一部分被同一家庭使用,类似于独栋住宅。
在城市规划方面,建筑非常紧凑和朴素,但同时通过大面积的落地窗向外开放,从而以城市的方式与周围的城市环境进行交流。 建筑物的四面都有露台和凉廊,因此在建筑上所有四个立面都得到平等对待。 宽敞的阁楼露台面向西北,享有城市的广阔全景。 地块的坡度和方向保证了长期畅通无阻的视野。 在街道一侧,提供了一个较小的有盖凉廊,它与大型阁楼露台相连,总露台面积为 135 平方米和 270°。
顶层公寓的核心是位于阁楼中间的露台。 约。 40m2的天井三面全部上釉,其余立面铺贴大尺寸瓷质炻砖。 两扇窗户穿透了不透明的露台立面,并从后面的房间延伸了视野。 例如,在厨房的窗户后面,有一个带座位的休息区,可以欣赏庭院的景色。 除了通风和照明外,天井还具有作为通道的额外功能,并通过金属螺旋楼梯将阁楼地板与屋顶花园连接起来。
该项目的亮点之一是由阳极氧化铝制成的通风金属立面。 立面的外观以水平铝型材为主,铝型材通过夹子机制连接到外部金属层(基板)。 铝型材经过阳极氧化处理,不会产生均匀的颜色,而是会根据光照条件/太阳位置而变化的颜色梯度。 阳极氧化铝(也称为阳极氧化)时,铝部件的顶层通过阳极氧化转化为坚固的氧化层。 阳极氧化铝部件可防止磨损和腐蚀,表现出更好的滑动性能并具有高贵的外观。
这座建筑的高潮是顶层公寓,包括整个阁楼和屋顶花园。 顶层公寓包括约。 230.0m2 净居住面积,约。 170.0m2 露台面积,包括。 阁楼地板上的露台和约。 150.0m2 屋顶花园面积,包括。 水池。 阁楼公寓已经在下面一层,即上层进入,上层和阁楼楼层之间的楼梯完全位于阁楼公寓内。 公寓的内部电梯,只有顶层公寓的居民才能进入,电梯在房间内自由站立,并用木头包裹。 在视觉上,电梯集成为内置家具的延伸。 开放式平面图根据房间功能和隐私划分为不同区域。 70平方米的生活空间四面环绕着梯田,四通八达。 无论太阳的位置如何,总会有阴凉处和阳光明媚的露台区。
为了在降低能耗的同时获得更高的舒适度和安全性,业主选择了全面的“KNX”楼宇自动化系统。 这种电气装置的智能总线系统用于实现房屋和建筑系统技术的所有组件的联网。 照明、遮阳、百叶窗控制、供暖和通风、多媒体和家用电器等功能,以及包括电池存储在内的光伏系统、能源监控系统和电动汽车充电站都统一、智能和高效地联网。
在许多设计决策中,架构师遇到了技术的绝对限制。 例如,对于无框推拉窗,尽可能大的元件是从承包商 swissFineLine 订购的。 单个元素的尺寸最大为 6.0mx 3.0m,每个元素的总玻璃面积最大为 18m2。 此外,各个元素都是机动化的,并与楼宇自动化系统联网。 由于阁楼公寓的很大一部分是完全玻璃化的,因此夏季的隔热对于舒适的室内气候至关重要。 对建筑业主来说,宜人的温度大约是非常重要的。 即使在盛夏,也可以在没有空调的情况下达到 23°C。 为了完成这项艰巨的任务,考虑了各个规划方面:建筑、建筑物理以及建筑技术。 建筑的反应是生活空间的嵌入式玻璃。 公寓的8个立面(包括天井)可以全部或部分打开,可以完全通风,这对夏季防热也有很大帮助。
另一个已实施的创新系统是所谓的 TABS。 TABS 是一种节能、创新的系统解决方案,适用于各种建筑的供暖和制冷。 在这个过程中,建筑质量,即混凝土,被用作能量储存和辐射表面。 在 TABS 系统中,建筑质量被用作热能储存器并提供低工作温度。 这对热泵的性能效率有积极影响,并降低了产生的能源成本。 地热能源(地面探头)用于二价操作(加热和冷却)。 该系统全年为房间提供很多舒适感,因为能量交换主要是通过两个热激活表面(地板和天花板)进行的。
客户最初想要在一楼的花园里建一个游泳池,但仍然只能私下进入。 在对变体进行了详细研究并权衡了所有利弊之后,明确决定将屋顶的游泳池整合为顶层公寓的一个元素。 赞成论点:排他性因为在屋顶上。 360°全景。 隐私。 屋顶花园的巨大增强/亮点。 反对意见:约。 预算的三倍。 巨大的计划工作。 由于其非常复杂,水池规划已发展成为一个独立的项目,其中检查了不同的变体、材料和技术设计。 除了结构设计之外,最大的挑战是建筑物理要求、技术安装、过渡的建筑设计以及关于防坠落的所有安全标准的实现。 泳池(净盆尺寸:长约11.0m,宽约3.0m,深约1.5m)位于天井和阁楼露台之间的屋顶花园。 为了在泳池区达到必要的深度,泳池下方的两个房间(厨房和第二间客房)只有 2.40 米高(= 标准高度),其余房间高度不到 3.00 米。 通往游泳池的通道是露台,垂直通道是通过露台中间的螺旋楼梯(见下一章)。 游泳池设施完全集成到架构中,因此无法从外部猜测游泳池的用途。 这样可以保护隐私。
放置在庭院中央的螺旋楼梯不仅仅是连接两层。 在建筑上,这个楼梯打算成为一个大型雕塑,展示在露台上,可以从任何地方观看。 为了实现这种雕塑特征,建筑师设计了一个无缝结构,“仿佛来自一个铸件”。 楼梯中间不能有支撑物; 拱腹和侧立面光滑无缝,因此保持了体积的均匀性。 设计的实现在技术上要求很高:楼梯眼中的栏杆是用激光管制成的,拱腹只是在之后安装和焊接。 楼梯在金属车间完全生产和涂装。 整个楼梯结构被运送到施工现场,通过气动起重机吊装到现场并锚固。
来源: АrсhDаilу
客服
消息
收藏
下载
最近

















