查看完整案例


收藏

下载
| 最大化提升鸡肋空间利用率! |
用同理心做有思想的设计。
——鹿可可设计
本期屋主是一对幸福的小夫妻,买下这套 88㎡的毛坯小三居作为婚房,目前家中就是夫妻俩常住,父母会偶尔过来小住。
原户型改造局限较大,还有好几个飘窗,作为要居住多年的刚需房,夫妻俩希望尽可能提升空间利用率,同时保持温馨通透、耐看有氛围。
在房子原户型有很多承重墙的情况下,设计师动用一些巧思,通过改变局部小空间,提高空间的利用率、增加飘窗的实用性。
原始户型是 88㎡的三室两厅一厨两卫,在有限空间内塞下这么多功能区,导致每一处空间都不够宽敞,需要将飘窗合理规划至功能区内,提高利用率。
问题梳理:
1、厨房有个大飘窗,希望可以加以利用,做封闭式中厨;
2、主卧希望有个小的步入式衣帽间;
3、客厅阳台需要封窗做封闭型,包入客厅。
1、不浪费厨房飘窗位置,将其设计为橱柜的一部分,成为厨房操作台面;
2、餐厅利用 650mm 飘窗位置做高柜,嵌入厨房电器,扩充厨房使用面积;
3、儿童房利用飘窗位置做成榻榻米床,增加卧室书桌区域,提高空间利用率;
4、主卧增加 L 型衣帽间,主卫利用飘窗位置做成洗手台。
客厅
对于本身不大的空间,浅色系是首选,这里大面积采用白色、浅黄色打底,搭配低饱和度的莫兰迪色系,再小面积穿插蓝色、橘色为点缀。地面铺贴柔光的浅水泥灰瓷砖,犹如画布一般,自身几乎没有存在感,呈现出一种清爽碰撞温馨的柔美氛围。
根据屋主喜欢硬沙发的习惯,选择了一款有筋骨的沙发,沙发旁边的空隙放不下一张边几,于是选择了一款身量纤纤的落地灯。黑色曲线与百褶灯罩的搭配,点缀暖调背景墙,有种亭亭玉立的曼妙。
休闲阳台做了封窗,把阳台面积都扩充到客厅,地面延着客厅通铺了水泥砖,材质统一视觉上有放大空间的效果。沙发旁搭配了设计感很强的单人位,亚力克+金属搭配简约轻盈,透明材质也保留了通透感,丝毫不遮挡窗外的绿景。
电视柜上方有一条横梁,结合横梁做了顶天立地的收纳柜,哑光奶白色的柜门与无把手的极简柜体,一眼看去仿若一面墙,大大降低柜子存在感,底部设计了一排抽屉,收纳小物品很好用~
餐厅
餐厅是纯净轻盈的白色基调,活泼的橘色吊灯为点缀。利用飘窗的位置还做了一个高柜,增加餐厨区域的收纳空间,中间预留了嵌入式烤箱的位置。
餐边柜是客餐厅的点睛区域,定制了马卡龙绿色地柜与奶白色吊柜,中间铺贴橘色小砖,防水耐脏,波浪造型也呼应了旁边的拱形门。除了颜值满分,功能也不止于餐边柜,还是个小水吧,安装了小水槽,平时直接在此洗杯子洗水果,拿到客餐厅动线更短,很方便,墙面还预留了直饮水机位置。
餐厅与厨房之间采用玻璃推拉门隔断,既可以阻隔爆炒时的油烟,又最大化保留了采光和通透度。厨房
U 字型厨房是清爽的小清新风格,定制橱柜整体是统一的白色,墙面是清凉的浅绿色墙砖。
由于厨房尺寸不够且墙体不能改动,没有放置双开门的大冰箱。解决方法是在家里设置两个较小的冰箱,一个放厨房,收纳日用食材储备;一个放餐厅,专门保鲜一些宅家美食、神仙汽水,以及一些囤的粮食。
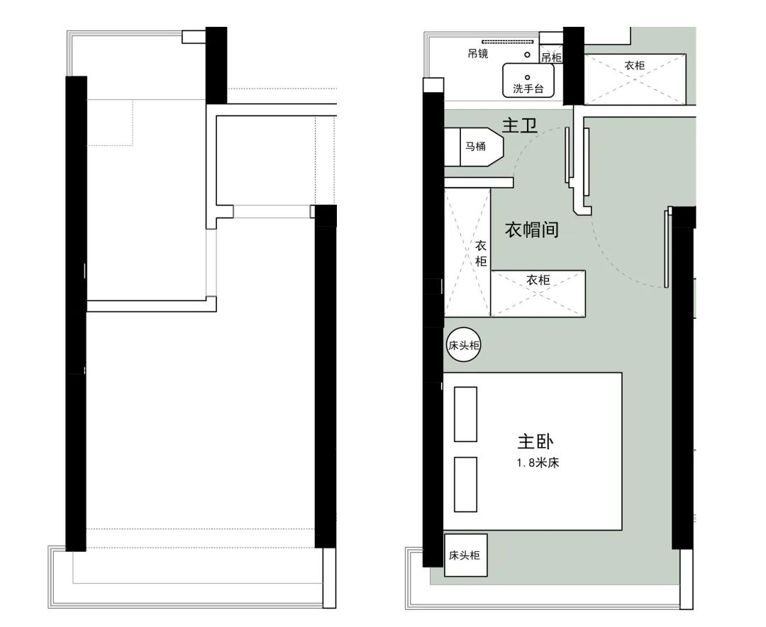
主卧
主卧改造前后平面图
为满足夫妻俩的衣物收纳需求,适度缩小了主卫空间,取消淋浴功能,只保留马桶,以此在主卧增加了一个 L 型衣帽间,主卫则利用飘窗位置做了洗手台。
主卧床头背景与客厅相互呼应,主色调也是清爽的奶绿对撞暖橘色。奶绿色背景墙里加了白色拱形元素,增加空间的层次感和元素呼应。
圆乎乎的橘色壁灯为点缀,俏皮可爱。犹如半透明的 Q 弹橘子软糖~
简约又很有造型感的花瓶里,摆放着常换常新的鲜花,袅袅的清香浸润着每一个幸福的日常。主卫
主卫在飘窗上设计了洗手盆,充分提高飘窗利用率,最左侧预留了专门放纸巾盒的凹位。
没有淋浴,贴半墙的砖就足够了,选择了白色的贝壳小砖,表面质感很 nice,随着不同的光线会折射着美妙的光泽,使素净的空间更多一丝精致感。儿童房
给小朋友预留的房间,整体采用了治愈系的淡蓝色,这种温柔又包容的颜色有助于滋长想象力,让人自然联想到天空️、海洋、外太空~床边放置了一个简洁的书桌,目前可以作为屋主的办公区域,将来也方便小朋友看书学习,书桌上方是一个白色悬空储物柜,床的底部也增加了储物柜。
长辈房
即使只是偶尔使用的长辈房,颜值和实用性也毫不松懈。床头背景刷了暖咖色的半墙漆,整个空间更多几许复古,温馨柔和。
皮质搭配原木的床头,长虹玻璃的床头柜,都透着几分宁静雅致的情调。
纸杯蛋糕造型的小壁灯契合整体风格。
公卫
公卫选用了浴帘作为干湿软隔断,是考虑到给宝宝洗澡时放浴盆比较方便。
我们常说装修是一次修行,是因为它意味着对自我的剖析,对鱼和熊掌不可兼得的取舍,修行过后,它也预示着新生活的开始。
在这个利用率满分、颜值实力兼备的新家,想必也会开始一段幸福的家庭生活旅程~
房屋信息
项目地址:广东 深圳
使用面积:88㎡
项目总花费:38w
设计机构:鹿可可设计
设计费用:100-300/平米(可面议)
客服
消息
收藏
下载
最近

























