查看完整案例


收藏

下载

翻译
Casa Mueble / Студия Heimat
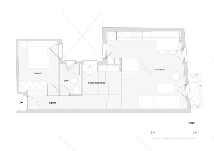
Задание заключалось в реконструкции небольшой квартиры, расположенной в историческом центре Севильи, площадью 55 м2. Потребность клиентов в создании нового пространства, состоящего из двух спален, кухни, столовой и гостиной, представляла серьезную проблему. Внешний фасад здания обращен к небольшой площади, обращенной на юг, поэтому наиболее используемые в течение дня помещения были обращены к ней. Напротив, ночные пространства расположены вокруг внутреннего двора.
С основной целью достижения гибких и открытых пространств в качестве шарнира используется промежуточное пространство, которое иногда используется как кабинет, иногда как гостевая спальня с раскладной кроватью, а иногда как единая часть гостиной. основное жилое помещение. Таким образом, он спроектирован как неопределенное пространство, открытое для трансформации использования. Квартира структурирована предметом мебели, который окружает план этажа как контейнер элементов, чтобы освободить пространство. Иногда это шкаф, иногда стена, рабочий стол, кровать и стеллаж, и даже сливается с самой кухней. Стратегия с материалом стремилась минимизировать количество используемых элементов, чтобы материал способствовал унификации пространственной работы квартиры уменьшенных размеров. Для мебели контейнера была выбрана березовая древесина, что объединило образ проекта. Наружные окна также сделаны из натурального дерева в интерьере помещений и покрыты белым лаком на внешней стороне во дворе. Окна с двумя створками были заменены одним, чтобы наслаждаться лучшим видом и иметь связь с экстерьером и небольшим балконом с растительностью, сохраняя андалузские традиции.
Кроме того, для пола был выбран крупноформатный керамогранит цементного цвета, чтобы создать однородное, непрерывное и практичное ощущение. Наконец, остальная часть интерьера окрашена в белый цвет, чтобы дом мог поглощать как можно больше естественного света, что вместе с выбором светлого дерева, такого как береза, приятно завершает пространство.
Источник: АrсhDаilу
客服
消息
收藏
下载
最近














