查看完整案例

收藏

下载

翻译
ソース: АrсhDаilу
フラミンゴ ホリデイ アパートメンツ / ロバート シルケ & パートナーズ
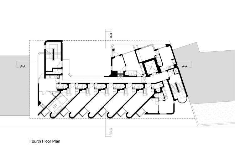
フラミンゴの名前は、20 年代と 30 年代の本格的なヨーロッパのデザインと、マイアミ、リオ、ホノルルの偉大な沿岸リゾート都市の華やかな贅沢を融合させた明るい熱帯のモダニズムを表しています。 フラミンゴは、熱狂的なバウハウスのように、ふざけて軽薄に彫刻されています。 海から 1 ブロック離れたホリデー アパートメントは、25m² のスタジオから 29m² の 1 ベッドルーム コーナー ユニットまであり、525m² 以下の敷地に 9 階建てです。
敷地は広く浅く、71戸中55戸が「正面」向き。 ほとんどのユニットは、フレズナイの高級な大西洋岸の郊外、シグナルヒルの斜面をずっと上って、ケープタウンのシュガーローフマウンテンへの答えであるライオンズヘッドで最高潮に達するドラマチックな景色を眺めることができます。 1 階のアパートメントは、8 階のアパートメントと同じパノラマ ビューを共有します。 前面に面したユニットはすべて、道路の向こう側のフラットを見ないように 45 度の角度にクランクされていますが、海に面した 16 の「背面」ユニットのほとんどは、ビーチフロントのコンクリートのジャングルを通り抜けていますが、大西洋に向かって正面の景色を眺めることができます。ブロック。
山の景色には、山のシルエットの上にある青い空と日光を最大限に引き出すために、背の高い窓が必要です。 そのため、フラミンゴの引き戸は床から天井まで広がり、バルコニーは隣のアパートから建築的にずらして配置され、個人のプライバシーを効果的に分離して最大化し、同時に景色をフレーミングします。
ホワイト ビニール タイル張りの床 (45° 傾斜) が温かみのある白い壁とつや消しの白い建具に溶け込み、上質なブラック メタルの D ハンドル、ブラックの縁取り、スター ウォーズのストームトルーパーのようなブラックのトリムが付いています。典型的なユニットの。 伝統的な「Johnsons White」の 150×150 のバスルームの壁のタイルは、150×75 のモジュールで、地下鉄が兵士に設置されているようにシャワーに向かって湾曲しています。 そうでなければ控えめなキッチンは、折り畳まれて同様の花崗岩のスプラッシュバックに包まれる頑丈なサルドのカウンタートップの微妙な誇示を提供します. そして、この単色の拘束のすべてが、パステルピンクの特徴的な壁と楽しく並置されています.
「コンデンサー ユニット ファサード ブライト」を回避するために、ユニットごとに 2 つの小さな円形の通気口しか必要としない一体型エアコン ユニットが調達されました。これは、建築家がフラミンゴの円形の舷窓とじょうごの周りの美点のように適用されました。 ファサードは航海的、彫刻的、楽観的で、黒いアイライナーで区切られた白いしっくいの肌があり、この地域の優勢なストリームライン スタイル モダンな環境に文脈的にうなずきます。 ホリデー アパートメントは、ケープタウンの主要なホリデー シーズンの最盛期である 2022 年 11 月に完成して以来、しっかりと使用されています。
実際、ベッドは冷たくなっていません。
ソース: АrсhDаilу
客服
消息
收藏
下载
最近













