查看完整案例


收藏

下载

翻译
ソース: АrсhDаilу
House Pujol-Otaegui / Raimundo Gutierrez Frías
アーキテクトが提供するテキストによる説明。 家は、マタンサスの北ゾーンにある、数区画のマンションの海に隣接する最前線に位置しています。 この区画の一部である土地は、ビーチで終わる 65 メートルの崖につながる緩やかな傾斜によって形成されています。 家の一般的な設計については、意思決定プロセスで決定的な 3 つの主な要因が考慮されました。その地域に優勢な南西の強い風から外部部門を保護すること、北の隣人からのプライバシーを維持することです。と南側、そして海の景色を最大限に活用する。
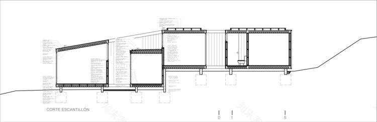
したがって、「U」字型のボリュームが提案されました。このボリュームは、隣接する境界に向かって 2 つの平行で密閉されたボリュームが面にあり、3 つ目は完全に透過性があり、海岸の端に平行になるように配置されます。 この構成の結果、中央には、風から保護された屋外パティオがあり、二重ガラスの共用エリアを介して海に視覚的に接続されているという特殊性があります。 共用エリアのスペースが家の中心軸となり、残りのプログラム要素 (ベッドルーム、バスルーム、ランドリー、屋根付き駐車場) はそれに垂直な 2 つのボリュームに分散されます。 北側と南側のファサードが狭いため、一部の部屋にはより良い照明と換気を提供するために、セミオープンの中庭が提案されました。 さらに、これらのパティオからは、場合によっては海を眺めることができます。
家の主な構造は金属フレームで構成されており、サポートなしで大きなスペースを構築できます(特に共有エリア)。二次構造は含浸した松で構成されています。 外装には、2 インチ x 1 インチの含浸ブラッシュド パインの垂直グリッドが設計されました。これは、屋根付き駐車場の格子として機能します。
ソース: АrсhDаilу
客服
消息
收藏
下载
最近
















