查看完整案例

收藏

下载

翻译
Отель Такаоне / Архитекторы Кей Кайхох
Экологическое планирование места, где заканчивается город и начинается лес. Это проект реконструкции отеля, расположенного прямо напротив станции Такаосангути, конечной остановки линии Такао железной дороги корпорации Кэйо, примерно в часе езды на поезде от Синдзюку. Отель находится в месте, где слышен звук уходящих на рассвете поездов и щебетание птиц. Мы подумали, как построить гостиницу там, где заканчивается город и начинается лес. Несмотря на то, что количество посетителей горы Такао достигает 3 миллионов в год, в этом районе есть множество достопримечательностей, но есть несколько способов провести время, кроме восхождения на гору, и, как правило, темнеет позже. вечером.
Команда проекта, возглавляемая корпорацией Keio, которая занимается развитием городов вдоль горы, стремилась создать новую базу для сообщества, а не просто отель. Это база для того, чтобы заново открыть для себя способы провести время в горах, реках и городах горы Такао, куда большинство посетителей приезжают на день. Это также центр обмена, где местные игроки, такие как трейлраннеры и пивовары, которым нравится образ жизни Такао, могут поделиться достопримечательностями Такао. Это также тренировочный лагерь, где группы студентов и рабочих могут укрепить свою команду.
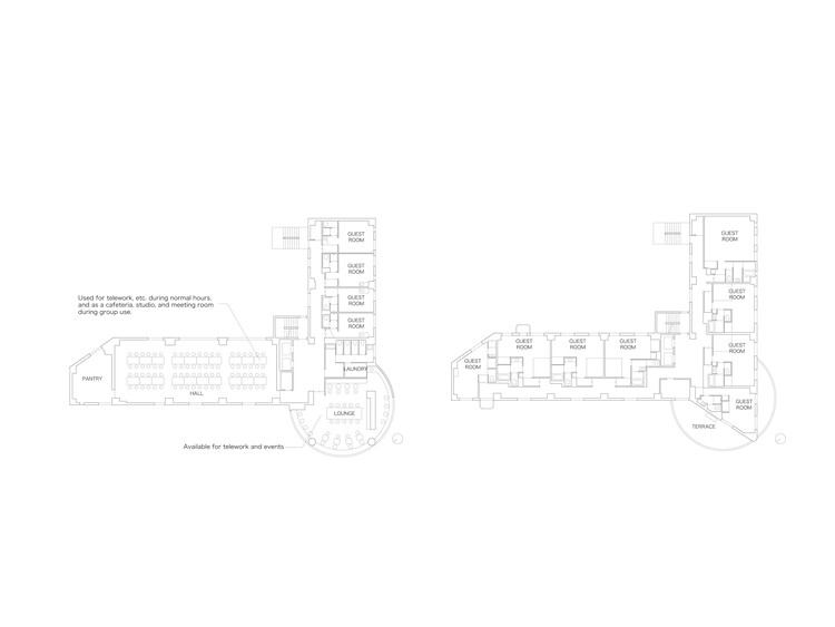
Мы создали место, которое позволяет людям по-разному проводить время, помимо пребывания в отеле. Терраса, выходящая на улицу и обращенная к перрону вокзала, — это место, где отдыхают велосипедисты, выгульщики собак и другие, а также ежедневно проводятся производственные мастер-классы. Первый этаж, который изначально был полуоткрытым пространством, был превращен в крытое кафе с приветственной стойкой для встреч жильцов и гостей. Внутренний двор представляет собой открытое пространство, где можно заниматься различными видами деятельности, а ежедневно можно разводить костер из местных деревьев.
Все здание было спроектировано так, чтобы быть сейсмостойким, так как необходимо было снести стены, чтобы отрегулировать количество и размер комнат и построить зал для размещения большого количества людей, например, для тренировочных лагерей. Комнаты оборудованы светильниками, которые можно убрать, чтобы получить роскошную гостиную для двух гостей и просторную комнату для команды из девяти человек, в которой можно проводить различные мероприятия. Двери с жалюзи на входе в комнату позволяют ветру, проходящему через долину Такао, проходить через комнаты, а коридоры позволяют отдыхающим слышать голоса своих друзей из комнат.
Бетонный мусор от сноса, опавшие листья, собранные с гор, а также ветки и бревна с соседних гор использовались для внутренней и внешней отделки. Уважая красоту сорняков, прорастающих на асфальтовом полу, и природную устойчивость Такао, существующий асфальтовый пол был срезан, чтобы увеличить количество почвы и освободить место для посадки. Принимая во внимание смешение видов, обитающих на Такао, и неместных видов, принесенных обувью альпинистов, в соответствии с этикетом горы Такао было добавлено место для мытья обуви. Тем не менее, насаждения на горе Такао и насаждения в этом комплексе будут продолжать меняться.
Управляющий персонал, местные жители, альпинисты, дрова, семена, опавшие листья, обломки бетона, господствующие ветры и все остальные персонажи, окружающие Такаоне, считаются событиями без субъект-объектных отношений, а сеть, создаваемая этими объектами, считается экосистемой ( включая людей), и мы разработали объект, который будет служить базой для деятельности, которая будет лучше поддерживать эту систему. Другими словами, это экологическое планирование, в центре которого Такаоне.
Источник: АrсhDаilу
客服
消息
收藏
下载
最近

















