查看完整案例

收藏

下载

翻译
ソース: АrсhDаilу
YN241 多目的ビル / スキマ
アーキテクトが提供するテキストによる説明。 延南洞はかつて低層の住宅街だったが、近年「ヨントラル公園」と呼ばれる京義線林道を中心に、カフェやレストランへのリモデルが加速している。 YN241の敷地は、延南洞の終点で京義中央線鉄道に面しており、延熙洞に通じる延禧地下道の前に位置しています。
YN241の依頼主は、既存の集合住宅「ヨングァンヴィラ」をリノベーションする計画で、低層階は小さくても質の良い音楽カフェとワインラウンジで構成され、人々に快適で豊かな体験を提供し、ブランディングする計画です。これをもとに展開します。 上層階は施主様が運営するオフィススペースとして利用され、屋上からは線路や電車の音、線路にそよぐ竹林の風景をゲストに提供することができます。
改造戦略 | 新しい服を着る代わりに修理する – 1990 年代初めに建てられたヨングァン ヴィラは、周囲の他の多くのヴィラと同様に、上部に赤レンガと伝統的なタイル張りの庇でできていました。 限られた予算と周囲の建物を考慮して、新しい服を着るのではなく、改造ではなく改造戦略として変更が選択されました。 延禧地下道に面する角の吹き抜け外壁を取り壊し、アルミ製の薄い縦ルーバーで開放感を確保し、ルーバー越しに見える空間は微妙な赤みを帯びたワイン色のスタッコとした。 屋根瓦の庇は、軒の役割を維持したまま薄い金属製の横板に変更し、屋上空間を示すガラスの手すりを設置するとともに、縦型のアルミルーバーと横型の金属板で建物の外観を一新しました。
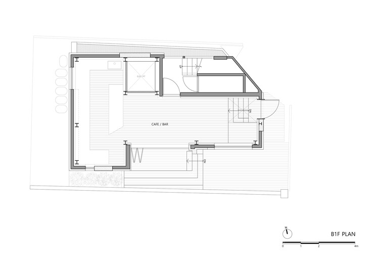
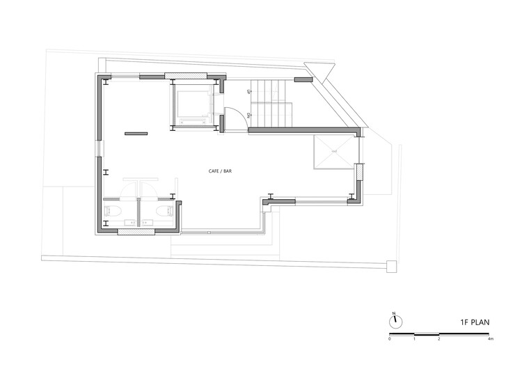
既存の半地下階と1階は開放的なラウンジスペースとして、放置されていた屋外空間や街路を繋ぎ、カフェやワインバーのスペースを繋げて拡張する計画とした。 建物の間口を確保するため、道路側に半地下直結のエントランスを新設し、内部階段上部に吹き抜けを設け、1階との視覚的なつながりと開放感を確保した。
2階と3階のオフィススペースと4階のリビングスペースは、新しいプログラムに対応するためにすべて鉄筋を介してオープンプランに変更されました。 1階のラウンジから屋上への移動を容易にするためにエレベーターを新設し、既存の水槽室の跡、新設のエレベータートップ、階段の頭上など、異なる物性や高さで共存するように計画した。
YN241は、ヨンナムドン(延南洞)の突き当たりにある地下通路を横断したり、線路の壁に沿って歩いたりすると、柔らかな色に光る提灯のような空間として認知されることを願っています。
ソース: АrсhDаilу
客服
消息
收藏
下载
最近

















