查看完整案例


收藏

下载

翻译
ソース: АrсhDаilу
住宅用•イラン、シラーズ仕様をさらに表示仕様を縮小
Koohsar Apartmentは山の前に位置し、丘の中腹に近接しています。 建物のエンベロープは山のシーンの一部を隠しており、建物の背後にある山のシーンと建物のファサードを視覚的に同化させるために、設計チームは提案された建物に溶け込むアプローチを開始しました。 建物のファサードに使用されるレンガの素材は、遠くに見える山の色合いを引き立てるように選択されました。 レンガのパターンは、下から上への動きをシミュレートし、訪問者の注意を背景に引き付け、シームレスな前景を提供します。
建物は都市の高台に位置しているため、建物のフォルムを強調するために、いくつかの大きくて深いボックスが利用されています。 これらのボックスは南の光を和らげ、さらに内部空間から都市の興味深いフレームを作成します。 建物の敷地はエントランスのみに限定され、隣接する建物と三方で接しているため、南側からの採光が得られます。
個室に十分な採光と安らぎを与えるため、建物北側にはセットバックを考えた。
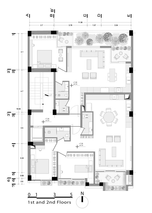
建物は地下駐車場2階、住宅6階の合計8階建て。 1 階あたり 2 つのユニット (1 ベッドルームと 2 ベッドルーム) を含む 2 つの住宅フロア。 フロアごとに 1 つのユニット (3 つのベッドルーム) を含む 4 つのフロア。 既存の道路や歩行者用通路のため、1 階に緑を提供するにはいくつかの制約がありました。 そのため、交通の流れを妨げないように、さまざまな高さ(バルコニー)に植生が割り当てられました。
ソース: АrсhDаilу
客服
消息
收藏
下载
最近













