查看完整案例

收藏

下载

翻译
来源: АrсhDаilу
El Gulungo 大楼 / ALH Taller de Arquitectura
建筑师提供的文字说明。 El Gulungo 位于一个被保护区包围的地段上,毗邻 Parque Lineal La Frontera 公园。 从其有机的几何形状和不寻常的体积,该建筑力求与周围现有的植被融为一体。
受古伦戈鸟巢的启发,楼板一层一层地交织在一起,产生各种视觉和空间感,丰富了室内空间,突出了外部空间。 体积的移动导致创建了一系列双高梯田,打开了公园和城市的视野。
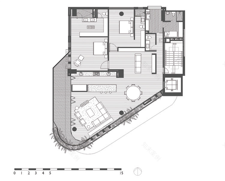
El Gulungo 是一座多户住宅建筑,由八层公寓和一层停车位组成。 建筑物的楼层在奇数层和偶数层之间变化,在位于双高露台上的公寓之间产生了类型学的变化,每一个都享有建筑物对保护区区域的 180° 景观。
立面主要由深色手工砖砌成,从塔楼周围的绿色中脱颖而出。 落地窗在内部和外部之间形成了一条漫射线,将周围的绿色和公寓内部每一层开发的花盆融为一体。
每一层的花盆,配以落地窗,营造出置身于一楼,甚至置身于楼顶的感觉。 大约一公里长的茂密花园拥有来自我们繁茂热带地区的一百多种植物,以丰富的基质和基本的滴灌系统为生,构成了这个 Gulungo 巢穴的生机勃勃、不断变化和自我维持的外墙。
来源: АrсhDаilу
客服
消息
收藏
下载
最近












