查看完整案例

收藏

下载

翻译
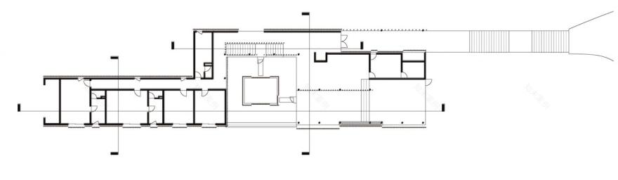
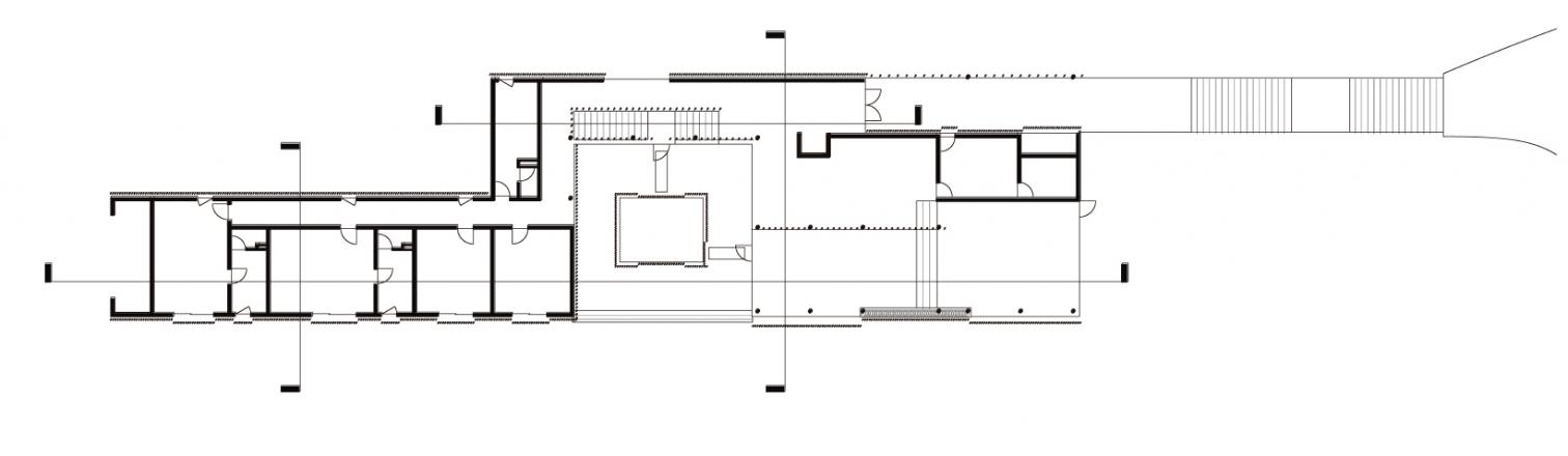
La presencia imponente de la Gran Muralla invita a buscar formas arquitectónicas que se integren en el territorio en vez de instalarse en éste como objetos autónomos y aislados. La milenaria estructura de piedra se mueve por el paisaje abrupto —en el que se percibe sin principio ni final— poniendo de relieve las formas naturales y el color cambiante de la vegetación. Esta condición es la que ha inspirado esta villa de bambú, bautizada por ello como ‘muro de bambú’ y situada en la zona más escarpada y difícil de la parcela. La construcción se ha llevado a cabo con bambú para expresar las diferencias entre este muro doméstico y la muralla. Mientras la segunda se asocia a valores como fuerza y división, con el bambú se pretende simbolizar el flujo cultural entre China y Japón, así como permitir que la luz y el aire fluyan entre el exterior y el interior. La posibilidad de juntar más o menos los listones de bambú hace que funcionen a modo de celosía, como el lienzo que separa cocina y comedor o el que envuelve el área central del patio, o a modo de tabique en el resto de la vivienda. El vidrio refuerza la gradación de espacios envolviendo el estar, el comedor y el patio. En el interior el agua cubre el suelo del patio, de manera que sólo dos puentes de hormigón pulido permiten alcanzar su centro.
客服
消息
收藏
下载
最近



















