查看完整案例

收藏

下载

翻译
Tipología:Auditorio Cultura / Ocio
Fecha:2000 - 2008
Ciudad:Oslo
País:Noruega
Fotógrafo:Christian Richters Hélène Binet Nick Kane Jiri Havran Henning Klokkerasen Nina Reistad
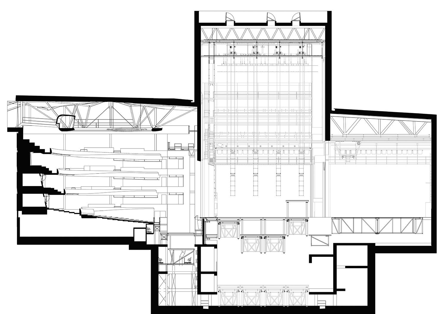
La asamblea nacional de Noruega decidió en 1999 que la nueva Ópera de Oslo se emplazara en Bjørvika, una zona de la ciudad situada en la orilla de su fiordo. El edificio, cuya construcción supone el primer paso de un plan de desarrollo para esta área industrial de la capital, se ha concebido a partir de tres ideas básicas. En primer lugar, la monumentalidad requerida por los promotores de la obra se ha traducido como una idea de unidad, de bien público compartido. Para facilitar el acceso y el uso por parte de todos los ciudadanos se ha compuesto un volumen horizontal a base de planos y pendientes transitables que permiten recorrer las cubiertas del edificio en toda su extensión. En segundo lugar, se propone el edificio como una gran planta de producción artística y técnica donde todos los accesorios necesarios para los espectáculos son construidos. En este sentido, se ha diseñado como una fábrica, con un esquema racional y flexible, tanto durante la fase de desarrollo como para su funcionamiento futuro. Y finalmente, por su situación en el puerto, lugar tradicional de intercambio entre Noruega y el mundo, la Ópera se presenta como el umbral entre la tierra y el mar, la vida cotidiana y el arte. Este concepto se materializa en un muro curvo que contiene las salas de música.
客服
消息
收藏
下载
最近















