查看完整案例

收藏

下载

翻译
Tipología:Institucional Rehabilitación Torre
Fecha:1996 - 2008
País:Luxemburgo
Fotógrafo:Christian Richters Georges Fessy
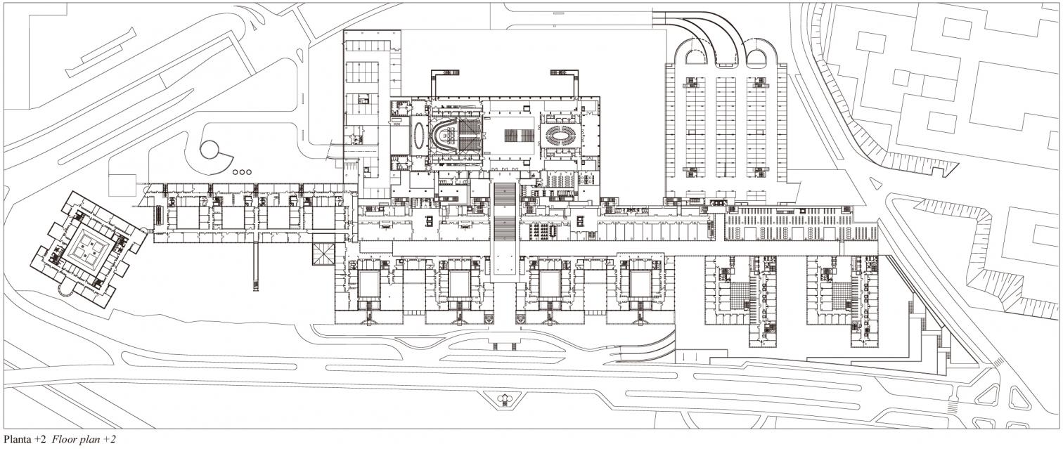
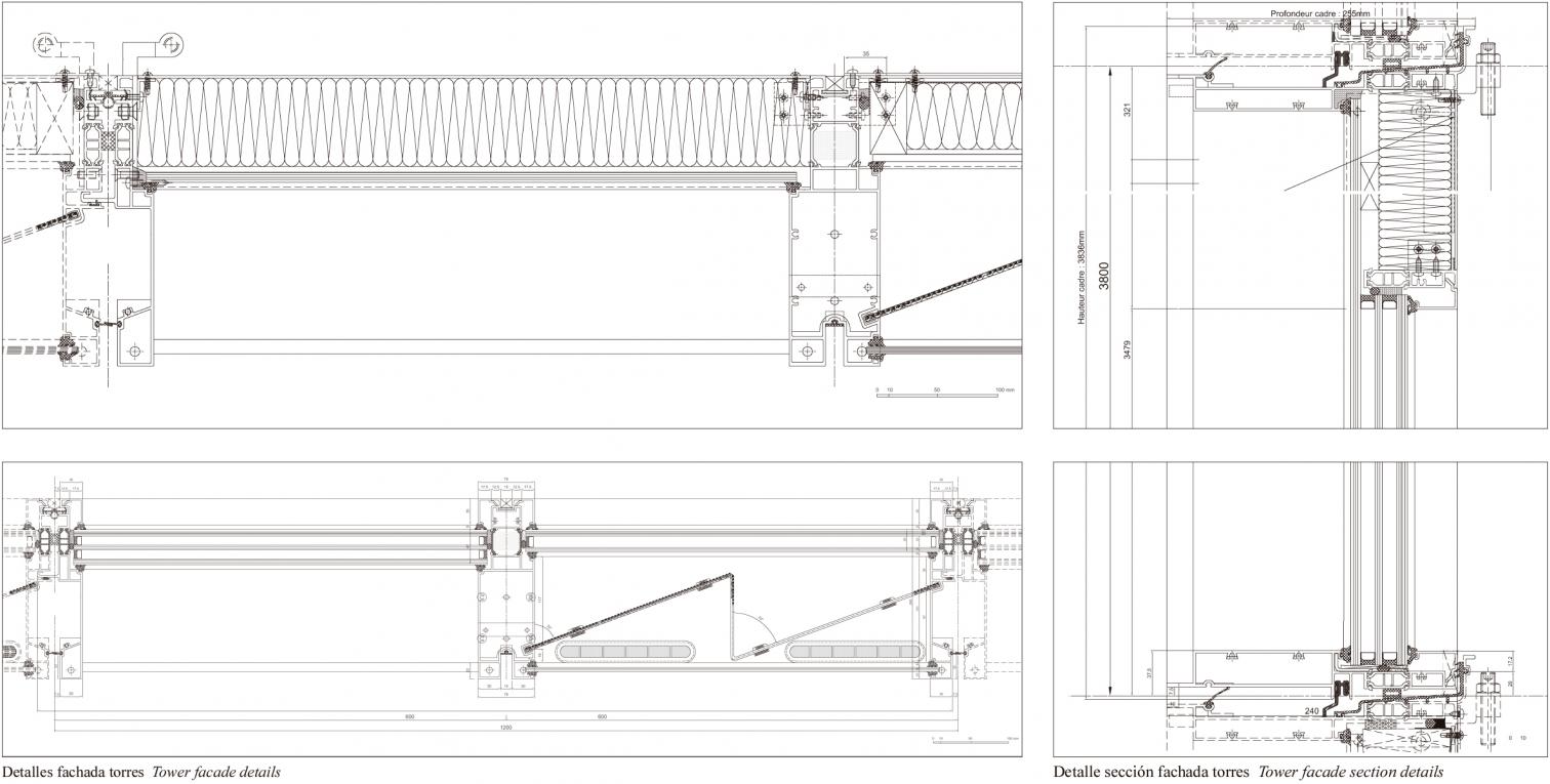
Hacia 1960, la meseta del Kirschberg era prácticamente un desierto, separado de la ciudad vieja de Luxemburgo por el valle de L’Alzette. Como un gran claro en el corazón del bosque de Grünewald, su imagen venía marcada por la extensión regular de los campos cultivados, tan sólo interrumpida por los linderos que se dirigían al casco urbano. Hoy, la meseta se ha convertido en un gran complejo edificado. Es en este lugar donde la ciudad se ha expandido con proyectos como, entre otros, un museo, un gran auditorio y una cámara de comercio e industria. También es ésta la localización de algunas importantes instituciones europeas, en especial tras las sucesivas ampliaciones de la Unión. Dominique Perrault, encargado de la renovación del Tribunal de Justicia de las Comunidades Europeas, es uno de los prestigiosos arquitectos que han intervenido en este emplazamiento. La tarea consistía en unificar y ampliar un conjunto de tres edificios preexistentes, que datan de los años 1973, 1988 y 1992. El recinto de siete hectáreas, rodeado por importantes vías de tráfico rodado, constituye un conjunto dispar y disperso, atento a escenarios diversos y con estilos arquitectónicos francamente diferentes, casi opuestos. Además de dar coherencia y de ampliar los edificios que conforman el Tribunal, el objetivo fundamental era reafirmar el prestigio de la institución; para ello, se concentró la atención en el núcleo central original, desarrollando el programa a su alrededor mediante un anillo que flota sobre el terreno. En el edificio principal las salas de audiencia se articulan en torno a una escalera monumental. Al norte de aquella se extiende un espacioso patio delantero, creando un acceso para vehículos y peatones a través del porche que antecede a las salas. Esta secuencia de espacios públicos queda así al abrigo de la intemperie, pero resulta permeable a las vistas, que se escapan al exterior, hacia la ciudad y los bosques. Finalmente, se han realizado dos grandes torres idénticas para albergar las oficinas de los miles de empleados responsables del funcionamiento del complejo judicial. La intervención no es sólo una adición —un cuarto elemento que se suma a los tres preexistentes— sino una ‘inyección’ que defiende conectar frente a yuxtaponer, unir frente a densificar. La imagen unitaria del proyecto queda reforzada por el uso de malla de aluminio anodizado, entre dorado y bronce, que actúa como un filtro solar en las dos torres, y como largos ‘faldones’ escenográficos en los juzgados, donde caen desde la parte superior de la gran sala para formar una espectacular corona.
客服
消息
收藏
下载
最近





























