查看完整案例

收藏

下载

翻译
Tipología:Ayuntamiento / Gubernamental Sede administrativa Institucional Rehabilitación
Fecha:2004
Ciudad:Cádiz Jerez de la Frontera (Cádiz)
País:España
Fotógrafo:Duccio Malagamba
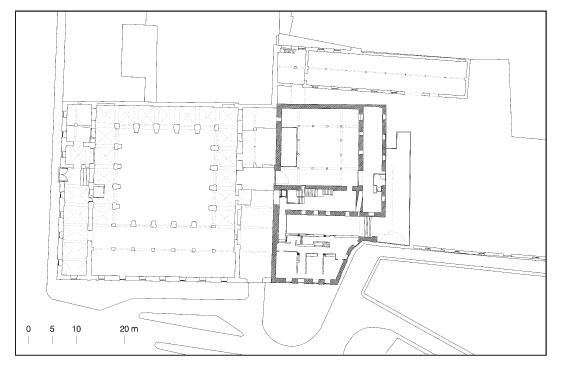
En el siglo XVII la orden de los agustinos ocupó una manzana extramuros del barrio de San Miguel, que hasta ese momento había albergado el hospital de Nuestra Señora de Santa María. Este cambio de uso sanitario por otro religioso tuvo su réplica a principios del siglo xix, cuando el convento sufrió la ocupación de las tropas francesas, dando inicio a un largo periodo militar que se prolongó hasta finales del siglo xx. Esta utilización afectó físicamente al conjunto edificado, que sin abandonar el trazado inicial del convento, se vio atrapado en una etapa de fuerte obsolescencia. El encargo de rehabilitación del antiguo convento comprende dos fases: una primera, que ha de alojar la oficina técnica y de atención al público de la Gerencia de Urbanismo, se efectúa en los restos del Patio de los Novicios, su claustro y su hermosa arcada, y en un volumen militar del siglo XIX, residencia del capitán, que despliega su fachada frente al Alcázar; una segunda, todavía por comenzar, se centrará en el claustro principal del convento, con el fin de dar cabida al resto de las dependencias de gestión y planeamiento municipales, de manera que el conjunto del área de urbanismo local tenga su sede en un mismo edificio.
La primera fase, recientemente inaugurada, utiliza el claustro de los Novicios como un contenedor de luz natural: ésta queda confinada en un espacio único, alto y dilatado en sus extremos, en el que los rayos a lo largo del día marcan un movimiento similar al gnomon de un reloj de sol. Sobre este espacio se desarrollan en dos plantas las oficinas técnicas, con un diseño de instalaciones que permite el cambio de distribución y uso a lo largo del tiempo; la primera se ilumina por medio de los huecos del muro perimetral, único resto del convento a este nivel, mientras la segunda goza de una iluminación cenital casi en su totalidad, a excepción de dos amplios miradores orientados a las sierras del sur de Jerez y al Alcázar. La planta baja aloja una sala de exposiciones y el volumen lateral contiene en dos alturas más oficinas municipales.
El sistema estructural utiliza muros y forjados de hormigón armado reforzados puntualmente por perfiles de acero inoxidable. El mármol y la madera revisten las escaleras, embebidas en cajas de hormigón visto, acero y vidrio, y las paredes se acaban con estuco blanco. Una escultura anónima de San Agustín, descubierta en el jardín durante la reforma y fechada en el siglo xvii, ha sido restaurada y colocada en uno de los conductos luminosos del claustro, punto de cruce entre las nuevas oficinas municipales y el antiguo Patio de Novicios.
客服
消息
收藏
下载
最近













