查看完整案例


收藏

下载
1924年,在科隆市长的提议下,建造了这座大都会。莱茵厅坐落于莱茵河北岸,与对岸的科隆大教堂遥相对望。几十年来,这座建筑被科隆会展组织长期租用为会展中心,2005年回归给科隆市政府。并由HPP完成了一系列的改造设计,至今由RTL 电视台和HDI保险公司共同使用。
为了要保护这座文物建筑的立面不受破坏,同时要满足该项目的两个租用公司的需求,在原建筑的后面建造了一个现代化的行政楼和广播中心的综合体建筑 。现代派的红砖墙被充分保留。
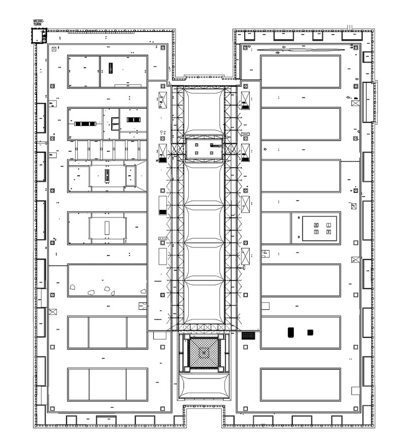
原展厅被拆除,取而代之的是4层的梳形结构灵活办公区域,并分为东西两侧,分别由两家公司使用。中间200米的过道大厅,成为连接南北的城市公共空间,也可用于举行大型的城市活动。屋顶采用了菱形的高分子聚合膜,形成气囊,即满足了保温和采光,也保证了大跨度的空间结构。
古老的砖墙立面以镀锌的钢结构支撑加固,新的立面采用与层同高,轻质金属包边的玻璃预制件,窗户为平开窗, 可单独开启通风。新的大堂外立面采用了拉升钢网作为连接的元素。
新技术与老风格在这里结合,为文物建筑的保留和改造做了最有力的诠释。
人们沉浸在古老红色砖墙所带来的古朴和温暖的气氛中。
这栋在莱茵河畔屹立将近一个世纪的建筑,将继续以它的历史形象,见证下一个时代。
项目名称:莱茵厅 使用者:RTL电视台, Talanx / 位置:科隆 总建筑面积:163.000 m² / 工作位数量:4.000个
竣工:2009年
客服
消息
收藏
下载
最近

























