查看完整案例


收藏

下载
在2008年的时候,a2o建筑事务所和kempe thrill工作室合作,入围了在比利时安特卫普的“het havenhuis”改造与扩建的方案竞赛。
该竞赛最终获选的为扎哈的“port house ”方案,在前面我们已经报道了扎哈方案的最新进展,点击下方链接查看>>
方案意图加强城市以及港口的独特气质,设计师认为:“安特卫普正在打造一种融合了过去与现在的城市未来,将创造出独特的城市身份。‘havenhuis’曾被赋予国际地位,它植根于城市历史之中,同时展望于未来。”如此一来,现存建筑的改造不仅是要成为建筑符号的延续,同时还要和周边的古建筑环境协调统一,与其形成对话。
↑扩建方案保留了原有的建筑,同时传达出在城市尺度中的一种新的美感 方案现状是对原先的中世纪后期的“中世纪商会之屋”的形态进行复制,使用承重的砌体和混凝土进行混合施工。这栋古建筑早已不再是商会的交易场所,而是被改成了一个消防站。房屋的现状和功能组织透明而又清晰,房间高大而宽敞,立面的开窗让室内日光充足。建筑原始的平面作为进入扩建建筑的起始点,利用古建筑原本的特质,来体现建筑的气质,强化这里的历史感和区位感。
↑看向老港口 扩建部分的形状是对原有建筑的反射,是一种有意而为的艺术行为,这不是噱头,而是一种超现实主义,巧妙的将比利时的天性与历史联系起来。原有建筑所有的房间都被推到了建筑的边界,让出了内部的庭院空间。而扩建的新体量将延续这一概念,结构上通过使用干石膏包裹的轻钢结构来完成。钢结构穿过了屋顶,是一个历史演变的过渡元素。方案展示了在尊重历史文脉的情况下的一种垂直扩展的可能性。强化了建筑作为国际港口安特卫普的符号象征意义。这个方案将丰富城市的天际线,在建筑上体现出新旧港口的对话。
↑建筑体量是原有建筑以天际线为轴的镜像
↑入围竞赛的建筑模型
↑设计草图
↑概念:扩建部分巧妙的与原有的建筑约束条件对应
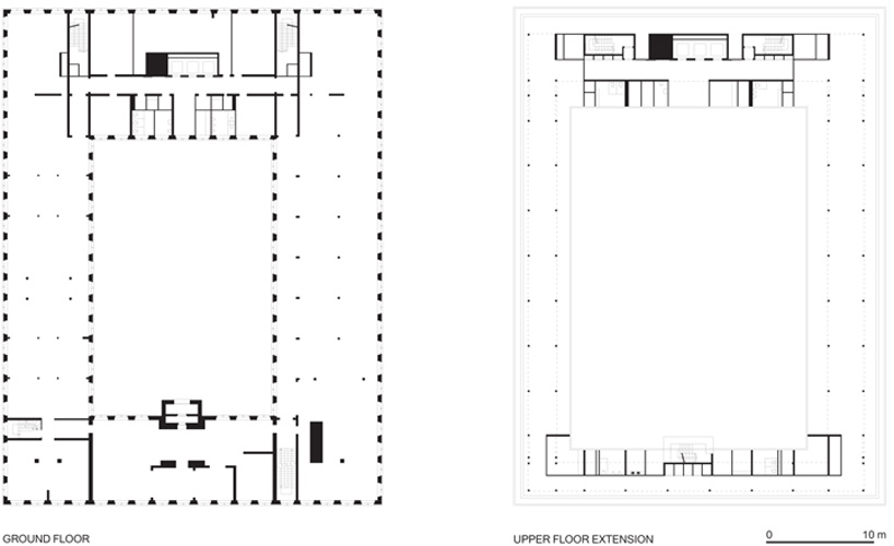
↑首层平面以及上层的扩建平面
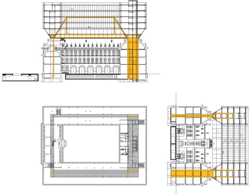
↑上方建筑体量的结构概念
↑建筑横剖面图
↑总平面图
翻译:##-云飞
···
客服
消息
收藏
下载
最近













