查看完整案例


收藏

下载
圣菲德波哥大医院的扩建工程,不仅起到了连接城市区域的作用,还与现有建筑达到了完美融合,并考虑到了医院未来的空间需求。
位于第九大道与第七大道之间,医院通过广场与廊道的连接,为城市增添了公共空间。扩建的这一区域,拥有绿地,商场,咖啡店,和一个多功能礼堂,增添了该区域的人流量。
该项目来源于2012年一个基金会的竞赛作品。
砖的使用成为该医院的一个亮点,这也是当初竞赛的要求之一。我们希望砖的运用能够作为一个创新的形式出现,同时也不违背医院的设计规范。
扩建部分外立面砖的使用并不像传统形式那样层层砌筑,而是使用金属零件和钢筋作为砖的支撑构件。
这种形式给予了外立面别样的纹理图案,也能够使我们根据需要对自然光线进行调节,更多的自然光线也会帮助病人尽快地康复。
新建筑不仅仅是对医院功能的重新划分,也与现存建筑形成了密切连接,ICU尽可能靠近手术室的操作中心。
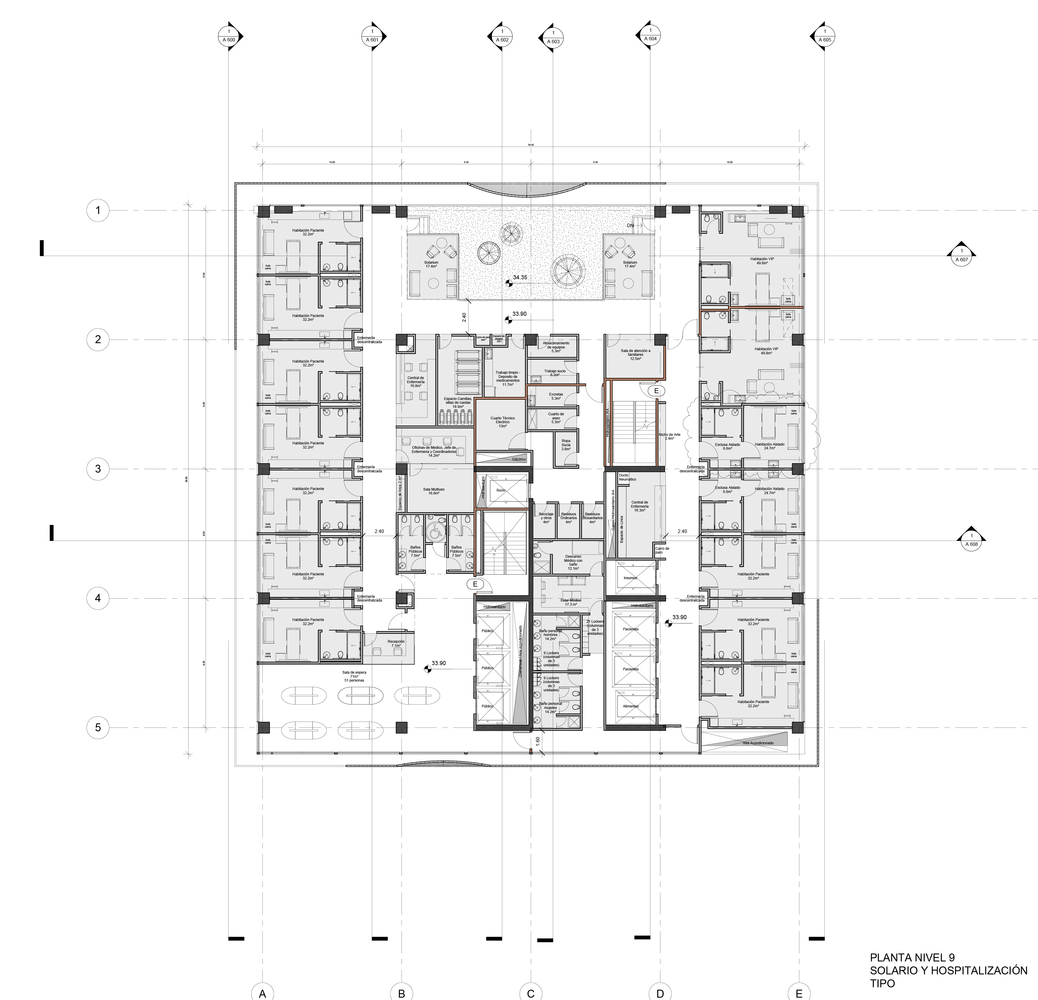
建筑有十二层,一层通向大厅,面向第九大道和现有建筑开放。二层是基础,支撑着十层高的医院,拥有儿童和成人急救室及其他科室,如心脏科、妇科和精神科。在七楼有一个礼堂和休息室。在九楼,有一个日光浴室。
solarium试图恢复花园医院的概念,希望病人与城市发生更多联系,以此来减弱医院的封闭感和病人产生的压力。
日光浴室允许病人在病房里与自然互动,病人也可以直接到达院子。在过去的6个月里,光照和自然条件都实现了这种预想,统计数据也显示病人更快地获得了康复,感染和并发症也相应减少。
建筑设计:El Equipo de Mazzanti
建筑位置:哥伦比亚 波哥大
总建筑师:Giancarlo Mazzanti
技术设计师:Clara Vila
技术图纸:Julián Otalora
建筑面积:32000㎡
项目年份:2016
摄影:Alejandro Arango, Andrés Valbuena, Fundación Santa fe
客服
消息
收藏
下载
最近













































