查看完整案例


收藏

下载
这座“Skow 住宅”先前是由生活在沙漠中的Harold和Helena Skow夫妇先行搭建了一部分,由于无法完成一套标准的家庭配置,所以他们转而求助于科罗拉多大学丹佛分校的学生和DesignBuildBLUFF设计事务所来完成他们这栋单层的住所。当丹佛分校的学生们第一次造访的时候“skow 住宅”的基础已经建成了。
因为住宅在当初开始建造时是以这对夫妇的名字来命名的,所以现在是否以合作伙伴来重新命名也尚在讨论之中。
通过注意到客户戴着的大宽檐帽可以遮挡烈日,设计团队决定设计一种类似墨西哥宽边帽的结构,设计了一种桁架屋顶结构并使用当地的材料。一大块挑出的屋顶结构覆盖了房屋的西面和南面,在一年的大部分时间中提供了户外的起居活动空间。在炎热的夏日午后,东部入口门廊提供了荫蔽的户外活动空间。
住宅内部分为两块独立部分:私人空间和公共部分。在住宅较安静的地方设置了卧室,四周使用了保温隔热性能较好的稻草砖建造,并有着天然灰泥墙带来的舒适感受。房屋开敞的西南面布置有起居室、厨房和餐厅,此处可以享受到一览无余的壮阔自然景观。到了冬季,可以通过两堵定向的太阳能玻璃隔墙获得直接的太阳光照。
↑房屋开敞的西南面布置有起居室、厨房和餐厅
↑室内享有一览无余的壮阔自然景观
↑天然灰泥墙带来的舒适感受
↑到了冬季,可以通过两堵定向的太阳能玻璃隔墙获得直接的太阳光照。
↑原来的建筑结构
↑木桁架的施工过程
↑桁架被固定在适当的位置上
↑稻草具有较好的保温隔热性能
↑施工现场
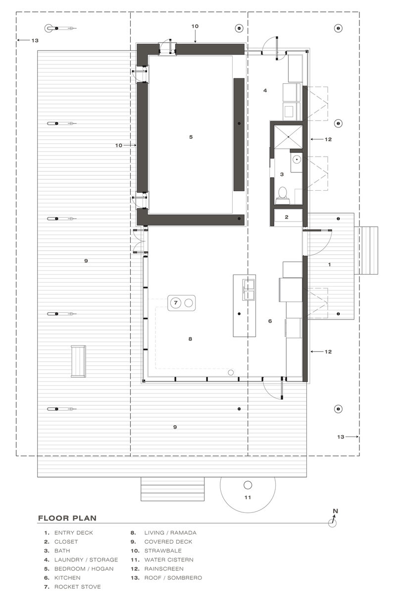
↑平面图
↑横向剖面图
↑北立面图
↑东立面图
↑南立面图
↑西立面图
↑日照阴影分析
↑屋面施工
↑概念图
↑项目中的关键组成部分
学生:Ellen Adams, Brett Blackmon, Lura Blumfield , Jay Burkhalter, Glen Camuso, Jacob Ebling, William Koning, William Murray, Rebecca Sockwell, JD Signom 科罗拉多大学丹佛分校:Rick Sommerfeld, Colorado building workshop主管 DesignBuildBluff成员:Hank Louis, Andrew Foster, Craig Harren 结构工程师:Christopher O’hara – principal studio NYL structural engineers
···*
客服
消息
收藏
下载
最近
























