查看完整案例


收藏

下载
法国建筑事务所atelier d’architecture ramdam近日完成了位于圣丹尼的一座历史建筑的翻新和扩建工作,为社交生活提供了新的场所。该建筑名为“au bon coin”,其原本的砖结构房屋始建于20世纪初,并在日前的维修改造项目中重新得到修善。一处狭长的木质新建体块矗立在原本的主体建筑之上,贯穿整栋建筑,其东侧面向街道,西侧面向运河。
↑木质扩建体块矗立于历史建筑主体之上 在‘au bon coin’重修过程中使用的经济和生态的材料都经过了深思熟虑的。从现存结构拆下来的材料得到了重新利用,同时新建体块使用了木质材料,降低了建筑的热量损耗。
↑贯穿整栋建筑的新建狭长体块提供了面向街道和运河的视野
↑已有建筑上新开设的窗户提供了面向运河的视野
↑公寓设置了从地板到天花板的大落地窗,窗户的上半部分可以开启,满足建筑被动通风的需要。
↑新建部分的居住单元
↑新建部分室内的三处不同方向的窗
↑一层木质胶合板装饰的入口部分
↑概念图表
↑一层平面图
↑三层平面图
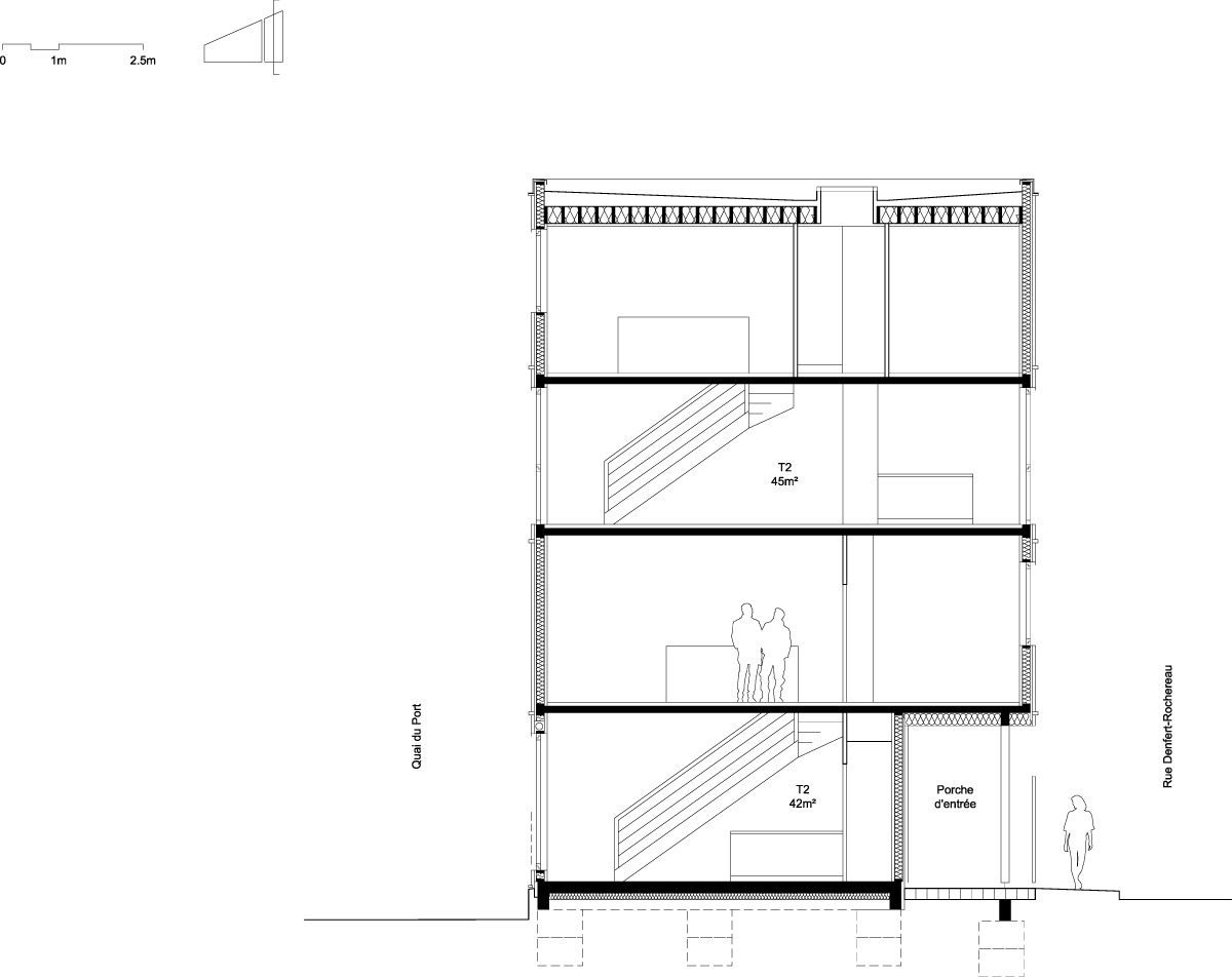
↑纵向剖面图
↑扩建部分横向剖面图
↑东立面图
↑西立面图
↑施工节点 翻译:##-杨海洲
···
客服
消息
收藏
下载
最近





















