知末
知末
创作上传
VIP
收藏下载
登录 | 注册有礼
知末案例   /   家装空间   /   平层

遗弃木材打造多功能小黑木屋

2023/03/23 18:28:25
查看完整案例
微信扫一扫
收藏
下载
遗弃木材打造多功能小黑木屋-0
遗弃木材打造多功能小黑木屋-1
遗弃木材打造多功能小黑木屋-2
遗弃木材打造多功能小黑木屋-3
“木条堆叠的顺序根据房间里书籍的不同搁置位置而有变化。”建筑师说道。
遗弃木材打造多功能小黑木屋-5
遗弃木材打造多功能小黑木屋-6
遗弃木材打造多功能小黑木屋-7
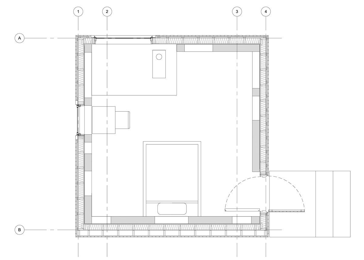
平面图
遗弃木材打造多功能小黑木屋-9
内部轴测图
南京喵熊网络科技有限公司 苏ICP备18050492号-4知末 © 2018—2020 . All photos and trademark graphics are copyrighted by their owners.增值电信业务经营许可证(ICP)苏B2-20201444苏公网安备 32011302321234号
客服
消息
收藏
下载
最近