查看完整案例


收藏

下载
在美国科罗拉多州的莱克伍德,由科罗拉多建筑工作室设计的一个城市农业教室竣工了。这个建筑项目是为科罗拉多大学丹佛分校即将进入最后一年学业的研究生量身打造的。这个靠近当地新建轻轨的户外学习设施意在传授给当地居民有关城市农业的知识。
设计者为了应对损坏的潜在威胁,采用了一种钢筋网格结构,同时这种结构也为该项目带来了一种动态的透明感。而空间的朝向则是在兼顾教室内部人员隐私性的同时,又能让位于办公室里的教员直观的看到教室里的状况。
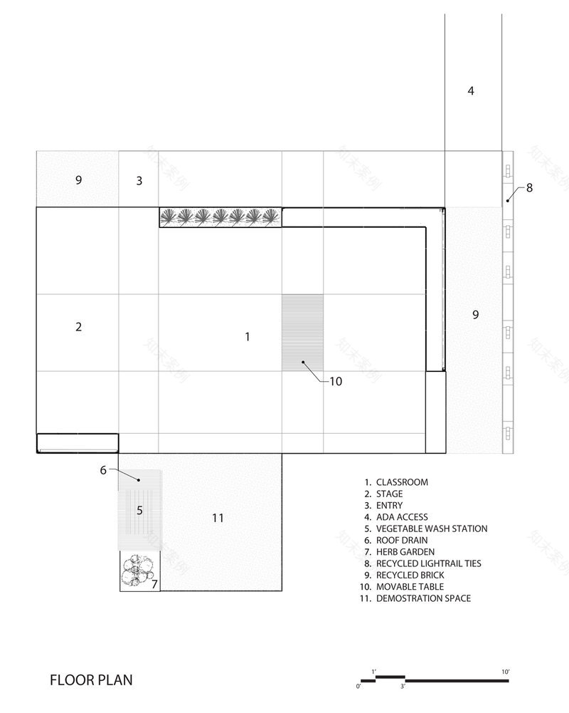
为了减少结构柱在设计中的使用,建筑的大部分负荷将由钢筋网状表面承载。 与此同时,垂直的百叶窗似设计意味着当人们靠近时,结构会渐渐显得不透明。内部的空间被与蔬菜清洗站相连的钢制水槽和几株植物分为了三个部分。这几株植物将入口清晰地勾勒了出来。一面可移动的桌子和天窗界定了在入口正东方向的学习区域,而教室平台的西侧则是给未来的种植床和露天座位预留着的位置。
↑农业教室的后面
↑空间的朝向能让位于办公室里的教员直观的看到教室里的状况。
↑垂直的百叶窗结构当你靠近时会渐渐显得不透明
↑一面可移动的桌子和天窗界定了在入口正东方向的学习区域
↑大部分负荷将由钢筋网状表面承载,减少了结构柱的使用
↑平台的西侧则是给未来的种植床和露天座位预留着的位置。
↑施工现场
↑钢筋网格结构被固定在适当的位置
↑细致的准备工作
↑平面图
↑北立面图
↑东立面图
↑南立面图
↑西立面图 图片由科罗拉多建筑工作室提供 翻译:##-李昊翰 校订:##-冠轸
客服
消息
收藏
下载
最近



















