查看完整案例


收藏

下载
该项目坐落于慕尼黑北边的一个工业区,这座建筑是一家纺织印花和刺绣公司”Textilmacher”的主要生产与办公空间。它的标志性特点是其几何折叠的立面,通过立面生动丰富的光影变化使得简单的体量产生了变形效果。
建筑的黑灰色混凝土亚光表皮很好的融入了周边环境。立面随着不同时节、不同时段、天气及光线的变化,呈现出不同的特点。
综合考虑了预加工、短工期和经济效益三个因素之后,设计师选择了一种中空的混凝土立面。这样总共只需要制作4种不同的模板。
尺寸6.6×3.9m,带有外表皮,隔热层以及结构板的模块先在工厂定制,再一个一个的送到施工现场。装配的序列经过了精心的计算,使得这些模块像智力游戏一样互相结合起来。
与建筑让人印象深刻的立面相比,建筑内部设计把更多的空间留给了生产过程及陈列室的产品。少而精的使用高级材料,是内部设计的主要理念。
抛光的混凝土地面,落叶松木的窗户边框,以及白色镀层钢板是主要的几种材料。无柱的房间带来了高度的灵活性以及面对工作流程中的改动的适应性。
公司生产部门位于一层和二层,同时办公室和陈列室占据了建筑第三层。储藏室和机房被安放在地下室。为了尽可能的减少碳排放,建筑的耗散热能被热交换器回收了起来,并通过加热地面被建筑再次利用。
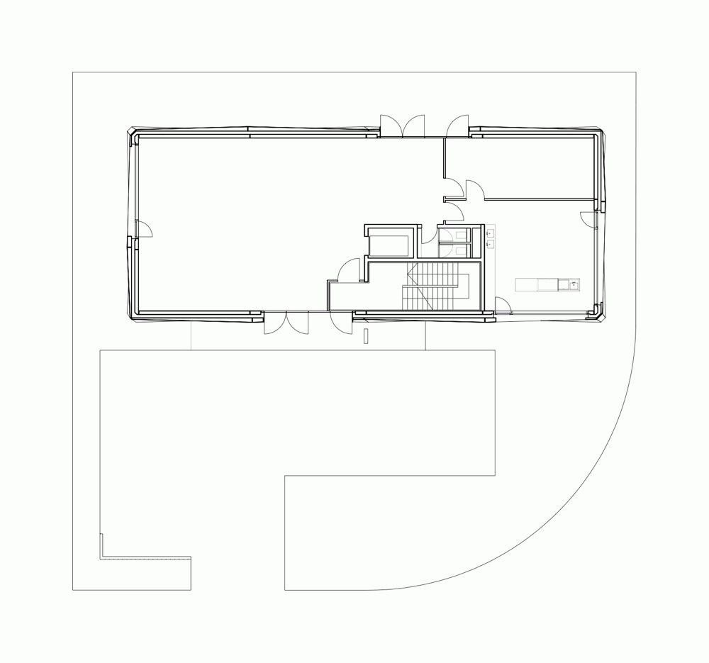
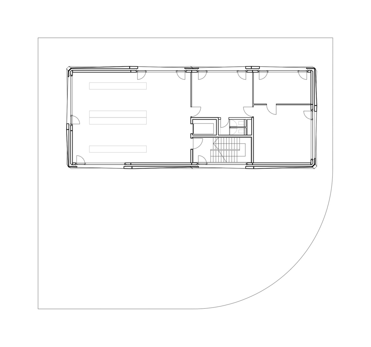
↑平面图
↑平面图
↑平面图
↑剖面图
↑立面图
建筑事务所:tillicharchitektur 地点:德国,慕尼黑 建筑负责人:Kurt Tillich 场地面积:840平方米 建筑总面积:1135.0平方米 年份:2013年 摄影:Michael Compensis 来源:
翻译:##-罗灏
客服
消息
收藏
下载
最近

















