查看完整案例


收藏

下载
在犹他州的犹他州的纳瓦霍地区,来自科罗拉多大学丹佛校区的学生和DesignBuildBLUFF设计事务所联手,为当地的一对夫妇完成了一座单层住宅建筑。住宅创造了较大的阴影空间,使得家庭聚会成为可能(当地为沙漠环境)。
该项目的预算仅有25000美元,这个独栋的建筑被用雪松和回收的旧铝板制成的雨幕系统(Rainscreen )覆盖着,与周边景观融为一体。建筑的外立面由通透的雪松栏栅结构进行围合,并形成阴影,使室内免受沙漠地区毒辣光线的炙烤。同时,墙壁和屋顶结构的隔热设计比传统的隔热标准更高。
↑雨幕为住宅阻挡阳光和风,并为室内提供经过过滤的光线
↑格栅式的外包层取得了斑驳的阴影效果,并使建筑看起来更通透 室内的两个私人区域:卧室与浴室,均采用雪松木饰面,门与饰面相互融合,进一步强调其私密性。走廊尽头的桌子直接固定于墙壁上。该做法将外立面的雪松木延伸至室内,在起到阻挡夏日高温的同时,还提供了一个新的工作界面,达到了一举两得的效果。
↑门被设计的更加隐蔽,以进一步强调私密性 住宅的公共空间都是开放式的平面布局,起居室直接朝向室外的露台,从这可以直接欣赏到来自蓝山(Blue mountains)的景色。周边雨幕系统为我们阻挡阳光和热浪,并提供经过过滤的光线和生动的阴影效果。
↑Hozho住宅建在犹他州的沙漠中
↑前门
↑入口处门厅
↑厨房
↑厨房
↑客厅
↑办公室
↑施工现场
↑立面制作
↑外墙搭建
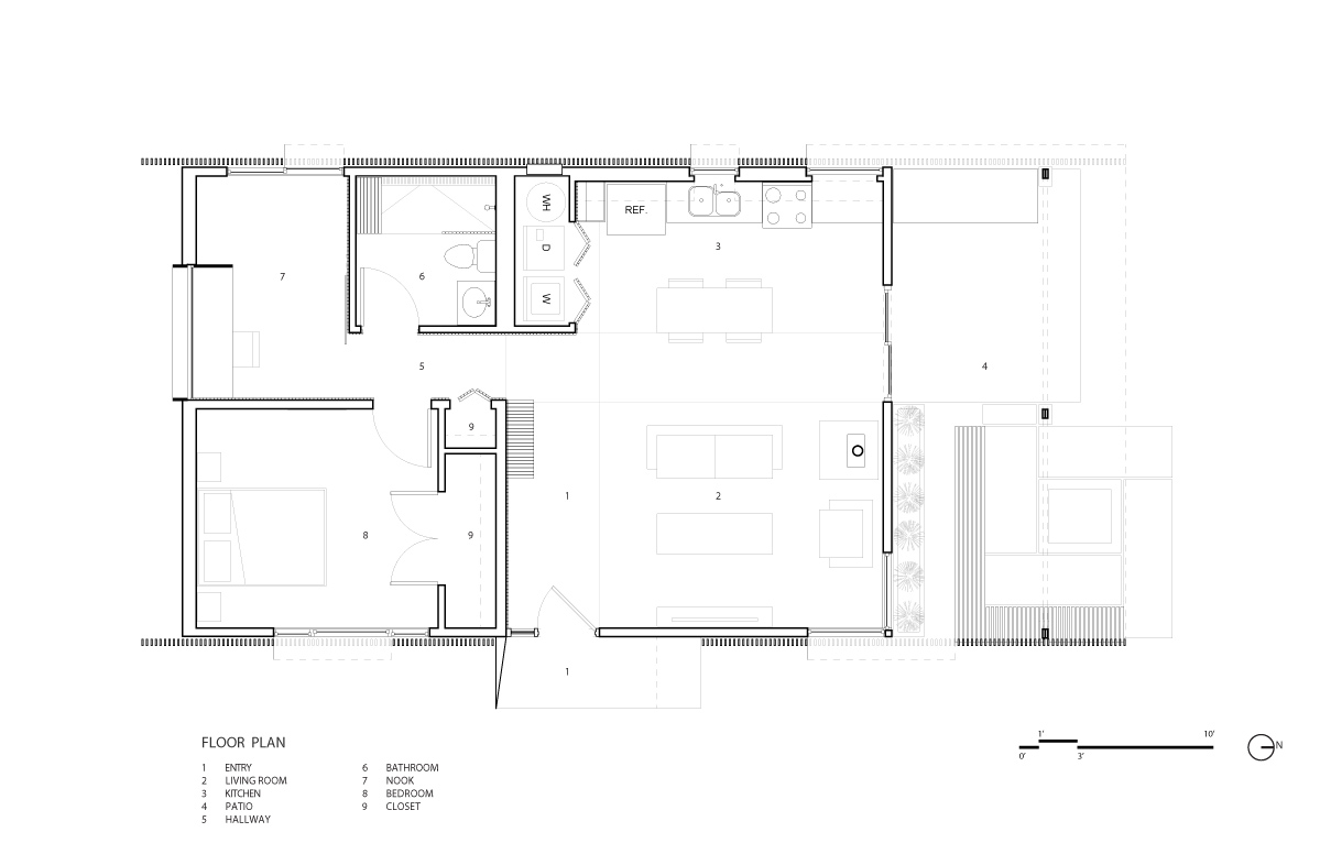
↑平面图
↑南北朝向剖面图
↑东立面图
↑南立面图
↑西立面图
↑项目设计
项目名称:Hozho住宅 建筑设计:科罗拉多大学丹佛校区的学生,DesignBuildBLUFF设计事务所 位置:美国犹他州,纳瓦霍部落 结构工程师:Andy Paddock 带队老师:Rick Sommerfeld(Colorado Building Workshop主管),Jose Galarza(DesignBuildBLUFF主管),Atsushi Yamamoto, Hiroko Yamamoto
学生团队:Shawn Adams, Erica Alfaro, Patrick Beseda, Gregory Bbehlen, Anastasia Chmel, Megan Garrett, Lacy Graham, Patricia Gut, Amy Keil, Anna Huey, Catalina Pedraza, Henry Rahn, Foster Ramsey, Scott Rank, Joe Stevenson, Dana Trill, Iassen Vladimirov, Megan Voiles, Ronald Willison, Kristin Zuro
照明顾问:MH Lighting公司 项目面积:813平方英尺 摄影:Foster Ramsey, Rick Sommerfeld 翻译:##-雪狼
校订:##-冠轸
···*
客服
消息
收藏
下载
最近
























