查看完整案例


收藏

下载
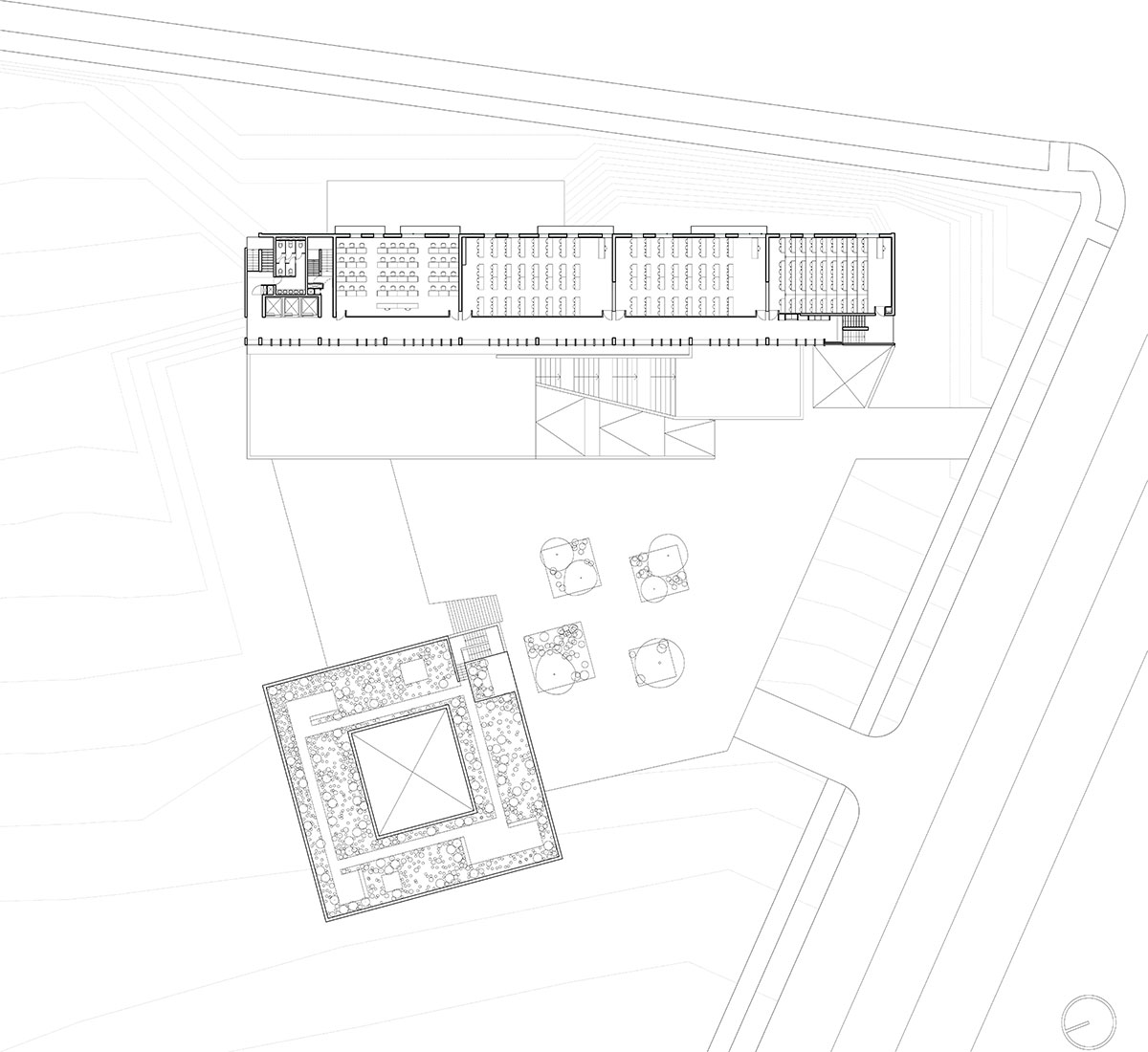
智利的建筑师rodrido duque motta, gabriela manzi 和rafael hevia完成了乌埃楚拉巴 (Huechuraba)学院总体规划的初级阶段,该项目依附于圣迭戈波塔利斯大学。一期建筑是为经济学院设计的,并且建立的四个关键要素为建筑结构奠定了基础:地基、BAR结构、卫星结构和公园。
↑校园全景图 该方案旨在其他学术意向方面,设计一个持久性和专业性的新形象。同时将建筑结构与周围设施相结合,反映了周围的地形。建筑外墙生长的植物以及屋顶花园给建筑内部提供了阴凉,减少了夏天阳光的直射。透过外墙的小开口给建筑内部带来了充足的阳光,并且降低了热量的吸收。同时中庭可以带来间接采光,形成对流通风。
该项目以一系列的梯状平台综合体为基础,此平台贯通三个广场,连接了场地内的各个建筑:大学生广场将连接将来建设的建筑,研究生广场直接毗邻公园,入口广场将两座建筑连接起来。这部分区域也包含了大部分的公共设施,例如自助餐厅、图书馆和礼堂。细长的“BAR”结构保持建筑的中立性,背景与人群形成鲜明的对比。新增加的建筑将保持与之前同样的美感和比例,改变他们的方位,遵循自然的地形。有规律的网格布局为办公室和教室提供了模块化的灵活性。外部开放的空中走廊可以俯瞰低处的人行道和公园,同时设置一些中庭空间插入连续的教室之间。
↑从邻近的足球场看建筑 并列的八层“BAR”结构体现了更为中性的美感。不拘一格的独特的混凝土建筑矗立在地面上,形成另外一个跟基部相连的天井。中央空隙形成了回行走廊,将所有的研究生课程连通。向内延伸的小方窗和突出的矩形部分有助于形成与众不同的设计语言。随着总体规划的进一步发展,这些一系列的结构都将点缀风景,每一种结构都将定义不同的学院。
↑沿街透视——大的方形空间增加了结构立面的辨识度 最后一个要素是公园。拥有绿色植被的公园覆盖着房屋,从邻近的城市分离。休闲场地让人的身心从建筑环境中脱离,给学术课程增加其他的层次。
↑细节图
↑窗户细节
↑中间的天井和楼梯入口
↑该结构仅通过角落里的大体量接触地面,比如有棱角的支柱和楼梯
↑中间的天井和建筑内墙
↑被照亮的结构
↑负一层平面图
↑二层平面图
↑5层平面图
↑8层平面图
↑剖面图
↑轴测图
↑左上角:连续的建筑;右上角:个体结构;左下角:外部人行道;右下角:公园
↑总体规划模型
建筑设计: rafael hevia, rodrigo duque motta, gabriela manzi 位置: 智利,圣地亚哥首都,乌埃楚拉巴 ,圣克拉拉 合作伙伴: catalina ventura 外部合作伙伴: martin holmes 项目面积: 16,644 sqm 项目时间: 2013 摄影: fg+sg – fernando guerra, sergio guerra 项目管理: unidad servicios externos udp 结构设计: luis soler p. & asociados 景观设计: francisca saelzer 可持续发展设计顾问: edificioverde s.a. 照明设计: monica pérez & asociados 建造: bravo e izquierdo 技术检验: inspecta s.a.
客服
消息
收藏
下载
最近

























