知末
知末
创作上传
VIP
收藏下载
登录 | 注册有礼

木百叶外立面赋予办公楼丰富的表情

2023/03/24 22:17:03
查看完整案例
微信扫一扫
收藏
下载
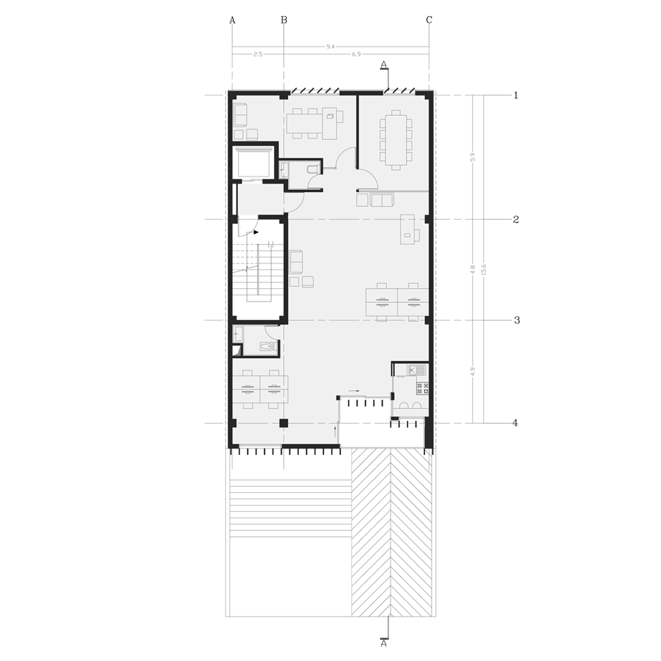
木百叶外立面赋予办公楼丰富的表情-0
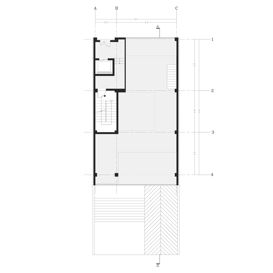
木百叶外立面赋予办公楼丰富的表情-1
木百叶外立面赋予办公楼丰富的表情-2
木百叶外立面赋予办公楼丰富的表情-3
木百叶外立面赋予办公楼丰富的表情-4
木百叶外立面赋予办公楼丰富的表情-5
木百叶外立面赋予办公楼丰富的表情-6
木百叶外立面赋予办公楼丰富的表情-7
木百叶外立面赋予办公楼丰富的表情-8
木百叶外立面赋予办公楼丰富的表情-9
木百叶外立面赋予办公楼丰富的表情-10
木百叶外立面赋予办公楼丰富的表情-11
木百叶外立面赋予办公楼丰富的表情-12
木百叶外立面赋予办公楼丰富的表情-13
木百叶外立面赋予办公楼丰富的表情-14
木百叶外立面赋予办公楼丰富的表情-15
南京喵熊网络科技有限公司 苏ICP备18050492号-4知末 © 2018—2020 . All photos and trademark graphics are copyrighted by their owners.增值电信业务经营许可证(ICP)苏B2-20201444苏公网安备 32011302321234号
客服
消息
收藏
下载
最近