查看完整案例


收藏

下载
鸣濑住宅坐落在东京郊区一块倾斜的基地上,低坡大屋顶之下通过由不同的轴线组织内部空间,形成了一个不规则的平面。MDS建筑工作室的设计中,私人房间被安排在平面的四周从而围合出住宅中间的公共区域,而室外的台阶则表现了对地形的呼应。不规则角度的墙壁和倾斜的天花板产生了一种扭曲变异的空间视感,将视线导向开口直至室外。
↑低矮的屋顶整合住宅的居住空间 相对于在戏剧性与不规则的室内空间,这个住宅可以看作是一个山墙-坡屋顶结构整合居住空间的典型住宅设计模式。基地西侧的停车位使住宅的主入口远离街道,东南角的室外露台外设置了一个小花园。
↑从北立面看,这个住宅可以理解为典型的山墙-屋顶模式
↑在住宅的室内,呈发散状的墙壁与倾斜的天花板将空间导向建筑开口直至室外
↑一扇大落地窗面对着住宅东南角的小花园
↑黑色的木制地板与天花与洁白的墙面形成对比
↑左:书桌和书架被整合到一面厚墙中 右:住宅入口
↑左:住宅入口被镶入进立面的凹槽中 右:大的落地窗连接起居室与室外露台
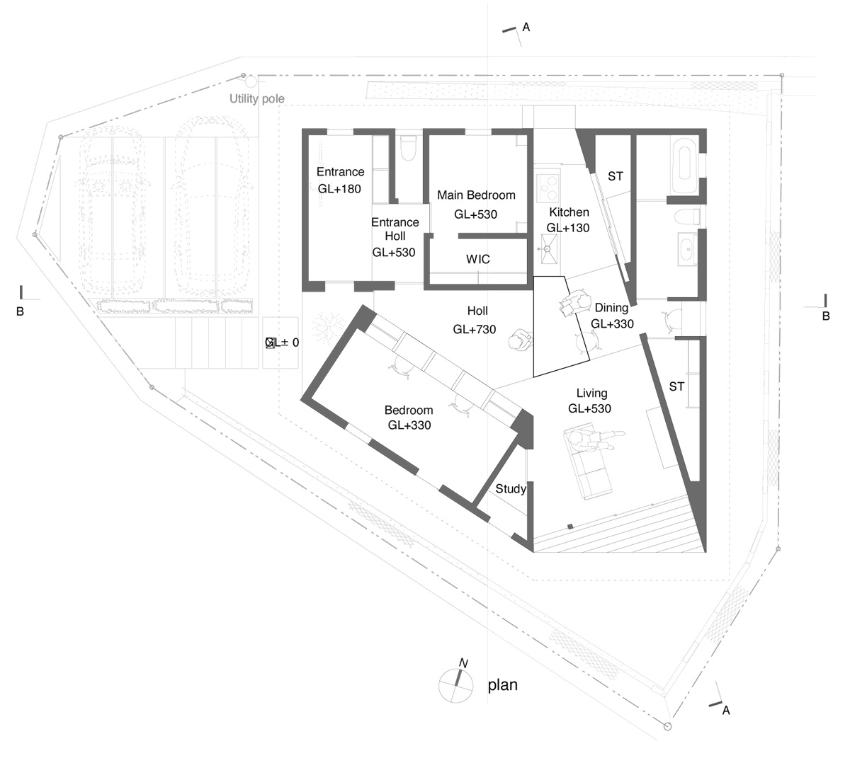
↑平面图
↑A-A剖面图
↑B-B剖面图
↑横向剖面图
项目地点:东京町田 完成日期:2013年 项目性质:居住建筑 建筑结构:木结构 基地面积:299.84 m2 总建筑面积:94.91 m2 建筑师:清利森&夏子村(MDS建筑工作室) 摄影师:雅夫西川
外立面:烧杉(一种特殊的木炭材料,经过特殊工艺炭化处理的柏木,可以防火阻燃) 屋顶:镀锌彩钢板直立缝屋面 地面:橡木地板 墙面:丙烯酸乳胶漆+石膏板 天花板:雪松板+水曲柳材料 翻译:##-吴德龙
···
客服
消息
收藏
下载
最近
















