查看完整案例


收藏

下载
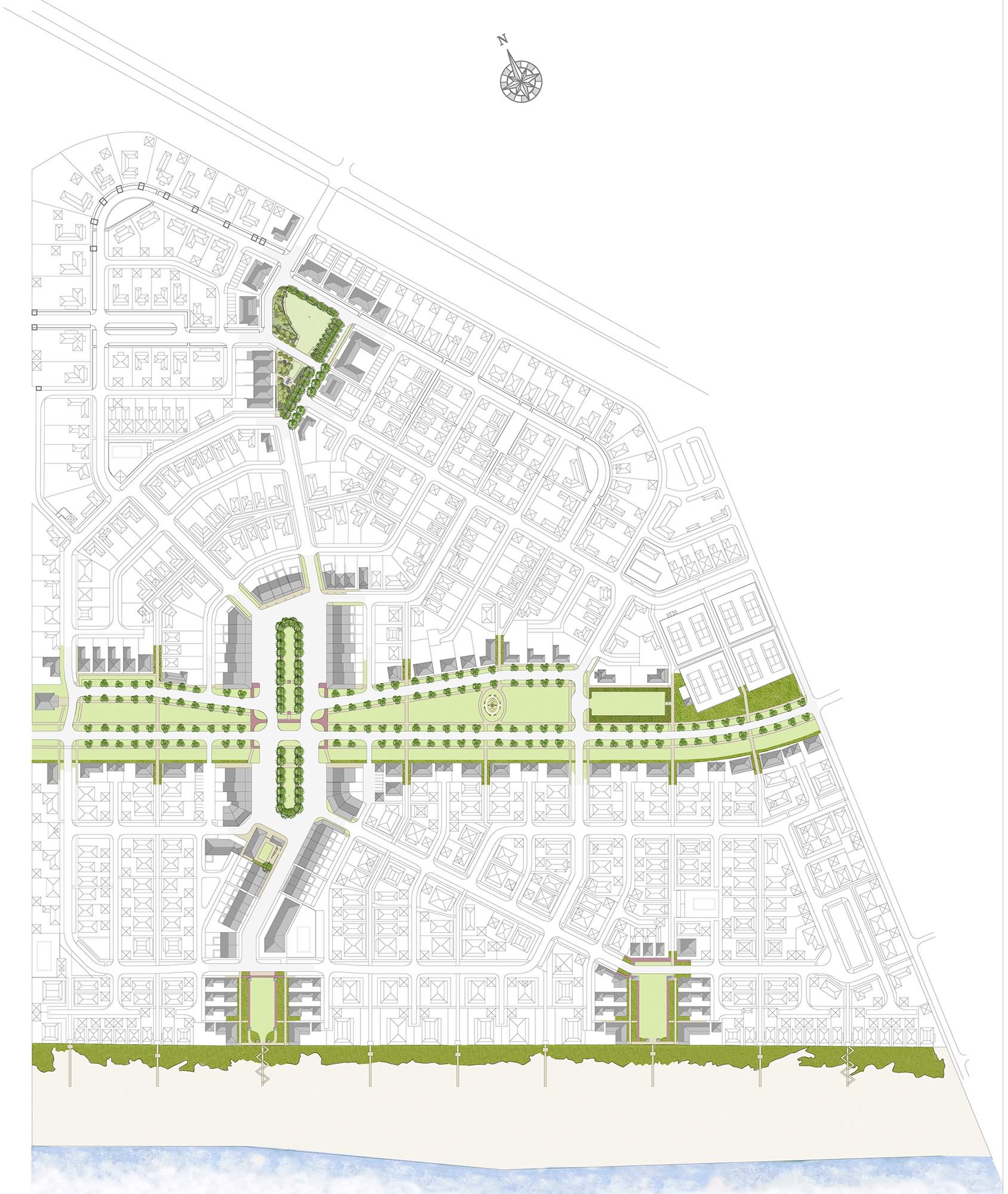
罗斯玛丽海滩是一个占地107英亩的新城市主义社区,位于佛罗里达州的海滨。我们负责设计约七英亩的公共空间,包括城镇广场,三个乡村绿地,一个邻里公园和九个可以进入海滩的沙丘旅行。我们的主要目标是设计一个统一的公共场所,为各种娱乐创造一个独特的公民品格。
所产生的公共空间是简单的,明确定义的体积,赋予与小城市地段形成对比的宽敞感。一致的几何和细节创建一个内聚的序列。传统的建筑花园形式,以及一个简单的灰泥墙壁,砖混和混凝土路径和木制木板路,建立了公共空间和周边住宅之间的关系。除了公园和绿地中的休闲草坪外,我们还以大胆,非常规的方式使用本地植物。这个意想不到的本地种植设计区别了迷迭香海滩,并将该地点与区域景观重新整合。原生植物成为一个元素和象征性的,有助于建立一个独特的社区认同。
Rosemary Beach is a 107-acre New Urbanist community on the waterfront in Florida’s panhandle. We were responsible for the design of approximately seven acres of public space, including the town square, three town greens, a neighborhood park, and nine dune walkovers that provide access to the beach. Our primary goal was to design a unified sequence of public places for various kinds of recreation while creating a distinctive civic character.
The resulting public spaces are simple, clearly defined volumes that impart a sense of spaciousness in contrast to the small urban lots. Consistent geometry and detailing create a cohesive sequence. Traditional architectonic garden forms, along with a simple palette of stucco walls, brick and concrete paths, and wooden boardwalks establish a relationship between public spaces and the surrounding residences. With the exception of recreational lawns in the park and greens, we used native plants exclusively and in bold, unconventional ways. This unexpected native planting design distinguishes Rosemary Beach and reintegrates the site with the regional landscape. The native plants become at once elemental and symbolic and help establish a unique community identity.
2001 BSLA Honor Award
Client: Rosemary Beach Land Company
Collaborators: Richard Gibbs, Duany Plater-Zyberk and Company
Images: LJLA
客服
消息
收藏
下载
最近


















