查看完整案例


收藏

下载
lntroduction:
“其实人生并没有意义,是我们的选择并勇于改变而赋予了其意义。”
——许业功
《瞬息全宇宙》这部影片描绘了人生意义的构成过程,即每一次决定都是关键的决定,每一次选择都指引我们通向不同的人生轨迹,人生的意义就是去体验去感受。
▲《瞬息全宇宙》海报(图源网络)
其实在设计中每一次沟通,每一次平面规划,每一次对美对爱的诠释都引领业主通向不同的生活方式轨迹,都能带来全新的体验与感受。做到这一点的根本就是设计师对生活方式的理解,并不断从中汲取灵感。并将空间的实用性及艺术性发挥到极致。如《瞬息全宇宙》带来的意义,HSU 在这个别墅项目上做到了。
01 项目背景
本项目是一座 800㎡的拥有无敌山景的别墅豪宅。空间划分为公共休闲楼层及供个人休憩的私密空间,楼层两个部分:公共休闲区位于别墅的底层,在这里可以分享美食、品茗、聚会交流、欣赏音乐、美景。私密空间区位于别墅的二至四层,在满足屋主休息的同时,还有供小孩阅读玩耍的阅读室和多媒体互动乐园。
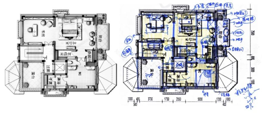
▲原始平面&
概念手稿-1F
▲项目平面-1F
▲原始平面&
概念手稿-2F
▲项目平面-2F
▲原始平面&概念手稿-3F
▲项目平面-3F
▲原始平面&
概念手稿-4F
▲项目平面-4F
02项目改造
在拿到原始平面后,根据我们对项目的理解,对整体空间与景观的互动性做出颠覆性的优化:
每次做平面格局上的颠覆,都充满变数与挑战。犹如魔法师一般,在每一次改变都有新的生活方式,每一次改变都有新的体验和感受,如《瞬息》。
但是要设计一个别墅绝不是几个大平层的叠加那么简单的,其中的动线理解,功能分区和收纳分配等都大有不同。在这个别墅案例里面我把理解的生活方式融入其中。
▲鞋帽间优化
入门的鞋帽间开放双通道,入户大门及车库门均可进入,两扇门构成的环形动线,能够缩短收纳的距离。在满足回家的鞋帽、大衣、购物袋、包包、雨伞、玩具、行李箱等收纳的同时,客人外套和包包也有安置之所,让空间更整洁。
玄关其实并不完全是为了风水而存在,动线的需要和对家庭安全感的建立是更重要的。悬空造型让空间更灵动不拥堵,同时它也具备收纳功能。小恐龙就是它的精灵守护神。
▲厨房优化
餐厨区通过中式厨房和西式岛台的搭配,实现了功能空间的化展示。
放弃入门的楼梯,将楼梯移动至餐厅旁,原楼梯的地方改成了食品间,扩大了收纳空间。
“食品间”是用来储存餐具和食品的小空间,可以收纳大量囤积的食材、使用频率低的食材、应急食品和水等。拥有一个食品间,就能解决屋主的收纳焦虑了。
▲餐厅优化
右边进入中厨及西厨空间。宴会厅和卡座简餐厅无缝衔接,既独立又融合。卡座区满足了家人早餐下午茶的同时也完整了宴会厅的功能衍生。弧形楼梯和定制实木大球就像一件艺术装置安静的发挥出他们的艺术魅力,雕塑与远室外空间进行结合,吸引人们好奇的目光。
室内以大面积的黑白灰做装饰,灰色大理石和原木交织,搭配出冷暖和谐的休闲空间。质地优良的布艺沙发和布满纹路的大理石茶几形成强烈对比,搭配出一种层次分明的美感。
客厅处在中心位置,以它为枢纽串联了各个空间。同时 8m 的挑空彰显了别墅的价值和交际属性。墙壁处打造收藏品柜,用柔和的灯光点亮每件精美的艺术品,引得来往的人都忍不住细细欣赏。
质地是一个需要全方面去考虑的事情,所以从地板、墙面、家具、软装,以及到艺术品的选择也颇为重要。以自然和舒适为主,灰色与胡桃木搭配特有的质朴温润,有平衡色系和舒缓身心的效果。
茶室是中国人心灵的归属。玻璃屋内墙上的苔藓,室外园林造景等都无缝连接起来,与大自然的互动结合。
二层是长辈、客人及佣人楼层。拥有 4 个房间及卫生间。爷爷奶奶在楼上看着小孙子孙女,还不时叮嘱着别上蹦下跳。相信这个时候他们是笑着的,是尽享天伦之乐的。
▲长辈房优化
长辈房动线格局流畅合理,起居室、卧室、衣帽间、套卫功能完整。
这个楼层是小朋友的天地,从阅读区、画室、起居室到 3 个孩房。功能性完整,动线丰富,这样的空间一定会让他们拥有快乐的童年和培养强大的家族荣誉感。
现场建筑结构原因,楼梯到了三层就是尽头了。要改个位置上去主卧楼层,这个给我们带来另外的一个想法,何不再做个挑空设计个阁楼图书馆,同时通往主卧室。让小朋友和家长之间更多交流更多互动,这个图书馆阅读室里旋转楼梯也很美。同时满足了顶部书籍的收纳管理,一举两得。
▲阅读室优化
▲阅读室
我们善于在阅读中丈量生活的厚度,阅读为我们提供了充裕的精神滋养。在家中修筑一间微型图书馆,一整面书墙就能成为滋养数代人的“精神粮仓”。闲暇时分,阳光透过窗的间隙洒入房间,在这片温暖的阳光中,与孩子共享书香、伴其成长。
主卧楼层以图书阅读馆与孩子楼层串联起来,动线有趣互动性强。
主卧套房位于四层,享有户外露台、起居室、书房、衣帽间、浴室、茶水操作间等。外部紧连着春意盎然的阳光房,绿植围绕在窗前,散发着沁人心脾的味道。
用简单的色彩呈现丰盈的质感,颇有质感的原木地板,搭配浅灰色床品,显得优雅清新,浅色地毯与窗帘相呼应,更加的沉稳有层次感。
主卧室通过对格局的自由分割,对空间的打破重组,从而让室内格局无界限,各个空间可开可合自由灵动。
▲主卧优化
许业功先生说:“真正顶级豪宅是能实现把最私密的事情做到最开放。”在这里就不难理解主卫改动的初衷和浴缸位置的不二选择了。
03 项目落地
设计就是一场修行。
设计从概念到落地,无论何种方式和何种风格,都保持一颗平常心,保持一颗人与自然和谐心。
在这里再次感谢业主方与施工方…
经过十几年 HSU 家人及各路小伙伴们的努力,HSU 的全案已经进入成熟阶段。
在今后的日子里,让我们重新定义全案设计,“所见即所得”。
▲效果图展示
04项目视频
恭喜杨紫琼女士获得第九十五届奥斯卡最佳女主角奖(图源网络)
61 岁的杨紫琼凭借电影《瞬息全宇宙》捧走了奥斯卡,那 HSU 的“奥斯卡”还会远吗?
项目名称:HSU|许业功的“瞬息全宇宙”
设计团队:HSU|许业功设计
总设计师:许业功
设计总监:陈晓生
设计助理:陈伟玲
项目地点:广东韶关
设计面积:800㎡
竣工时间:2022 年 1 月
项目软装:Catylam & HSU
项目施工:韶关市汉宗空间设计有限公司
项目摄影:大象视觉
项目摄像:丁一寒
文案主编:曾淯楠
HSU 善于将空间的实用性及艺术性发挥到极致,创造新的设计潮流。不断从生活方式中汲取灵感,重塑空间美学,以设计顶流驱动更大的品牌价值。作品涵盖建筑、酒店、顶级 CLUB、餐饮、办公、豪宅等,同时获得多项顶级赛事奖项。
设计总监/许业功
HSU 的作品至今荣获近 100 项国内外设计奖:涵盖设计界“奥斯卡奖”的德国 IF 奖,
地产界“奥斯卡奖”的
美国 TITAN 地产设计大奖,美国缪斯设计金奖,墨尔本设计银奖,意大利 A 设计铜奖,法国双面神 GPDP Award 大奖,APDC 亚太室内设计大奖,艾特奖。
殊荣|Award
2022 德国 IF DESIGN AWARD 设计大奖
2021 德国 IF DESIGN AWARD 设计大奖
2021 美国 IDA DESIGN AWARDS 国际设计荣誉奖
2022 美国 TITAN 地产设计金奖
2020 法国双面神 GPDP Award 家居空间创新大奖
2020 美国缪斯 MuseDesign Award 设计金奖
2020 墨尔本 Melbourne Design Awards 设计银奖
2020 意大利 A' Design Award 设计铜奖
2021APDC 亚太室内设计会所空间大奖
2021APDC 亚太室内设计办公空间佳作奖
2013APDC 亚太室内设计住宅空间佳作奖
2013APDC 亚太室内设计大赛样板房优胜奖
2023
IDEA-TOPS
艾特奖 餐饮空间设计大奖-深圳十强
2021 IDEA-TOPS 艾特奖 别墅空间铜奖
2021《安邸 AD》色彩与空间大赛 全国 TOP 10
2021 40 UNDER 40 中国(广东)设计杰出青年
2020 40 UNDER 40 中国(汕头)设计杰出青年
2019 40 UNDER 40 中国(汕头)设计杰出青年
2021 CIID 中国陈设艺术设计邀请大赛银奖
2021 CIID 中国陈设艺术设计邀请大赛铜奖
2017 CIID
中国陈设艺术设计邀请大赛铜奖
2022
中国室内设计大奖赛 CIID 粤东"金十佳"奖
2020 中国室内设计大奖赛 CIID 粤东"金十佳"奖
2020 中国室内设计大奖赛 CIID 全国优秀奖
2021 中国室内设计大奖赛 CIID 全国优秀奖
2020 汕头经济特区 40 年 40 人入选设计师
2021 中国室内设计企业百强城市榜汕头 Top 10
2020 中国喜马拉雅-设计之巅 居住空间设计大奖
2020 金梁中国设计奖
2021 亚洲软装风尚大奖
2020 中国新商业空间设计大奖
2020 中国新商业空间设计团队大奖
2020 上海设计周 HDA 住房设计奖
2013 广州设计周“为中国设计发声”精英人物
2010 全国“十一五”建筑装饰 100 强设计师
2010 海峡两岸四地室内设计大赛优秀奖
2007 鹰牌杯全国室内设计大赛 100 强
2005 汕头市君悦华庭样板房设计优秀奖
2004 汕头市品格杯厨房设计大奖
2001 汕头市龙光杯家居设计大赛二等奖
客服
消息
收藏
下载
最近



























































































