查看完整案例


收藏

下载
重庆装饰公司俏业家作为全案设计领先品牌,专注为业主提供基装、全案、整装多模式、全品类的一站式高品质装修服务,是值得信赖的重庆本土装修品牌。本实景案例是重庆俏业家装饰设计师为龙湖尘林间160㎡平三居室户型专门打造的现代风格装修案例。
——重庆龙湖尘林间案例内容详情——
楼盘:龙湖尘林间
区域:重庆市渝北区照母山
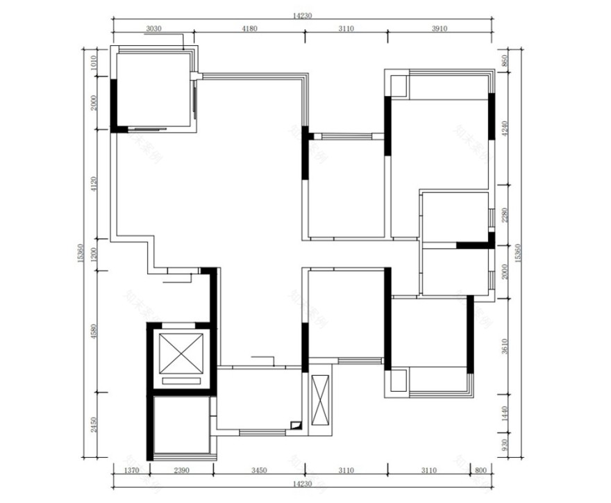
面积:套内160平
户型:三居室
装修风格:现代
设计师:杨洁
【业主需求】
本案业主是一位高颜值的小姐姐,同时她也是一位事业有成的女老板,审美和品味都很在线。
对于新家的设计就两个要求:美和调性!通过对业主的全面解析,设计师从居者真实的生活场景出发,再从整体美感入手,细化局部的功能与细节,从而达到视觉效果与居住功能的平衡,使业主能享受到更加简单纯粹、舒适温馨的生居家活!
【设计思路】
新家160㎡的面积十分宽绰,原始户型基础是很不错的,只需简单的局部改动,就可以使空间动线功能变得更流畅清晰,公区的尺度也能有“超大house”视觉感受。
优化思路集中在把公区LDK动线和空间联通起来,提高空间的流通性。其次就是让起居空间的面积“物尽其用”,尤其是主卧,一定要把舒适感做到极致。
1、将部分阳台包入室内,扩大客厅空间,优化户型格局,使客厅空间明亮又大气;
2、封闭次卧门,拆除次卧非承重墙与主卧打通,使其形成一个舒适的多功能大套房。
【细节刻画】
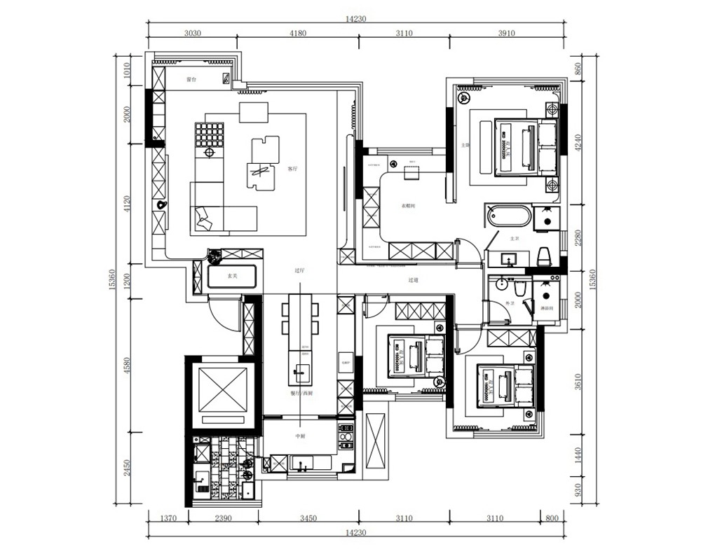
1、玄关装修:原户型没有独立的玄关,进门就是客厅,缺乏缓冲区,因此设计师在入户1.2m左右的地方定制到顶的转角鞋柜,用以保证玄关空间的独立性以及丰富玄关的储物。玄关与客厅的转角处放置了一面落地全身镜,既可当穿衣镜,又能放大空间,还能营造满满的归家仪式感。
2、客厅装修:客厅空间整体以素雅的白色为主,配以低饱和度色系软装,一两件黑灰色家具置入其中,将空间的优雅与明媚平衡得恰到好处,赋予空间别样的大气与潮流之美。
(电视背景墙:效果图VS实景图)
客厅的电视背景墙的设计施工,我们进行了1:1落地还原。
表层白色电视背景墙中部留空,黑色不锈钢框架嵌入其中增加承重,转脚处做弧形处理,弱化柜壁棱角的同时还赋予墙面视觉延伸感;底层则用木饰面与栅格板进行拼接,增加空间的层次感。下方则用黑色的大理石地台延伸至落地窗前,营造整体空间造型的和谐之美。
客厅天花板采用无主灯设计,利用线性灯拉伸视觉,让空间更显简洁大气。为了弱化天花板的横梁,我们在各横梁交接处的顶面做一个弧度造型,使硬装的视觉层次更显轻盈。
为了契合业主的审美,沙发我们选择了Baxter的花瓣沙发,奶呼呼的白色让人一整个被温柔住,值得一提的是沙发的每块靠背都可以根据自己喜好进行舒适度调节,非常舒服!沙发旁的朝颜花落地灯,曲线优雅,也为空间注入了一份独特的现代主义艺术美感。
为了增加储物空间,沙发背后我们定制了一整面墙的储物柜。为了让该区域达到精简别致的视觉感受,定制柜采用白色封闭柜搭配黑色置物板与卡其色格栅、黑色玻璃柜组合的设计,白色封闭柜用于储物,玻璃柜与置物板则用做屋主喜欢的工艺品、纪念品展示。
落地窗在设计时最需要考虑的是开阔的视野,因此落地窗的窗帘我们选择了可以在“遮光”与“半遮光”之间灵活切换的梦幻帘。于光影之间,增添斑驳的朦胧感,给予家人更多心灵上的放松。
3、过道装修:过道作为公区与私区的过渡空间,我们采用了隐形门与护墙板结合的设计,使隐形门和背景墙融为一体,无论近看还是远看,空间都显得一气呵成。除此之外,为了让空间显得更加明亮,我们在走廊顶部配备了多个等距射灯,让光线照明更加充分。
4、餐厅装修:客、餐厅地面采用白色浅暗纹大板砖通铺,公共空间无界限,让动线及视野都更为流畅与舒适。定制通高餐边柜与客厅展示柜齐平,视觉上弱化突兀感,美观且丰富储物空间。餐桌采用透明玻璃与岛台衔接,丰富餐厅属性,餐椅则选择了亚格力框架+羊羔绒软垫,不仅颜值高坐感也舒适,远看还有“悬浮座椅”的既视感。
5、厨房装修:极窄玻璃门将厨房与餐厅隔断,防止做饭的油烟进入公共区域。墙面与地面选择同色系云纹大理石瓷砖,加强空间的通透感,设计U形地柜让杂物无处遁形!
6、主卧装修:主卧延续了空间的整体风格,以简约的线条和色块拼接打造静谧雅致的休憩空间。床头背景墙选取水泥质感涂料与进口艺术漆、定制款木饰面结合打造,将居者的审美与追求淋漓尽致的展现。床头柜一边采用升降透明茶几,一边采用可折叠移动小推车,为空间提供可变性。
7、主卫装修:卫浴采用开放式设计,与卧室空间融为一体,带来视觉上的解放,以达到身心的完全放松。无需担心湿气入侵,地面采用下沉式设计浴缸稍微下沉,和地面形成高低差,顶部安装除湿器,潮湿问题自然解决。
8、次卧依然以女主人喜欢的现代简约风为设计前提,米白色床靠搭配灰紫色床品,空间轻盈又通透,整体时尚又温柔。
客服
消息
收藏
下载
最近
































